131 East 66th Street Apt: 8EF/9EF
New York, NY 10065
Cross street: | Lexington Avenue |
---|
Building
Type: | Mid-rise |
---|---|
Era: | Post-war |
Floors: | 12 |
Property
Ownership: | Co-op |
---|---|
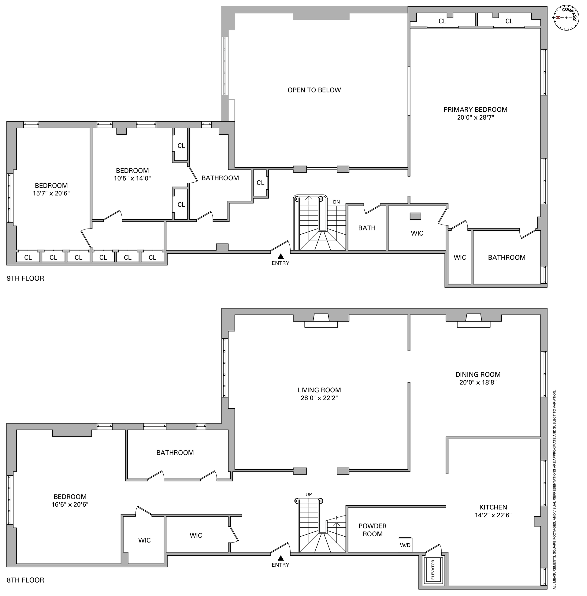
Rooms: | 10 |
Bedrooms: | 4 BR |
Bathrooms: | 4.5 |
Pets: | Pets Allowed |
Financials
Listing Courtesy of Compass
DescriptionWhere Architectural Grandeur Meets Modern Vision
Craft Your Legacy in Manhattan Luxury
A once-in-a-lifetime opportunity awaits at the historic Studio Building, an Italianate Palazzo-style masterpiece designed by renowned architect Charles Platt in 1907. This extraordinary residence is delivered in white box condition, allowing a discerning buyer to fully realize a custom vision within one of the Upper East Side’s most prestigious addresses.
The dramatic grand living room remains the centerpiece, distinguished by a soaring 20ft double-height ceiling, magnificent stained-glass window and stately fireplace - an extraordinary backdrop for both gracious entertaining and serene living. Beyond, the home offers the framework for a remarkable chef’s kitchen and gracious dining room, a grand primary suite with walk-in closets and spa-style bathroom, complemented by three additional bedrooms, ensuring both scale and versatility for modern lifestyles.
The Studio Building pairs historic charm with world-class service, including a 24-hour doorman, elevator operator, on-site resident manager, laundry facilities, bike storage, and a pet-friendly policy. Its premier location places you at the center of Manhattan’s most refined neighborhood, surrounded by entertainment, dining and shopping experiences.
This is more than a home - this is a legacy property and exceptional investment opportunity, ready to be reimagined into a bespoke sanctuary of elegance and premier living.
Photos Virtually Staged
White-box Condition
Sold As-IsAmenitiesGarden; Laundry Room; Private Storage;- Elevator
- Full time doorman
- Garden
- Laundry Room
NeighborhoodMore listings:
Where Architectural Grandeur Meets Modern Vision
Craft Your Legacy in Manhattan Luxury
A once-in-a-lifetime opportunity awaits at the historic Studio Building, an Italianate Palazzo-style masterpiece designed by renowned architect Charles Platt in 1907. This extraordinary residence is delivered in white box condition, allowing a discerning buyer to fully realize a custom vision within one of the Upper East Side’s most prestigious addresses.
The dramatic grand living room remains the centerpiece, distinguished by a soaring 20ft double-height ceiling, magnificent stained-glass window and stately fireplace - an extraordinary backdrop for both gracious entertaining and serene living. Beyond, the home offers the framework for a remarkable chef’s kitchen and gracious dining room, a grand primary suite with walk-in closets and spa-style bathroom, complemented by three additional bedrooms, ensuring both scale and versatility for modern lifestyles.
The Studio Building pairs historic charm with world-class service, including a 24-hour doorman, elevator operator, on-site resident manager, laundry facilities, bike storage, and a pet-friendly policy. Its premier location places you at the center of Manhattan’s most refined neighborhood, surrounded by entertainment, dining and shopping experiences.
This is more than a home - this is a legacy property and exceptional investment opportunity, ready to be reimagined into a bespoke sanctuary of elegance and premier living.
Photos Virtually Staged
White-box Condition
Sold As-Is
Garden; Laundry Room; Private Storage;
- Elevator
- Full time doorman
- Garden
- Laundry Room
NeighborhoodMore listings:
Where Architectural Grandeur Meets Modern Vision Craft Your Legacy in Manhattan Luxury A once in a lifetime opportunity awaits at the historic Studio Building, an Italianate Palazzo style masterpiece designed ...
DescriptionWhere Architectural Grandeur Meets Modern Vision
Craft Your Legacy in Manhattan Luxury
A once-in-a-lifetime opportunity awaits at the historic Studio Building, an Italianate Palazzo-style masterpiece designed by renowned architect Charles Platt in 1907. This extraordinary residence is delivered in white box condition, allowing a discerning buyer to fully realize a custom vision within one of the Upper East Side’s most prestigious addresses.
The dramatic grand living room remains the centerpiece, distinguished by a soaring 20ft double-height ceiling, magnificent stained-glass window and stately fireplace - an extraordinary backdrop for both gracious entertaining and serene living. Beyond, the home offers the framework for a remarkable chef’s kitchen and gracious dining room, a grand primary suite with walk-in closets and spa-style bathroom, complemented by three additional bedrooms, ensuring both scale and versatility for modern lifestyles.
The Studio Building pairs historic charm with world-class service, including a 24-hour doorman, elevator operator, on-site resident manager, laundry facilities, bike storage, and a pet-friendly policy. Its premier location places you at the center of Manhattan’s most refined neighborhood, surrounded by entertainment, dining and shopping experiences.
This is more than a home - this is a legacy property and exceptional investment opportunity, ready to be reimagined into a bespoke sanctuary of elegance and premier living.
Photos Virtually Staged
White-box Condition
Sold As-IsAmenitiesGarden; Laundry Room; Private Storage;- Elevator
- Full time doorman
- Garden
- Laundry Room
NeighborhoodMore listings:
Where Architectural Grandeur Meets Modern Vision
Craft Your Legacy in Manhattan Luxury
A once-in-a-lifetime opportunity awaits at the historic Studio Building, an Italianate Palazzo-style masterpiece designed by renowned architect Charles Platt in 1907. This extraordinary residence is delivered in white box condition, allowing a discerning buyer to fully realize a custom vision within one of the Upper East Side’s most prestigious addresses.
The dramatic grand living room remains the centerpiece, distinguished by a soaring 20ft double-height ceiling, magnificent stained-glass window and stately fireplace - an extraordinary backdrop for both gracious entertaining and serene living. Beyond, the home offers the framework for a remarkable chef’s kitchen and gracious dining room, a grand primary suite with walk-in closets and spa-style bathroom, complemented by three additional bedrooms, ensuring both scale and versatility for modern lifestyles.
The Studio Building pairs historic charm with world-class service, including a 24-hour doorman, elevator operator, on-site resident manager, laundry facilities, bike storage, and a pet-friendly policy. Its premier location places you at the center of Manhattan’s most refined neighborhood, surrounded by entertainment, dining and shopping experiences.
This is more than a home - this is a legacy property and exceptional investment opportunity, ready to be reimagined into a bespoke sanctuary of elegance and premier living.
Photos Virtually Staged
White-box Condition
Sold As-Is
Garden; Laundry Room; Private Storage;
- Elevator
- Full time doorman
- Garden
- Laundry Room
NeighborhoodMore listings:

RLS Data display by Nest Seekers LLC.
All information furnished regarding property for sale, rental or financing is from sources deemed reliable, but no warranty or representation is made as to the accuracy thereof and same is submitted subject to errors, omissions, change of price, rental or other conditions, prior sale, lease or financing or withdrawal without notice. International currency conversions where shown are estimates based on recent exchange rates and are not official asking prices.
All dimensions are approximate. For exact dimensions, you must hire your own architect or engineer.