Property
| Ownership: | For Sale | 
|---|---|
| Type: | Single Family | 
| Rooms: | 6 | 
| Bedrooms: | 4 BR | 
| Bathrooms: | 2 | 
| Pets: | Pets No | 
| Lot Size: | 2.50 Acres | 
Financials
          Listing Courtesy of BHG Real Estate Green Team
      
PEACE. PRIVACY. PROXIMITY.
- Picture Perfect Cape Cod on 2.5 acres...
 - with this birds eye view from above...
 - With four bedrooms and two full baths...
 - And a detached two-car garage...
 - and a magical wooded property with a beautiful stream...
 - Side view shows the classic lines of the home...
 - Gleaming hardwood floors welcome you into open floor plan...
 - Where the living room...
 - is anchored by a beautiful stone fireplace...
 - with a dining area with chandelier and room for a large table...and those sliders have the high-end built-in blinds!
 - offering direct access to outdoor deck and the beautiful back yard...
 - Adjacent is a beautiful updated kitchen with stainless steel appliances, dark stone granite counters, recessed lighting on dimmers...
 - Kitchen has attractive tile flooring...
 - and maple cabinets including extra drawers...
 - this view looks across into the dining and living room areas...
 - Down the hallway is large closet, a full bathroom and two bedrooms...
 - This is one FOUR bedrooms, this one with laminate floors, and could be designated as office or guest room...
 - Windows provide light and ventilation with a large closet...
 - The full bathroom has a tub/shower combo, vanity, tile patterned flooring and a "smart" mirror!
 - Another bright and airy bedroom on the first floor...
 - also offers hardwood floors and big closet...
 - Head upstairs to the second floor where you will find...
 - another bedroom with hardwood floors, lofted ceiling ...
 - with extra closets, ceiling fan, hardwood floors and extra storage space...
 - This bedroom also has huge closet and a unique built-in window seat that doubles as storage chest!
 - Lots of options, perhaps make this the primary...
 - bright updated bathroom features vaulted ceiling, tile vanity, and a stand up shower...
 - conveniently set between the two upstairs bedrooms...
 - View from the rear of the home showing the deck and bilco doors leading to basement...
 - The two-car garage as seen from part of the circular driveway which offers tons of extra parking possibilities!
 - Enjoy your own back yard nature preserve...
 - Basement houses laundry area with LG TROMM side by side washer/dryer plus a slop sink and workbench...
 - Mechanicals are housed in this super clean basement...
 - Also a carpeted bonus area that could be...
 - a workout room or extra storage space along with...
 - a separate giant walk-in closet - a perfect place to store winter clothes...
 - View from the back of the property...
 - With 2.5 wooded acres, there is room to roam!
 - The pristine detached 2-car garage has an interior loft and...
 - is opened with electric garage door opener...
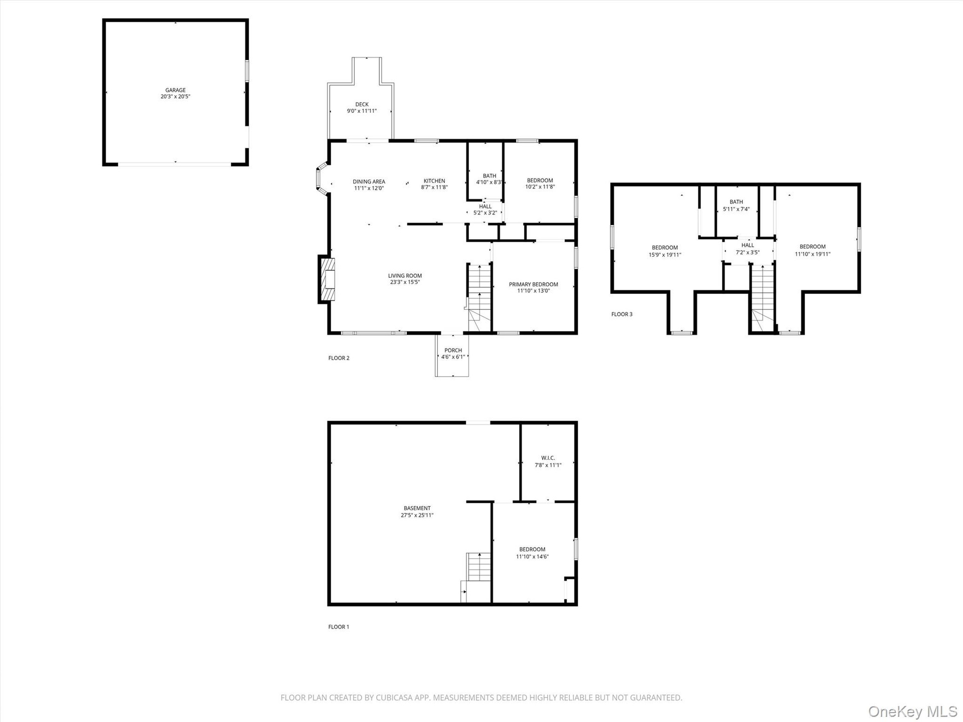
 - Entire home floor plan, including the garage
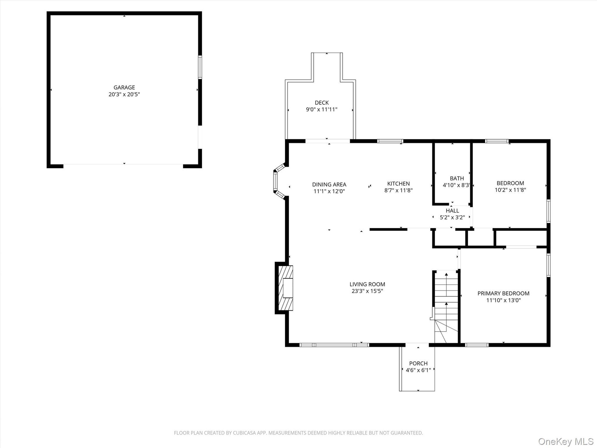
 - Floor plan of first floor
 - Floor plan of second floor
 - Floor plan of basement
 - Surrounded by woods, you will find your sanctuary...
 - walk your own paths and enjoy the water feature of this enchanting property...
 - nestled in the midst of woods...
 - yet only 8 miles from the vibrant Village of Warwick...
 - and just three miles to the top of Mt. Peter --where you can enjoy ice cream, the fabulous view and hike the Appalachian Trail just steps away!
 - WELCOME HOME to 15 Nelson Road!
 
Description
PEACE. PRIVACY. PROXIMITY. It's all here in this picture-perfect Cape Cod nestled among serene woods, yet just minutes from everything. Move-in ready and meticulously maintained by the same 20-year owners, this charming residence invites you to relax - NOT renovate! Set on a level 2.5 acre lot, directly across from huge State land acreage, you will find the perfect blend of convenience AND seclusion. Commuting?  you are just minutes to Tuxedo (8.8 miles) or Harriman (11 miles) Train Stations. Step inside to an inviting open floor plan where the focal point of the living/dining area is a stunning stone wood-burning fireplace.  Gleaming hardwood floors welcome throughout most of the house, and don't worry - there is no carpeting! The upgraded kitchen has stainless steel appliances, abundant maple cabinets, granite countertops + convenient island, with a unique tile floor. With four generously sized bedrooms (two upstairs, two downstairs) and full tiled bathrooms on each level, there's plenty of space for everyone.  The partially finished basement, with Bilco door access, offers laundry area with LG TROMM washer/dryer, bonus room and a huge walk-in closet perfect for long-term storage. The pristine two-car detached garage with electric door openers includes a loft area. Hosting a gathering? Enjoy the extra parking room provided by the convenient circular driveway.  Enjoy your own private paths throughout the magical woods that surround your home, including a stream that bisects the property. There's also ample space for gardening, outdoor activities, or simply soaking in the tranquility on the back deck.  And you can't beat this "hidden" location -- just  two miles to bustling Greenwood Lake; three miles to the top of Mt. Peter (and nationally award winning ice cream!) not to mention the renowned Appalachian Trail. Plus, the vibrant Village of Warwick with its restuarants, wineries and cultural activities is less than 8 miles away.  If School districts are of concern, this address qualifies for Greenwood Lake Elementary/Middle schools with HIgh Schoolers having the option between Warwick or Chester. Are all the boxes checked now? If the answer is YES, don't wait to make this dream home yours.
Amenities
- Dishwasher
 - Dryer
 - Eat-in Kitchen
 - First Floor Bedroom
 - First Floor Full Bath
 - Gas Oven
 - Gas Range
 - Granite Counters
 - Kitchen Island
 - Living Room
 - Mailbox
 - Microwave
 - Rain Gutters
 - Recessed Lighting
 - Refrigerator
 - Smoke Detectors
 - Stainless Steel Appliance(s)
 - Storage
 - Storm Doors
 - Stream
 - Trash Collection Private
 - Washer
 - Washer/Dryer Hookup
 - Wood Burning
 - Wooded
 

All information furnished regarding property for sale, rental or financing is from sources deemed reliable, but no warranty or representation is made as to the accuracy thereof and same is submitted subject to errors, omissions, change of price, rental or other conditions, prior sale, lease or financing or withdrawal without notice. International currency conversions where shown are estimates based on recent exchange rates and are not official asking prices.
All dimensions are approximate. For exact dimensions, you must hire your own architect or engineer.