Property
Ownership: | For Sale |
---|---|
Type: | Unknown |
Bedrooms: | Studio |
Bathrooms: | 3 |
Pets: | Pets No |
Lot Size: | 0.04 Acres |
Financials
Listing Courtesy of Keller Williams Realty Liberty
FOR SALE VACANT CLASSIC 3 FAMILY TOWNHOUSE WITH EXPANSION POTENTIAL 37 Jewel Street, Greenpoint, Brooklyn Discover timeless Brooklyn charm at 37 Jewel Street, a vacant three family townhouse offering approximately ...

- View of property
- View of city skyline
- Stairs featuring wainscoting, a decorative wall, and wood finished floors
- Kitchen with light countertops, dark brown cabinets, white appliances, backsplash, and radiator
- Living area with light wood-style flooring and recessed lighting
- Kitchen featuring white appliances, tasteful backsplash, electric panel, dark brown cabinetry, and tile patterned flooring
- Full bathroom featuring shower / bath combination with curtain, tile walls, and vanity
- Empty room featuring radiator, light wood-style floors, and recessed lighting
- Bedroom with light wood-type flooring and baseboards
- Unfurnished room with light wood-type flooring and recessed lighting
- Empty room featuring light wood-type flooring, recessed lighting, and radiator heating unit
- View of floor plan / UNIT 1 APARTMENT
- Hallway featuring a decorative wall, a wainscoted wall, light wood-style floors, and an upstairs landing
- Kitchen featuring gray cabinetry, backsplash, light wood finished floors, and radiator
- Living area featuring light wood-style flooring
- Kitchen featuring gray cabinetry, white range, backsplash, and under cabinet range hood
- Bathroom featuring tile walls, shower / bathtub combination, and vanity
- Spare room featuring light wood-style flooring, radiator, and recessed lighting
- Spare room featuring light wood-style flooring
- Unfurnished room with wood-type flooring and radiator heating unit
- Unfurnished room with light wood-style flooring and radiator heating unit
- Bedroom featuring light wood-style flooring
- Bedroom featuring light wood-style floors and radiator
- View of floor plan / UNIT 2 APARTMENT
- Stairway featuring wood finished floors
- Kitchen featuring brown cabinets, electric range, light countertops, tasteful backsplash, and light wood-type flooring
- Kitchen with electric stove, brown cabinets, backsplash, under cabinet range hood, and light stone counters
- Dining space featuring wood finished floors
- Bathroom featuring shower / bath combo with shower curtain, vanity, and tile walls
- Spare room featuring wood-type flooring, plenty of natural light, and radiator heating unit
- Bedroom with wood finished floors and radiator
- Unfurnished room with light wood-style flooring and recessed lighting
- Spare room with light wood finished floors and baseboards
- Unfurnished room with wood-type flooring and radiator heating unit
- View of floor plan / UNIT 3 APARTMENT
- Basement featuring recessed lighting and stairs
- View of floor plan /BASEMENT
- View of yard
- View of patio with outdoor dining area and a grill
- 40
- View of property floor plan
Description
FOR SALE – VACANT CLASSIC 3-FAMILY TOWNHOUSE WITH EXPANSION POTENTIAL
37 Jewel Street, Greenpoint, Brooklyn
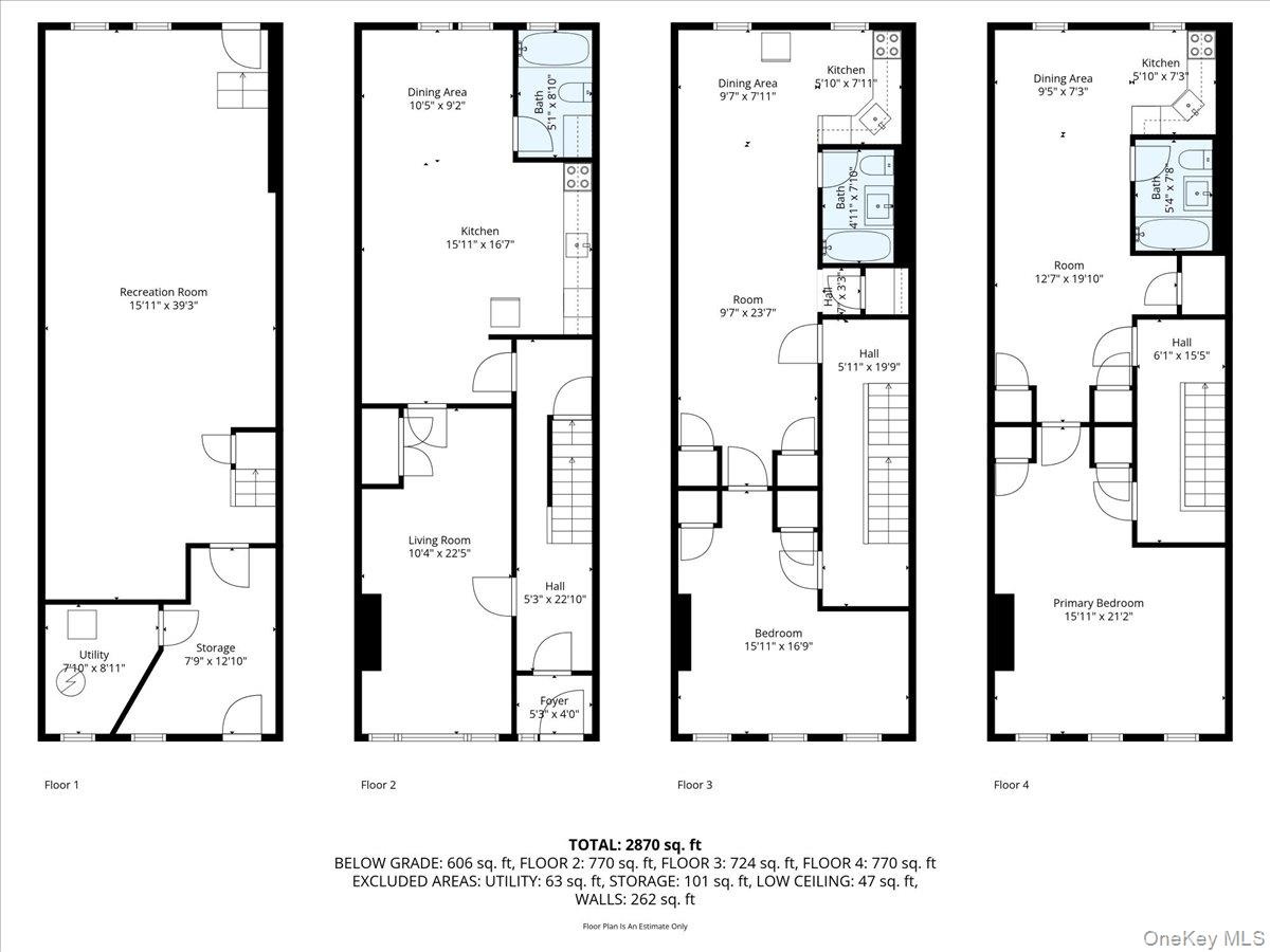
Discover timeless Brooklyn charm at 37 Jewel Street, a vacant three-family townhouse offering approximately 2,600 sq. ft. of living space on a 16.75’ x 100’ lot in the heart of Greenpoint. Built in 1901, this property combines pre-war character with modern potential a great opportunity to own a three-family income-producing townhouse renting three units, or to create a luxurious single-family home.
Currently configured as three residences, the home features flexible layouts and abundant natural light throughout:
First Floor: Open-concept layout with flexible bedroom divisions ideal for owner occupancy or rental income.
Second Floor: Bright apartment with open bedrooms, an eat-in kitchen, 1 bath, and flexible division options to create multiple bedrooms or a home office.
Third Floor: Similar layout with open bedrooms, an eat-in kitchen, 1 bath, and division potential to easily configure bedroom-or a two-bedroom layout.
The finished basement includes a walkout to the front of the property and direct access to the backyard providing additional living, recreation, or storage space.
Enjoy a spacious 834 sq. ft. backyard, perfect for entertaining, gardening, or future design possibilities.
Investment Potential: This property is a highly desirable income-producing investment, located in one of Brooklyn’s most sought-after rental markets. Greenpoint rents remain strong and stable, driven by limited inventory and consistently high demand. With three spacious free-market apartments and a prime location just three blocks from the G train at Nassau Avenue, 37 Jewel Street offers tenants easy access to Manhattan.
End-User Option: Approximately 2,600 sq. ft. of living space offers a generous canvas to create a custom, expansive single-family home with private outdoor space.
Located off of Nassau Avenue, just minutes from McGolrick Park, with convenient access to:
McCarren Park and Pool
G Train: Nassau Avenue stop
L Train: Lorimer stop
B24 Bus
BQE: minutes away
Manhattan: only 20 minutes
37 Jewel Street offers both immediate value and long-term potential — a classic townhouse ready to serve as a smart investment or a one-of-a-kind family home. Please consult your architect or zoning attorney for details.
R6B zoning
FAR 2.0.
Building size 16.7 x 50
Life in Greenpoint offers an unmatched blend of style and convenience, with acclaimed destinations like Oxomoco, Five Leaves, and Le Fanfare just steps away. From artisanal coffee at Variety to boutique shopping and lively cocktail lounges, the neighborhood’s sophisticated yet laid-back charm makes it one of Brooklyn’s most coveted addresses
Contact today to schedule a private showing and explore the possibilities.
Amenities
- Eat-in Kitchen
- Electricity Connected
- First Floor Bedroom
- High ceiling
- Natural Gas Connected

All information furnished regarding property for sale, rental or financing is from sources deemed reliable, but no warranty or representation is made as to the accuracy thereof and same is submitted subject to errors, omissions, change of price, rental or other conditions, prior sale, lease or financing or withdrawal without notice. International currency conversions where shown are estimates based on recent exchange rates and are not official asking prices.
All dimensions are approximate. For exact dimensions, you must hire your own architect or engineer.