Building
Type: | Mid-rise |
---|---|
Era: | Post-war |
Floors: | 15 |
Property
Ownership: | Co-op |
---|---|
Rooms: | 7 |
Bedrooms: | 3 BR |
Bathrooms: | 2.5 |
Pets: | Pets Allowed |
Financials
Listing Courtesy of Brown Harris Stevens Residential Sales LLC
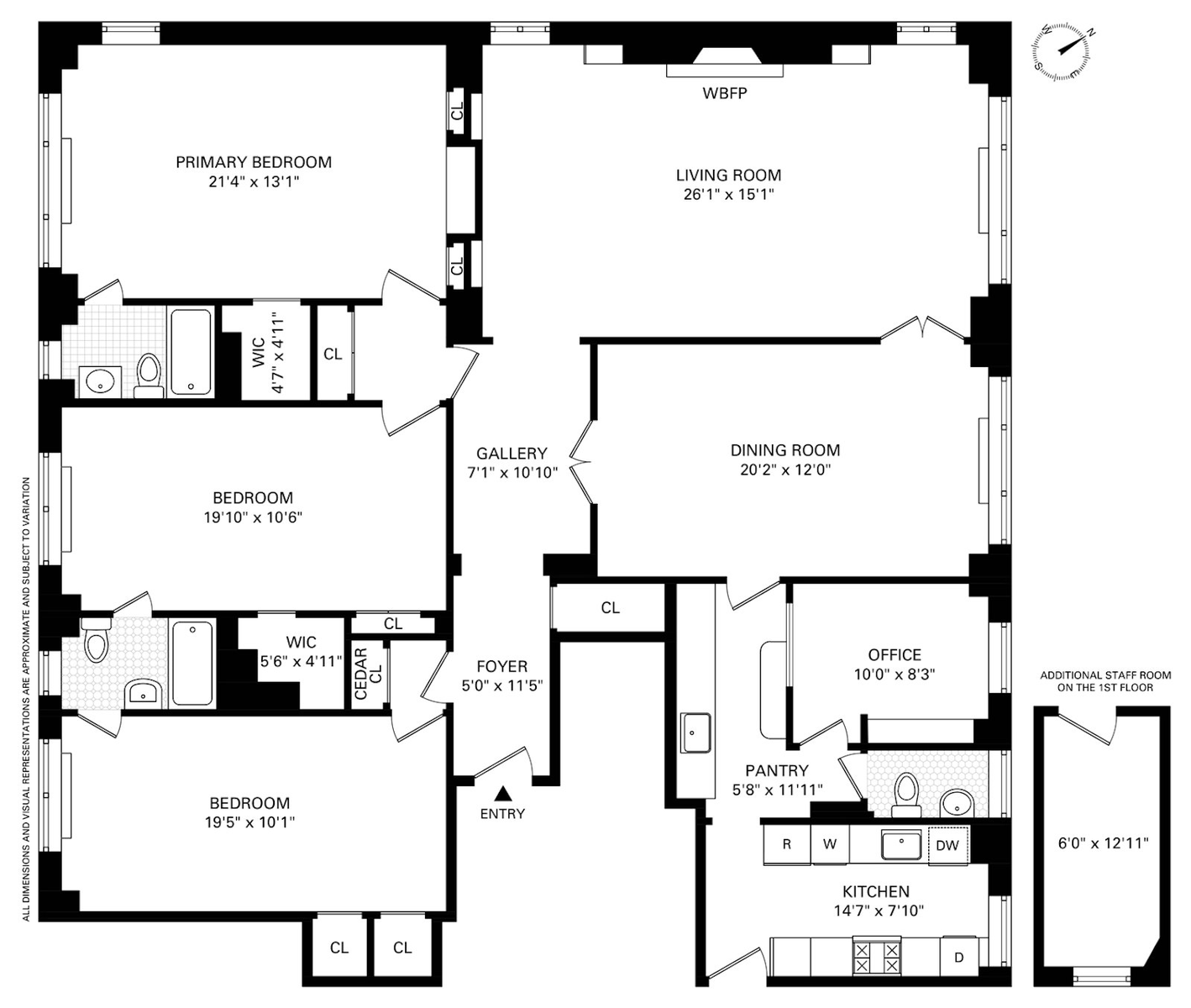
DescriptionWith the original prewar details intact, Apartment #7B is now available for the first time in 60 years. This over-sized "Classic Seven" retains the gracious 1920's layout. Off the semi-private landing, there is an inviting entrance foyer and gallery, separate formal dining room, and beautifully proportioned living room with wood burning fireplace. The expansive entertaining areas are perfectly separated from the three bedrooms. The primary bedroom features a windowed ensuite bath and walk-in closet. The South facing second and third bedrooms, both with excellent storage, share a windowed bath. The functional kitchen wing includes a generous butler's pantry with open glass cabinetry, separate office/staff room, half bath (powder room) and windowed kitchen. In addition, this grand home uniquely includes both an office/staff room on the first floor as well as a private storage unit.
350 East 57th Street, known as Sutton Hall, is a full-service prewar cooperative. Built under the direction of Dorothy Draper, this 32 unit boutique building features a resident manager, 24-hour doorman, central laundry room, and two rooftop terraces. Both pets and pied-a-terre ownership are permitted. There is a 2% Flip Tax paid by the buyer.
Located in the Sutton neighborhood, 350 East 57th Street is next door to midtown and at the same time close to peaceful cul-de-sac parks and the immensely popular new promenade. Conveniences include Trader Joe's and Whole Foods, a flurry of new restaurants as well as the tried and true favorites, and both uptown and crosstown public transportation. Apartment #7B offers the unique opportunity to join the rich history of this uncommon community by the East River.
AmenitiesGarden; Laundry Room; Roof Deck; Private Storage;- Washer / Dryer
- Elevator
- Full time doorman
- Garden
- Laundry Room
- Roof Deck
NeighborhoodMore listings:
With the original prewar details intact, Apartment #7B is now available for the first time in 60 years. This over-sized "Classic Seven" retains the gracious 1920's layout. Off the semi-private landing, there is an inviting entrance foyer and gallery, separate formal dining room, and beautifully proportioned living room with wood burning fireplace. The expansive entertaining areas are perfectly separated from the three bedrooms. The primary bedroom features a windowed ensuite bath and walk-in closet. The South facing second and third bedrooms, both with excellent storage, share a windowed bath. The functional kitchen wing includes a generous butler's pantry with open glass cabinetry, separate office/staff room, half bath (powder room) and windowed kitchen. In addition, this grand home uniquely includes both an office/staff room on the first floor as well as a private storage unit.
350 East 57th Street, known as Sutton Hall, is a full-service prewar cooperative. Built under the direction of Dorothy Draper, this 32 unit boutique building features a resident manager, 24-hour doorman, central laundry room, and two rooftop terraces. Both pets and pied-a-terre ownership are permitted. There is a 2% Flip Tax paid by the buyer.
Located in the Sutton neighborhood, 350 East 57th Street is next door to midtown and at the same time close to peaceful cul-de-sac parks and the immensely popular new promenade. Conveniences include Trader Joe's and Whole Foods, a flurry of new restaurants as well as the tried and true favorites, and both uptown and crosstown public transportation. Apartment #7B offers the unique opportunity to join the rich history of this uncommon community by the East River.
350 East 57th Street, known as Sutton Hall, is a full-service prewar cooperative. Built under the direction of Dorothy Draper, this 32 unit boutique building features a resident manager, 24-hour doorman, central laundry room, and two rooftop terraces. Both pets and pied-a-terre ownership are permitted. There is a 2% Flip Tax paid by the buyer.
Located in the Sutton neighborhood, 350 East 57th Street is next door to midtown and at the same time close to peaceful cul-de-sac parks and the immensely popular new promenade. Conveniences include Trader Joe's and Whole Foods, a flurry of new restaurants as well as the tried and true favorites, and both uptown and crosstown public transportation. Apartment #7B offers the unique opportunity to join the rich history of this uncommon community by the East River.
Garden; Laundry Room; Roof Deck; Private Storage;
- Washer / Dryer
- Elevator
- Full time doorman
- Garden
- Laundry Room
- Roof Deck
NeighborhoodMore listings:
With the original prewar details intact, Apartment 7B is now available for the first time in 60 years.
DescriptionWith the original prewar details intact, Apartment #7B is now available for the first time in 60 years. This over-sized "Classic Seven" retains the gracious 1920's layout. Off the semi-private landing, there is an inviting entrance foyer and gallery, separate formal dining room, and beautifully proportioned living room with wood burning fireplace. The expansive entertaining areas are perfectly separated from the three bedrooms. The primary bedroom features a windowed ensuite bath and walk-in closet. The South facing second and third bedrooms, both with excellent storage, share a windowed bath. The functional kitchen wing includes a generous butler's pantry with open glass cabinetry, separate office/staff room, half bath (powder room) and windowed kitchen. In addition, this grand home uniquely includes both an office/staff room on the first floor as well as a private storage unit.
350 East 57th Street, known as Sutton Hall, is a full-service prewar cooperative. Built under the direction of Dorothy Draper, this 32 unit boutique building features a resident manager, 24-hour doorman, central laundry room, and two rooftop terraces. Both pets and pied-a-terre ownership are permitted. There is a 2% Flip Tax paid by the buyer.
Located in the Sutton neighborhood, 350 East 57th Street is next door to midtown and at the same time close to peaceful cul-de-sac parks and the immensely popular new promenade. Conveniences include Trader Joe's and Whole Foods, a flurry of new restaurants as well as the tried and true favorites, and both uptown and crosstown public transportation. Apartment #7B offers the unique opportunity to join the rich history of this uncommon community by the East River.
AmenitiesGarden; Laundry Room; Roof Deck; Private Storage;- Washer / Dryer
- Elevator
- Full time doorman
- Garden
- Laundry Room
- Roof Deck
NeighborhoodMore listings:
With the original prewar details intact, Apartment #7B is now available for the first time in 60 years. This over-sized "Classic Seven" retains the gracious 1920's layout. Off the semi-private landing, there is an inviting entrance foyer and gallery, separate formal dining room, and beautifully proportioned living room with wood burning fireplace. The expansive entertaining areas are perfectly separated from the three bedrooms. The primary bedroom features a windowed ensuite bath and walk-in closet. The South facing second and third bedrooms, both with excellent storage, share a windowed bath. The functional kitchen wing includes a generous butler's pantry with open glass cabinetry, separate office/staff room, half bath (powder room) and windowed kitchen. In addition, this grand home uniquely includes both an office/staff room on the first floor as well as a private storage unit.
350 East 57th Street, known as Sutton Hall, is a full-service prewar cooperative. Built under the direction of Dorothy Draper, this 32 unit boutique building features a resident manager, 24-hour doorman, central laundry room, and two rooftop terraces. Both pets and pied-a-terre ownership are permitted. There is a 2% Flip Tax paid by the buyer.
Located in the Sutton neighborhood, 350 East 57th Street is next door to midtown and at the same time close to peaceful cul-de-sac parks and the immensely popular new promenade. Conveniences include Trader Joe's and Whole Foods, a flurry of new restaurants as well as the tried and true favorites, and both uptown and crosstown public transportation. Apartment #7B offers the unique opportunity to join the rich history of this uncommon community by the East River.
350 East 57th Street, known as Sutton Hall, is a full-service prewar cooperative. Built under the direction of Dorothy Draper, this 32 unit boutique building features a resident manager, 24-hour doorman, central laundry room, and two rooftop terraces. Both pets and pied-a-terre ownership are permitted. There is a 2% Flip Tax paid by the buyer.
Located in the Sutton neighborhood, 350 East 57th Street is next door to midtown and at the same time close to peaceful cul-de-sac parks and the immensely popular new promenade. Conveniences include Trader Joe's and Whole Foods, a flurry of new restaurants as well as the tried and true favorites, and both uptown and crosstown public transportation. Apartment #7B offers the unique opportunity to join the rich history of this uncommon community by the East River.
Garden; Laundry Room; Roof Deck; Private Storage;
- Washer / Dryer
- Elevator
- Full time doorman
- Garden
- Laundry Room
- Roof Deck
NeighborhoodMore listings:

RLS Data display by Nest Seekers LLC.
All information furnished regarding property for sale, rental or financing is from sources deemed reliable, but no warranty or representation is made as to the accuracy thereof and same is submitted subject to errors, omissions, change of price, rental or other conditions, prior sale, lease or financing or withdrawal without notice. International currency conversions where shown are estimates based on recent exchange rates and are not official asking prices.
All dimensions are approximate. For exact dimensions, you must hire your own architect or engineer.