Property
Ownership: | For Sale |
---|---|
Type: | Unknown |
Bedrooms: | 4 BR |
Bathrooms: | 4 |
Pets: | Pets No |
Financials
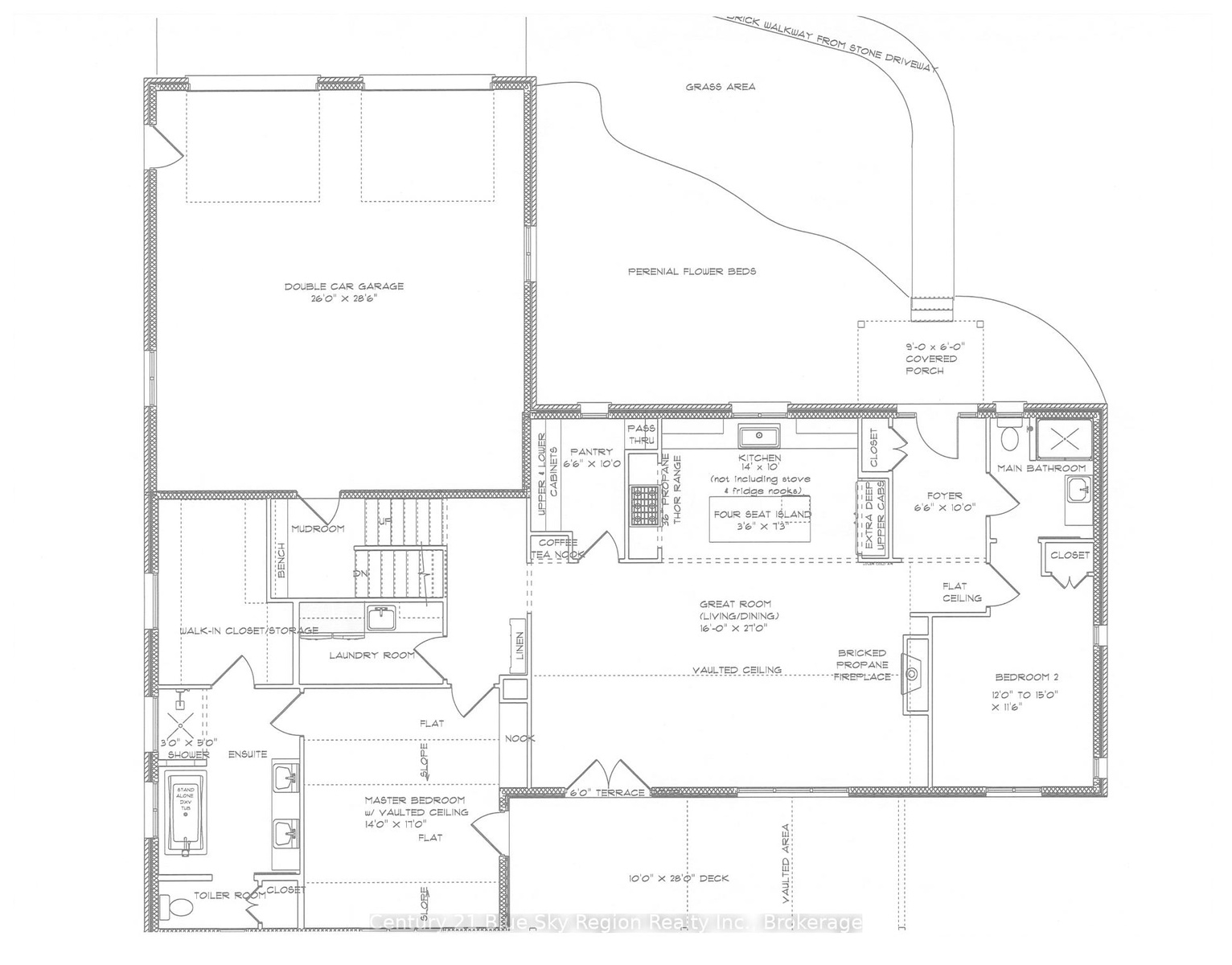
DescriptionPrivately set on nearly 10 acres and 400 feet from the road, this craftsman house was created with accessibility and light in mind. Wide hallways, spacious rooms, and 32"+ doorways. The front porch welcomes you into a spacious, tiled entry. Off the entry is a bright bathroom featuring a unique vanity, walk-in shower, toilet, and a barn-style cheater door leading to a large, well-lit bedroom. The great room features a propane fireplace with built-in storage cabinets and a coffee nook. A terrace door welcomes you to a 10X28 deck with a propane hookup for entertaining and BBQ'ing. The open concept kitchen features full-height uppers, a large island, and Silestone countertops, a tiled cooking area boasting a 36" THOR propane range with a pot filler and adjoining prep-pantry with a baker's pass-through to the kitchen. A side-by-side fridge and freezer finish the kitchen. The Master bedroom features a large walk-in shower, a stand-alone tub, double sinks, and a linen closet. The master suite is completed with an impressive walk-in closet. Descend to the walk-out lower level with storage and central vac located under the stairs. A 2-piece marble floor washroom is at the bottom of the stairs next to another storage/workshop area, and a versatile 14'X24' sewing/exercise room. Large windows and a terrace door lead to the rear stone patio. Flexibility is the word with roughed-in plumbing and doorways that allow for a conversion in a granny suite. The lower level includes a large rec room with wiring for recessed speakers. CAT-5 is fed into every TV space to take advantage of the Fibe internet servicing the house. The basement also features a wood fireplace, kitchenette, 2 bedrooms, a large 3-piece bath, and a terrace door to the patio. The home is heated by a high-efficiency furnace with LifeBreath HRV and cooled by A/C.A full service generator provides power during outages.Virtual Tour: https://youtu.be/iGJJQ0F7lQgAmenities- 32 Inch Min Doors
- Central Vacuum
- ERV/HRV
- Hallway Width 36-41 Inches
- In-Law Capability
- On Demand Water Heater
- Propane
- Upgraded Insulation
- Wood Stove
Privately set on nearly 10 acres and 400 feet from the road, this craftsman house was created with accessibility and light in mind. Wide hallways, spacious rooms, and 32"+ doorways. The front porch welcomes you into a spacious, tiled entry. Off the entry is a bright bathroom featuring a unique vanity, walk-in shower, toilet, and a barn-style cheater door leading to a large, well-lit bedroom. The great room features a propane fireplace with built-in storage cabinets and a coffee nook. A terrace door welcomes you to a 10X28 deck with a propane hookup for entertaining and BBQ'ing. The open concept kitchen features full-height uppers, a large island, and Silestone countertops, a tiled cooking area boasting a 36" THOR propane range with a pot filler and adjoining prep-pantry with a baker's pass-through to the kitchen. A side-by-side fridge and freezer finish the kitchen. The Master bedroom features a large walk-in shower, a stand-alone tub, double sinks, and a linen closet. The master suite is completed with an impressive walk-in closet. Descend to the walk-out lower level with storage and central vac located under the stairs. A 2-piece marble floor washroom is at the bottom of the stairs next to another storage/workshop area, and a versatile 14'X24' sewing/exercise room. Large windows and a terrace door lead to the rear stone patio. Flexibility is the word with roughed-in plumbing and doorways that allow for a conversion in a granny suite. The lower level includes a large rec room with wiring for recessed speakers. CAT-5 is fed into every TV space to take advantage of the Fibe internet servicing the house. The basement also features a wood fireplace, kitchenette, 2 bedrooms, a large 3-piece bath, and a terrace door to the patio. The home is heated by a high-efficiency furnace with LifeBreath HRV and cooled by A/C.A full service generator provides power during outages.
Virtual Tour: https://youtu.be/iGJJQ0F7lQg
- 32 Inch Min Doors
- Central Vacuum
- ERV/HRV
- Hallway Width 36-41 Inches
- In-Law Capability
- On Demand Water Heater
- Propane
- Upgraded Insulation
- Wood Stove
Privately set on nearly 10 acres and 400 feet from the road, this craftsman house was created with accessibility and light in mind.
DescriptionPrivately set on nearly 10 acres and 400 feet from the road, this craftsman house was created with accessibility and light in mind. Wide hallways, spacious rooms, and 32"+ doorways. The front porch welcomes you into a spacious, tiled entry. Off the entry is a bright bathroom featuring a unique vanity, walk-in shower, toilet, and a barn-style cheater door leading to a large, well-lit bedroom. The great room features a propane fireplace with built-in storage cabinets and a coffee nook. A terrace door welcomes you to a 10X28 deck with a propane hookup for entertaining and BBQ'ing. The open concept kitchen features full-height uppers, a large island, and Silestone countertops, a tiled cooking area boasting a 36" THOR propane range with a pot filler and adjoining prep-pantry with a baker's pass-through to the kitchen. A side-by-side fridge and freezer finish the kitchen. The Master bedroom features a large walk-in shower, a stand-alone tub, double sinks, and a linen closet. The master suite is completed with an impressive walk-in closet. Descend to the walk-out lower level with storage and central vac located under the stairs. A 2-piece marble floor washroom is at the bottom of the stairs next to another storage/workshop area, and a versatile 14'X24' sewing/exercise room. Large windows and a terrace door lead to the rear stone patio. Flexibility is the word with roughed-in plumbing and doorways that allow for a conversion in a granny suite. The lower level includes a large rec room with wiring for recessed speakers. CAT-5 is fed into every TV space to take advantage of the Fibe internet servicing the house. The basement also features a wood fireplace, kitchenette, 2 bedrooms, a large 3-piece bath, and a terrace door to the patio. The home is heated by a high-efficiency furnace with LifeBreath HRV and cooled by A/C.A full service generator provides power during outages.Virtual Tour: https://youtu.be/iGJJQ0F7lQgAmenities- 32 Inch Min Doors
- Central Vacuum
- ERV/HRV
- Hallway Width 36-41 Inches
- In-Law Capability
- On Demand Water Heater
- Propane
- Upgraded Insulation
- Wood Stove
Privately set on nearly 10 acres and 400 feet from the road, this craftsman house was created with accessibility and light in mind. Wide hallways, spacious rooms, and 32"+ doorways. The front porch welcomes you into a spacious, tiled entry. Off the entry is a bright bathroom featuring a unique vanity, walk-in shower, toilet, and a barn-style cheater door leading to a large, well-lit bedroom. The great room features a propane fireplace with built-in storage cabinets and a coffee nook. A terrace door welcomes you to a 10X28 deck with a propane hookup for entertaining and BBQ'ing. The open concept kitchen features full-height uppers, a large island, and Silestone countertops, a tiled cooking area boasting a 36" THOR propane range with a pot filler and adjoining prep-pantry with a baker's pass-through to the kitchen. A side-by-side fridge and freezer finish the kitchen. The Master bedroom features a large walk-in shower, a stand-alone tub, double sinks, and a linen closet. The master suite is completed with an impressive walk-in closet. Descend to the walk-out lower level with storage and central vac located under the stairs. A 2-piece marble floor washroom is at the bottom of the stairs next to another storage/workshop area, and a versatile 14'X24' sewing/exercise room. Large windows and a terrace door lead to the rear stone patio. Flexibility is the word with roughed-in plumbing and doorways that allow for a conversion in a granny suite. The lower level includes a large rec room with wiring for recessed speakers. CAT-5 is fed into every TV space to take advantage of the Fibe internet servicing the house. The basement also features a wood fireplace, kitchenette, 2 bedrooms, a large 3-piece bath, and a terrace door to the patio. The home is heated by a high-efficiency furnace with LifeBreath HRV and cooled by A/C.A full service generator provides power during outages.
Virtual Tour: https://youtu.be/iGJJQ0F7lQg
- 32 Inch Min Doors
- Central Vacuum
- ERV/HRV
- Hallway Width 36-41 Inches
- In-Law Capability
- On Demand Water Heater
- Propane
- Upgraded Insulation
- Wood Stove
All information furnished regarding property for sale, rental or financing is from sources deemed reliable, but no warranty or representation is made as to the accuracy thereof and same is submitted subject to errors, omissions, change of price, rental or other conditions, prior sale, lease or financing or withdrawal without notice. International currency conversions where shown are estimates based on recent exchange rates and are not official asking prices.
All dimensions are approximate. For exact dimensions, you must hire your own architect or engineer.