Property
Ownership: | For Sale |
---|---|
Type: | Unknown |
Bedrooms: | 7 BR |
Bathrooms: | 4 |
Pets: | Pets No |
Lot Size: | 0.07 Acres |
Financials
Listing Courtesy of Coldwell Banker Reliable R E
Discover a rare piece of Brooklyn history with this grand mini mansion, beautifully situated on one of the most admired blocks in the Crown Heights Historic District.

- View of front of house featuring a gate and a fenced front yard
- Hallway featuring ornate columns and ornamental molding
- Entrance foyer with radiator heating unit and decorative columns
- 4
- 5
- Unfurnished living room with a tile fireplace, radiator, and a textured wall
- Unfurnished living room featuring healthy amount of natural light and a high end fireplace
- Stairway featuring radiator, tile patterned floors, and ornamental molding
- Unfurnished living room featuring hardwood / wood-style flooring and a brick fireplace
- Unfurnished living room with hardwood / wood-style floors, a fireplace, and radiator
- Unfurnished living room featuring radiator, a tiled fireplace, and a decorative wall
- Unfurnished living room featuring radiator heating unit, a fireplace with flush hearth, and a decorative wall
- Unfurnished living room with radiator heating unit and a fireplace
- View of yard
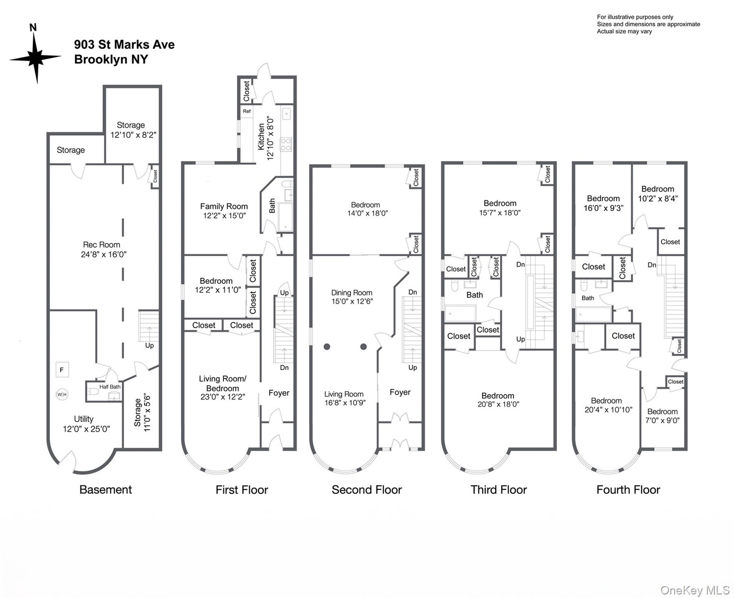
- View of property floor plan
Description
Discover a rare piece of Brooklyn history with this grand mini-mansion, beautifully situated on one of the most admired blocks in the Crown Heights Historic District. This home is surrounded by some of the borough’s finest examples of late 19th-century architecture.
From the moment you enter, you’re met with craftsmanship that’s nearly impossible to find today, ornate woodwork, stained glass, wainscoting, carved mirrors, and multiple decorative fireplaces that speak to the home’s storied past. Lovingly cared for by the same family for generations, every room reflects both the scale and elegance of its original design.
The owner’s triplex begins with an impressive parlor level that flows from a formal living area into a grand hallway and an additional room that can serve as a bedroom or office. The upper floors offer five remarkably spacious bedrooms, each filled with natural light from large bay windows. One bedroom includes a Juliette balcony with a peaceful view over the tree-lined street. Bathrooms maintain their period charm, featuring antique tilework and clawfoot tubs.
A separate garden apartment with two bedrooms and classic details provides flexibility — whether for rental income or as a private guest suite. Below, a finished basement with 8-foot ceilings and brick archways adds even more usable space for storage, recreation, or a creative studio.
Located just minutes from the shops and dining of Kingston and Nostrand Avenues, this home also offers easy access to the LIRR, 3 and 4 trains, and the Brooklyn Children’s Museum right on the block.
A residence of this size, condition, and history rarely becomes available. Don’t miss the opportunity to own a true Brooklyn landmark.
Amenities
- Historic District
- Natural Gas Connected
- Other
- Sewer Connected
- Water Connected

All information furnished regarding property for sale, rental or financing is from sources deemed reliable, but no warranty or representation is made as to the accuracy thereof and same is submitted subject to errors, omissions, change of price, rental or other conditions, prior sale, lease or financing or withdrawal without notice. International currency conversions where shown are estimates based on recent exchange rates and are not official asking prices.
All dimensions are approximate. For exact dimensions, you must hire your own architect or engineer.