Property
Ownership: | For Sale |
---|---|
Type: | Unknown |
Bedrooms: | 3 BR |
Bathrooms: | 3 |
Pets: | Pets No |
Financials
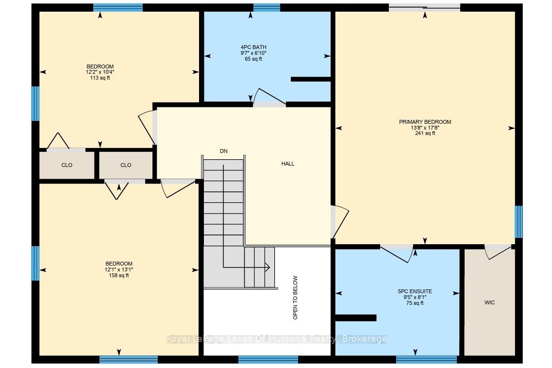
Description3-BDRM + DEN, 2.5 BATH, 1823 SQFT HOME ON 10 ACRES WITH DOUBLE GARAGE, JUST 6 MINUTES FROM IN-TOWN BRACEBRIDGE PLUS COLLECT OVER $220,000 IN PASSIVE INCOME OVER THE NEXT 15+ YEARS! Step through the covered front veranda into the foyer, complete with double closets. The main floor den provides a flexible space that can easily be adapted into an office, playroom, or an additional bedroom. The expansive living and dining area is bathed in natural light, featuring a wood-burning fireplace and direct access to the wrap-around deck. The eat-in kitchen includes a peninsula with a breakfast bar. A laundry closet and a side-entrance mudroom with a two-piece bathroom add to the home's practicality. The second floor features a large primary bedroom suite with a walk-in closet, a five-piece ensuite with a jetted tub, and a private balcony. Two more bedrooms and a spacious four-piece bathroom complete this level. The property sits on 10-acres of unique landscape of rock outcrops and mature forest, providing exceptional privacy and trails to explore. A detached, 23 x 23 double garage with a concrete floor and hydro can serve as a great workshop. The basement, with its exterior access under the deck, is perfect for storage and houses the home's utilities. This home is conveniently located just six minutes from the shops, restaurants, and entertainment in Bracebridge. It's also only 3-minutes from a Lake Muskoka marina and 1-minute from The Fairways at Kirrie Glen. * * * BONUS * * * Collect over $220,000 in passive income over the next 15 years! Bell Mobility leases a small part of the property for a cell tower and pays over $1000-$1300 each month. The tower can not be seen from the house. The property is still yours to enjoy as you desire.Amenities- Backs On Green Belt
- Deck
- Fireplace Insert
- Forest
- Landscaped
- Living Room
- Privacy
- Storage
- Trees/Woods
- Wood
- Year Round Living
3-BDRM + DEN, 2.5 BATH, 1823 SQFT HOME ON 10 ACRES WITH DOUBLE GARAGE, JUST 6 MINUTES FROM IN-TOWN BRACEBRIDGE PLUS COLLECT OVER $220,000 IN PASSIVE INCOME OVER THE NEXT 15+ YEARS! Step through the covered front veranda into the foyer, complete with double closets. The main floor den provides a flexible space that can easily be adapted into an office, playroom, or an additional bedroom. The expansive living and dining area is bathed in natural light, featuring a wood-burning fireplace and direct access to the wrap-around deck. The eat-in kitchen includes a peninsula with a breakfast bar. A laundry closet and a side-entrance mudroom with a two-piece bathroom add to the home's practicality. The second floor features a large primary bedroom suite with a walk-in closet, a five-piece ensuite with a jetted tub, and a private balcony. Two more bedrooms and a spacious four-piece bathroom complete this level. The property sits on 10-acres of unique landscape of rock outcrops and mature forest, providing exceptional privacy and trails to explore. A detached, 23 x 23 double garage with a concrete floor and hydro can serve as a great workshop. The basement, with its exterior access under the deck, is perfect for storage and houses the home's utilities. This home is conveniently located just six minutes from the shops, restaurants, and entertainment in Bracebridge. It's also only 3-minutes from a Lake Muskoka marina and 1-minute from The Fairways at Kirrie Glen. * * * BONUS * * * Collect over $220,000 in passive income over the next 15 years! Bell Mobility leases a small part of the property for a cell tower and pays over $1000-$1300 each month. The tower can not be seen from the house. The property is still yours to enjoy as you desire.
- Backs On Green Belt
- Deck
- Fireplace Insert
- Forest
- Landscaped
- Living Room
- Privacy
- Storage
- Trees/Woods
- Wood
- Year Round Living
3 BDRM DEN, 2. 5 BATH, 1823 SQFT HOME ON 10 ACRES WITH DOUBLE GARAGE, JUST 6 MINUTES FROM IN TOWN BRACEBRIDGE PLUS COLLECT OVER 220, 000 IN PASSIVE INCOME ...
Description3-BDRM + DEN, 2.5 BATH, 1823 SQFT HOME ON 10 ACRES WITH DOUBLE GARAGE, JUST 6 MINUTES FROM IN-TOWN BRACEBRIDGE PLUS COLLECT OVER $220,000 IN PASSIVE INCOME OVER THE NEXT 15+ YEARS! Step through the covered front veranda into the foyer, complete with double closets. The main floor den provides a flexible space that can easily be adapted into an office, playroom, or an additional bedroom. The expansive living and dining area is bathed in natural light, featuring a wood-burning fireplace and direct access to the wrap-around deck. The eat-in kitchen includes a peninsula with a breakfast bar. A laundry closet and a side-entrance mudroom with a two-piece bathroom add to the home's practicality. The second floor features a large primary bedroom suite with a walk-in closet, a five-piece ensuite with a jetted tub, and a private balcony. Two more bedrooms and a spacious four-piece bathroom complete this level. The property sits on 10-acres of unique landscape of rock outcrops and mature forest, providing exceptional privacy and trails to explore. A detached, 23 x 23 double garage with a concrete floor and hydro can serve as a great workshop. The basement, with its exterior access under the deck, is perfect for storage and houses the home's utilities. This home is conveniently located just six minutes from the shops, restaurants, and entertainment in Bracebridge. It's also only 3-minutes from a Lake Muskoka marina and 1-minute from The Fairways at Kirrie Glen. * * * BONUS * * * Collect over $220,000 in passive income over the next 15 years! Bell Mobility leases a small part of the property for a cell tower and pays over $1000-$1300 each month. The tower can not be seen from the house. The property is still yours to enjoy as you desire.Amenities- Backs On Green Belt
- Deck
- Fireplace Insert
- Forest
- Landscaped
- Living Room
- Privacy
- Storage
- Trees/Woods
- Wood
- Year Round Living
3-BDRM + DEN, 2.5 BATH, 1823 SQFT HOME ON 10 ACRES WITH DOUBLE GARAGE, JUST 6 MINUTES FROM IN-TOWN BRACEBRIDGE PLUS COLLECT OVER $220,000 IN PASSIVE INCOME OVER THE NEXT 15+ YEARS! Step through the covered front veranda into the foyer, complete with double closets. The main floor den provides a flexible space that can easily be adapted into an office, playroom, or an additional bedroom. The expansive living and dining area is bathed in natural light, featuring a wood-burning fireplace and direct access to the wrap-around deck. The eat-in kitchen includes a peninsula with a breakfast bar. A laundry closet and a side-entrance mudroom with a two-piece bathroom add to the home's practicality. The second floor features a large primary bedroom suite with a walk-in closet, a five-piece ensuite with a jetted tub, and a private balcony. Two more bedrooms and a spacious four-piece bathroom complete this level. The property sits on 10-acres of unique landscape of rock outcrops and mature forest, providing exceptional privacy and trails to explore. A detached, 23 x 23 double garage with a concrete floor and hydro can serve as a great workshop. The basement, with its exterior access under the deck, is perfect for storage and houses the home's utilities. This home is conveniently located just six minutes from the shops, restaurants, and entertainment in Bracebridge. It's also only 3-minutes from a Lake Muskoka marina and 1-minute from The Fairways at Kirrie Glen. * * * BONUS * * * Collect over $220,000 in passive income over the next 15 years! Bell Mobility leases a small part of the property for a cell tower and pays over $1000-$1300 each month. The tower can not be seen from the house. The property is still yours to enjoy as you desire.
- Backs On Green Belt
- Deck
- Fireplace Insert
- Forest
- Landscaped
- Living Room
- Privacy
- Storage
- Trees/Woods
- Wood
- Year Round Living
All information furnished regarding property for sale, rental or financing is from sources deemed reliable, but no warranty or representation is made as to the accuracy thereof and same is submitted subject to errors, omissions, change of price, rental or other conditions, prior sale, lease or financing or withdrawal without notice. International currency conversions where shown are estimates based on recent exchange rates and are not official asking prices.
All dimensions are approximate. For exact dimensions, you must hire your own architect or engineer.