Property
Ownership: | Multi-Family |
---|---|
Rooms: | 9 |
Bedrooms: | Studio |
Pets: | Pets Unknown |
Financials
Price:$2,200,000
Real estate tax:$5,844
Listing Courtesy of Corcoran Group
42A Windsor Place Charming Two Family Townhouse, on a Picture Perfect South Slope Block !
Description
42A Windsor Place - Charming Two-Family Townhouse, on a Picture-Perfect South Slope Block!!
Nestled on one of the most idyllic and cherished blocks in South Park Slope, 42A Windsor Place is a rare gem -- a three-story, two-family townhouse (plus full basement) that has been cared for by the same family for nearly 60 years. This home offers an incredible opportunity to create your dream residence while enjoying the charm, character, and unbeatable location of one of Brooklyn's most beloved neighborhoods.
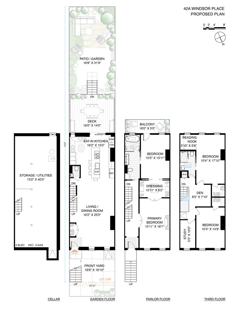
This warm and welcoming two-family townhouse offers an opportunity to own a piece of Brooklyn history, with flexible configurations and potential. 42A Windsor Place can be enjoyed as-is, with a high-income two-unit configuration, or easily transformed into a stunning single-family residence (see both floor plans for inspiration).
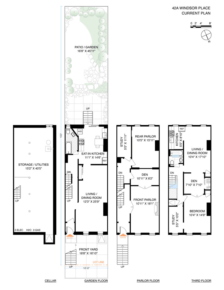
The Current Layout:
The lower duplex encompasses the garden and parlor floors, plus exclusive use of the deep, 800 square foot, south-facing backyard and access to a full basement. Enter through the garden level into an inviting open-concept living and dining space, complete with an eat-in kitchen featuring new appliances and a vented washer/dryer. Keep all in place as is, or opt to open up for an expansive, open layout as shown on proposed floorplan. A full, windowed bathroom and interior stairs to the basement complete this level.
On the parlor floor, you'll find elegant 10-foot ceilings, two oversized bedrooms, a cozy sitting room, and a smaller windowed space ideal for a nursery, home office, or additional bath. This floor offers great flexibility and potential for customization.
The top floor is a sunny and versatile 1.5-bedroom rental unit with south-facing light. The apartment includes a generous living/dining space, a spacious bedroom, a windowed bonus room (perfect as a nursery, office, or walk-in closet), and a central flex space that can be used as a formal dining room, office, or reconfigured to expand the living or sleeping areas. Ceilings soar to almost 9.5 feet, enhancing the sense of space and openness.
Expansion Possibilities:
Add a deck off the kitchen for effortless indoor-outdoor entertaining
Build a second-floor deck, as neighboring homes have
Convert to a spacious single-family home with multiple layout options
Windsor Place is a quiet, tree-lined block that epitomizes South Slope charm -- serene, community-minded, and close to everything. You're moments from the F, G, and R trains, multiple bus lines, Citi Bike stations, and the Prospect Expressway. Only 2 blocks to Prospect Park, and to P.S. 10, and within easy reach of local cafes, restaurants, and neighborhood favorites!
Whether you're looking to invest, live with income, or craft your forever home, 42A Windsor Place offers a rare blend of flexibility, location, and character!
Nestled on one of the most idyllic and cherished blocks in South Park Slope, 42A Windsor Place is a rare gem -- a three-story, two-family townhouse (plus full basement) that has been cared for by the same family for nearly 60 years. This home offers an incredible opportunity to create your dream residence while enjoying the charm, character, and unbeatable location of one of Brooklyn's most beloved neighborhoods.
This warm and welcoming two-family townhouse offers an opportunity to own a piece of Brooklyn history, with flexible configurations and potential. 42A Windsor Place can be enjoyed as-is, with a high-income two-unit configuration, or easily transformed into a stunning single-family residence (see both floor plans for inspiration).
The Current Layout:
The lower duplex encompasses the garden and parlor floors, plus exclusive use of the deep, 800 square foot, south-facing backyard and access to a full basement. Enter through the garden level into an inviting open-concept living and dining space, complete with an eat-in kitchen featuring new appliances and a vented washer/dryer. Keep all in place as is, or opt to open up for an expansive, open layout as shown on proposed floorplan. A full, windowed bathroom and interior stairs to the basement complete this level.
On the parlor floor, you'll find elegant 10-foot ceilings, two oversized bedrooms, a cozy sitting room, and a smaller windowed space ideal for a nursery, home office, or additional bath. This floor offers great flexibility and potential for customization.
The top floor is a sunny and versatile 1.5-bedroom rental unit with south-facing light. The apartment includes a generous living/dining space, a spacious bedroom, a windowed bonus room (perfect as a nursery, office, or walk-in closet), and a central flex space that can be used as a formal dining room, office, or reconfigured to expand the living or sleeping areas. Ceilings soar to almost 9.5 feet, enhancing the sense of space and openness.
Expansion Possibilities:
Add a deck off the kitchen for effortless indoor-outdoor entertaining
Build a second-floor deck, as neighboring homes have
Convert to a spacious single-family home with multiple layout options
Windsor Place is a quiet, tree-lined block that epitomizes South Slope charm -- serene, community-minded, and close to everything. You're moments from the F, G, and R trains, multiple bus lines, Citi Bike stations, and the Prospect Expressway. Only 2 blocks to Prospect Park, and to P.S. 10, and within easy reach of local cafes, restaurants, and neighborhood favorites!
Whether you're looking to invest, live with income, or craft your forever home, 42A Windsor Place offers a rare blend of flexibility, location, and character!
Amenities
Garden; Nursery;
- Basement
- Garden
Neighborhood
More listings:

RLS Data display by Nest Seekers LLC.
All information furnished regarding property for sale, rental or financing is from sources deemed reliable, but no warranty or representation is made as to the accuracy thereof and same is submitted subject to errors, omissions, change of price, rental or other conditions, prior sale, lease or financing or withdrawal without notice. International currency conversions where shown are estimates based on recent exchange rates and are not official asking prices.
All dimensions are approximate. For exact dimensions, you must hire your own architect or engineer.