Property
| Ownership: | For Sale |
|---|---|
| Type: | Single Family |
| Rooms: | 7 |
| Bedrooms: | 3 BR |
| Bathrooms: | 2 |
| Pets: | Pets No |
| Lot Size: | 0.28 Acres |
Financials
Listing Courtesy of eXp Realty
Nestled along the pristine shores of Sylvan Lake in Hopewell Junction, just over an hour North of NYC, this exquisite three bedroom, two bath, 1, 300 square foot lakefront home ...
- Dock area with a water view, a lawn, and a porch
- Wooden deck with ceiling fan, outdoor lounge area, outdoor dining space, and a water view
- Dock area featuring a water view
- Kitchen with a peninsula, appliances with stainless steel finishes, hanging light fixtures, brown cabinets, and tasteful backsplash
- Dining area featuring light wood finished floors and a chandelier
- Living area featuring wood finished floors, a wall mounted air conditioner, and a ceiling fan
- Aerial overview of property's location with a large body of water and a heavily wooded area
- View of exterior entry
- Sunroom featuring wood finished floors, a baseboard radiator, and wooden walls
- Sunroom featuring wood finished floors and baseboard heating
- Kitchen with appliances with stainless steel finishes, a ceiling fan, backsplash, open floor plan, and dark countertops
- 12
- Living room with light wood-style floors, a wall mounted AC, recessed lighting, a chandelier, and ceiling fan
- Living area featuring plenty of natural light, wood finished floors, a wall unit AC, recessed lighting, and a water view
- Living area featuring a barn door, light tile patterned floors, and a wall unit AC
- Dining area with a chandelier, light wood-type flooring, recessed lighting, ceiling fan, and stairs
- Dining space with a chandelier, light wood-style floors, stairway, and recessed lighting
- Bathroom with toilet and a shower stall
- Office with light wood-style floors and ceiling fan
- Bedroom featuring light wood finished floors, a ceiling fan, and vaulted ceiling
- Bedroom with recessed lighting, light wood-style floors, lofted ceiling, a ceiling fan, and a wall mounted air conditioner
- Office area featuring light wood-style floors and recessed lighting
- Full bathroom featuring walk in shower and vanity
- Full bath featuring vanity, walk in shower, and ensuite bath
- Bedroom featuring light wood-type flooring, vaulted ceiling, and a ceiling fan
- Bedroom featuring lofted ceiling, light wood-style floors, recessed lighting, and ceiling fan
- Living area with vaulted ceiling and light wood-style flooring
- Tiled living area featuring a barn door, recessed lighting, an AC wall unit, and crown molding
- Living room with a barn door, recessed lighting, and ornamental molding
- Laundry area featuring tile patterned flooring and independent washer and dryer
- Back of house featuring a lawn, a water view, and roof with shingles
- View of outbuilding
- Deck featuring outdoor dining space and ceiling fan
- Deck with a ceiling fan, a water view, and outdoor lounge area
- Wooden terrace featuring a water view and a dock
- View of patio / terrace with outdoor dining area and a ceiling fan
- Modern farmhouse style home with a shingled roof, covered porch, a front yard, and view of wooded area
- View of front facade with roof with shingles and a wooden deck
- View of front facade featuring a shingled roof and a porch
- View of shed
- View of green lawn with a water view
- Dock area with a water view and a forest view
- View of green lawn featuring a water view
- Dock area with a water view and a view of trees
- View of green lawn with a porch and an outdoor structure
- Dock with a water view and a wooded view
- Aerial view of property and surrounding area featuring a large body of water
- Drone / aerial view of a heavily wooded area and a nearby body of water
- Aerial view of a forest and a nearby body of water
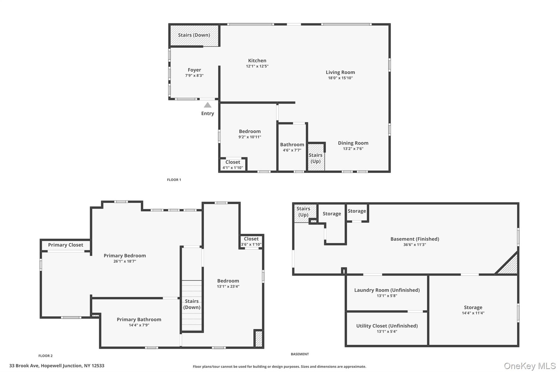
- View of home floor plan
Description
Nestled along the pristine shores of Sylvan Lake in Hopewell Junction, just over an hour North of NYC, this exquisite three-bedroom, two-bath, 1,300-square-foot lakefront home offers an unparalleled blend of luxury and tranquility. Renowned as one of the cleanest lakes in America, with depths reaching 145 feet, Sylvan Lake sets the stage for a truly idyllic lifestyle filled with relaxed days of canoeing, kayaking, pontoon boating, swimming and fishing in a warm and welcoming community. One of only four year-round homes with direct frontage on the lake, this is a once in a lifetime opportunity to own a home to pass on for generations..
Inside, you'll find a home lovingly rebuilt and expanded between 2021 and 2022 by artists who intended to keep it for themselves, ensuring every detail is top-tier. Enjoy a custom maple staircase, rich walnut hardwood floors,? mahogany doors and high-end GE Profile stainless steel appliances. The home also includes a whole-house generator for complete peace of mind?, and a dry lower level offers additional opportunities for storage or recreation. With stunning water views from every window you will feel like you are in your dream lakeside retreat every moment of the day.
Step outside to your private oasis. The exterior features a beautifully lit private dock (perfect for evening lakeside moments), a private sandy beach with sand imported from the Hamptons,? and a separate 16x30 artist studio complete with electricity. The grounds boast a pea-stone driveway, a custom mason’s stone foundation, and a fully sodded lawn with an irrigation system. The mahogany deck provides the perfect spot to take in the views of the lake and the lush rose and lavender gardens while relaxing, dining or entertaining.
Located across the lake from Camp Kinder Ring and an easy commute from NYC (1.5 miles from the Taconic State Parkway), this home offers an exclusive lakeside lifestyle that is truly one of a kind. Note - there is no HOA, just a $450/year neighborhood fee for snow removal and beach maintenance.
Amenities
- Back Yard
- Blinds
- Boat Slip
- Dishwasher
- Dock
- Dryer
- First Floor Bedroom
- First Floor Full Bath
- Front Yard
- Garden
- Lake
- Lake Front
- Landscaped
- Level
- Lighting
- Mooring
- Oven
- Rain Gutters
- Refrigerator
- Sprinklers In Front
- Sprinklers In Rear
- Trash Collection Private
- Views
- Washer
- Waterfront Property

All information furnished regarding property for sale, rental or financing is from sources deemed reliable, but no warranty or representation is made as to the accuracy thereof and same is submitted subject to errors, omissions, change of price, rental or other conditions, prior sale, lease or financing or withdrawal without notice. International currency conversions where shown are estimates based on recent exchange rates and are not official asking prices.
All dimensions are approximate. For exact dimensions, you must hire your own architect or engineer.