Building
Type: | House |
---|---|
Era: | Post-war |
Floors: | 2 |
Property
Ownership: | Single Family |
---|---|
Rooms: | 7 |
Bedrooms: | Studio |
Pets: | Pets Unknown |
FinancialsPrice:$875,000
Price:$875,000
24-20 Jackson Ave Floor 3
Long Island City, NY 11101, USA
Phone: +1 929-442-2208
Listing Courtesy of Compass
DescriptionCharming 1930's Kew Gardens Single Family Colonial w/Original Details
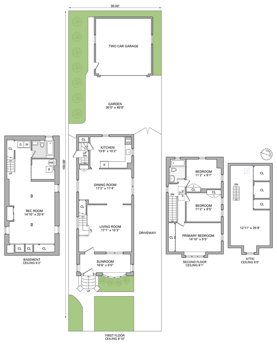
Rare to market, fully detached single family 3 Bed, 2 Bath with attic and full finished basement measures 1,834 SF interior +342 SF attic totaling a gross 2,176 SF interior. The 30x100 lot offers a private drive that can accommodate 2 cars plus 2 car garage and garden.
First Floor - Enclosed sun-room, living room, formal dining, eat-in kitchen with generous storage and counter space
Second Floor - Three generous sun-filled bedrooms, full bath, refinished original hardwood floors.
Attic - standing height pitched attic with closets and window accessible by attic ladder.
Basement - Finished basement enjoys generous natural light, laundry, and storage. Gas heat and hot water.
Garage - 2 car + room for 2 cars in driveway.
Beautifully preserved original details abound w/stained glass windows, hardwood inlaid flooring, staircase, newel post and balusters. Finished basement and standing height attic offer generous storage and recreational use. In addition, the roof was recently replaced offering the next owner years of carefree maintenance.
This super well preserved home offers move-in ready convenience or expand to your liking. Unused FAR 1,920 SF offers the option for significant expansion. (Buyer must consult their architect/attorney to perform their own due diligence for any renovations or expansion).
Fall in love with Kew Gardens, Queens. Developed in the early 1900's as a garden community. Kew Gardens enjoys access to beautiful Forest Park, shopping and dining on Metropolitan Ave and Lefferts Blvd. Transportation options include LIRR (Kew Gardens), subways E/F (Kew Gardens/Union Tpke) and J/Z (121 St). New York City Bus routes include the Q10, Q37, Q45, Q46, Q48, Q54, Q60 and Q80 local routes, as well as express bus routes to Manhattan. Shuttles direct to JFK airport. Car access to the Jackie Robinson, Van Wyck, Union Tpke and Queens Blvd.
*Note: Interior size taken from floor plan measurements.
All showings by appointment during posted times.
Co-brokers always welcome.Amenities- Gas
NeighborhoodMore listings:
Charming 1930's Kew Gardens Single Family Colonial w/Original Details
Rare to market, fully detached single family 3 Bed, 2 Bath with attic and full finished basement measures 1,834 SF interior +342 SF attic totaling a gross 2,176 SF interior. The 30x100 lot offers a private drive that can accommodate 2 cars plus 2 car garage and garden.
First Floor - Enclosed sun-room, living room, formal dining, eat-in kitchen with generous storage and counter space
Second Floor - Three generous sun-filled bedrooms, full bath, refinished original hardwood floors.
Attic - standing height pitched attic with closets and window accessible by attic ladder.
Basement - Finished basement enjoys generous natural light, laundry, and storage. Gas heat and hot water.
Garage - 2 car + room for 2 cars in driveway.
Beautifully preserved original details abound w/stained glass windows, hardwood inlaid flooring, staircase, newel post and balusters. Finished basement and standing height attic offer generous storage and recreational use. In addition, the roof was recently replaced offering the next owner years of carefree maintenance.
This super well preserved home offers move-in ready convenience or expand to your liking. Unused FAR 1,920 SF offers the option for significant expansion. (Buyer must consult their architect/attorney to perform their own due diligence for any renovations or expansion).
Fall in love with Kew Gardens, Queens. Developed in the early 1900's as a garden community. Kew Gardens enjoys access to beautiful Forest Park, shopping and dining on Metropolitan Ave and Lefferts Blvd. Transportation options include LIRR (Kew Gardens), subways E/F (Kew Gardens/Union Tpke) and J/Z (121 St). New York City Bus routes include the Q10, Q37, Q45, Q46, Q48, Q54, Q60 and Q80 local routes, as well as express bus routes to Manhattan. Shuttles direct to JFK airport. Car access to the Jackie Robinson, Van Wyck, Union Tpke and Queens Blvd.
*Note: Interior size taken from floor plan measurements.
All showings by appointment during posted times.
Co-brokers always welcome.
- Gas
NeighborhoodMore listings:
Charming 1930's Kew Gardens Single Family Colonial w Original Details Rare to market, fully detached single family 3 Bed, 2 Bath with attic and full finished basement measures 1, 834 ...
DescriptionCharming 1930's Kew Gardens Single Family Colonial w/Original Details
Rare to market, fully detached single family 3 Bed, 2 Bath with attic and full finished basement measures 1,834 SF interior +342 SF attic totaling a gross 2,176 SF interior. The 30x100 lot offers a private drive that can accommodate 2 cars plus 2 car garage and garden.
First Floor - Enclosed sun-room, living room, formal dining, eat-in kitchen with generous storage and counter space
Second Floor - Three generous sun-filled bedrooms, full bath, refinished original hardwood floors.
Attic - standing height pitched attic with closets and window accessible by attic ladder.
Basement - Finished basement enjoys generous natural light, laundry, and storage. Gas heat and hot water.
Garage - 2 car + room for 2 cars in driveway.
Beautifully preserved original details abound w/stained glass windows, hardwood inlaid flooring, staircase, newel post and balusters. Finished basement and standing height attic offer generous storage and recreational use. In addition, the roof was recently replaced offering the next owner years of carefree maintenance.
This super well preserved home offers move-in ready convenience or expand to your liking. Unused FAR 1,920 SF offers the option for significant expansion. (Buyer must consult their architect/attorney to perform their own due diligence for any renovations or expansion).
Fall in love with Kew Gardens, Queens. Developed in the early 1900's as a garden community. Kew Gardens enjoys access to beautiful Forest Park, shopping and dining on Metropolitan Ave and Lefferts Blvd. Transportation options include LIRR (Kew Gardens), subways E/F (Kew Gardens/Union Tpke) and J/Z (121 St). New York City Bus routes include the Q10, Q37, Q45, Q46, Q48, Q54, Q60 and Q80 local routes, as well as express bus routes to Manhattan. Shuttles direct to JFK airport. Car access to the Jackie Robinson, Van Wyck, Union Tpke and Queens Blvd.
*Note: Interior size taken from floor plan measurements.
All showings by appointment during posted times.
Co-brokers always welcome.Amenities- Gas
NeighborhoodMore listings:
Charming 1930's Kew Gardens Single Family Colonial w/Original Details
Rare to market, fully detached single family 3 Bed, 2 Bath with attic and full finished basement measures 1,834 SF interior +342 SF attic totaling a gross 2,176 SF interior. The 30x100 lot offers a private drive that can accommodate 2 cars plus 2 car garage and garden.
First Floor - Enclosed sun-room, living room, formal dining, eat-in kitchen with generous storage and counter space
Second Floor - Three generous sun-filled bedrooms, full bath, refinished original hardwood floors.
Attic - standing height pitched attic with closets and window accessible by attic ladder.
Basement - Finished basement enjoys generous natural light, laundry, and storage. Gas heat and hot water.
Garage - 2 car + room for 2 cars in driveway.
Beautifully preserved original details abound w/stained glass windows, hardwood inlaid flooring, staircase, newel post and balusters. Finished basement and standing height attic offer generous storage and recreational use. In addition, the roof was recently replaced offering the next owner years of carefree maintenance.
This super well preserved home offers move-in ready convenience or expand to your liking. Unused FAR 1,920 SF offers the option for significant expansion. (Buyer must consult their architect/attorney to perform their own due diligence for any renovations or expansion).
Fall in love with Kew Gardens, Queens. Developed in the early 1900's as a garden community. Kew Gardens enjoys access to beautiful Forest Park, shopping and dining on Metropolitan Ave and Lefferts Blvd. Transportation options include LIRR (Kew Gardens), subways E/F (Kew Gardens/Union Tpke) and J/Z (121 St). New York City Bus routes include the Q10, Q37, Q45, Q46, Q48, Q54, Q60 and Q80 local routes, as well as express bus routes to Manhattan. Shuttles direct to JFK airport. Car access to the Jackie Robinson, Van Wyck, Union Tpke and Queens Blvd.
*Note: Interior size taken from floor plan measurements.
All showings by appointment during posted times.
Co-brokers always welcome.
- Gas
NeighborhoodMore listings:

RLS Data display by Nest Seekers LLC.
All information furnished regarding property for sale, rental or financing is from sources deemed reliable, but no warranty or representation is made as to the accuracy thereof and same is submitted subject to errors, omissions, change of price, rental or other conditions, prior sale, lease or financing or withdrawal without notice. International currency conversions where shown are estimates based on recent exchange rates and are not official asking prices.
All dimensions are approximate. For exact dimensions, you must hire your own architect or engineer.