Property
| Ownership: | For Sale |
|---|---|
| Type: | Single Family |
| Rooms: | 11 |
| Bedrooms: | 5 BR |
| Bathrooms: | 4½ |
| Pets: | No Pets Allowed |
| Lot Size: | 5.60 Acres |
Financials
Listing Courtesy of Corcoran Legends Realty
Set back from the road in one of Bedford s loveliest estate areas, down a tree lined drive, sits 328 McLain Street.
- Back of house featuring a chimney, a yard, a patio area, and an outdoor hangout area
- Aerial view of spectacular private property.
- The front of the house highlighting the architecture and the classic third floor.
- Heated pool and cabana.
- Large living room with fireplace.
- Magnificent front staircase opening to the living room and the dining room,
- Gracious dining room with lots of space to entertain.
- Sunroom with light pouring in.
- Sunroom opening onto slate terrace and perennial gardens
- Chef's kitchen with wonderful light.
- Eat-in comfortable informal dining.
- Back of house with slate patio
- Another view of the pool an the cabana
- Greenhouse and superintendent's cottage
- Perennial borders
- Gated entry
- Den off of the kitchen
- Primary bedroom fireplace
- Lovey windows
- Large ensuite bathroom with soaking tub and shower
- Family bedroom with fireplace
- Sleeping porch used as a playroom
- Upstairs hallway showing gracious staircase
- Family bathroom
- 25
- Family bedroom with fireplace
- Family bedroom
- Hallway with bookshelves on the third floor
- Third floor bedroom
- Third floor bedroom being used as an office
- Another view of the bedroom/office
- Artist's studio with skylight
- Sleeping porch used for storage
- Main floor powder room
- Guest cottage out by the pool with its own entrance
- Cathedral ceiling in the guest cottage
- Guest cottage living room with fireplace
- Guest cottage kitchen
- Guest cottage bedroom
- Guest cottage bathroom
- View of two car detached garage
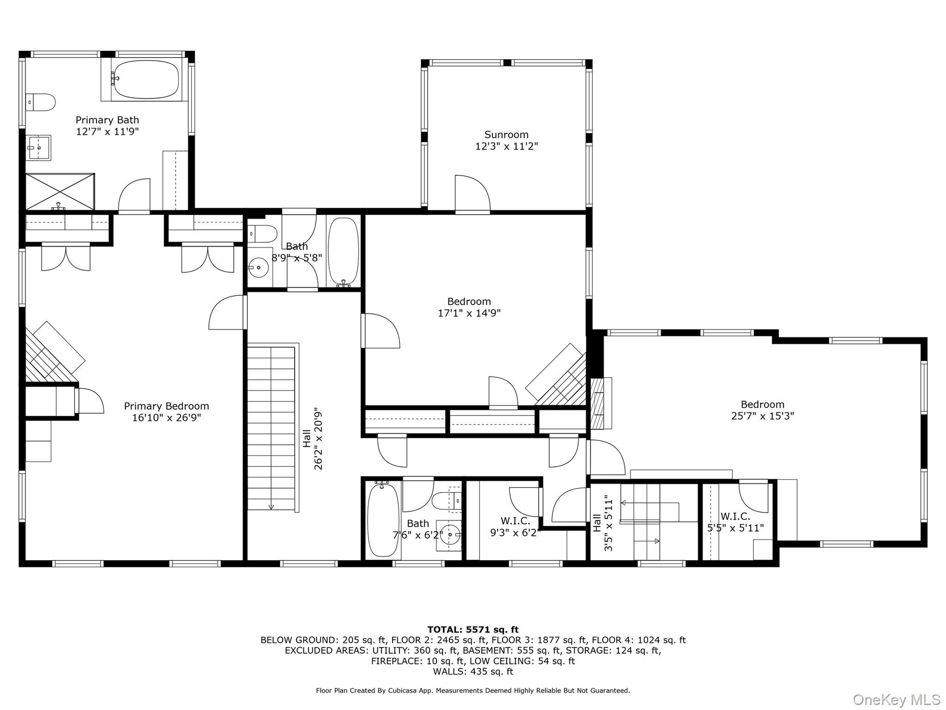
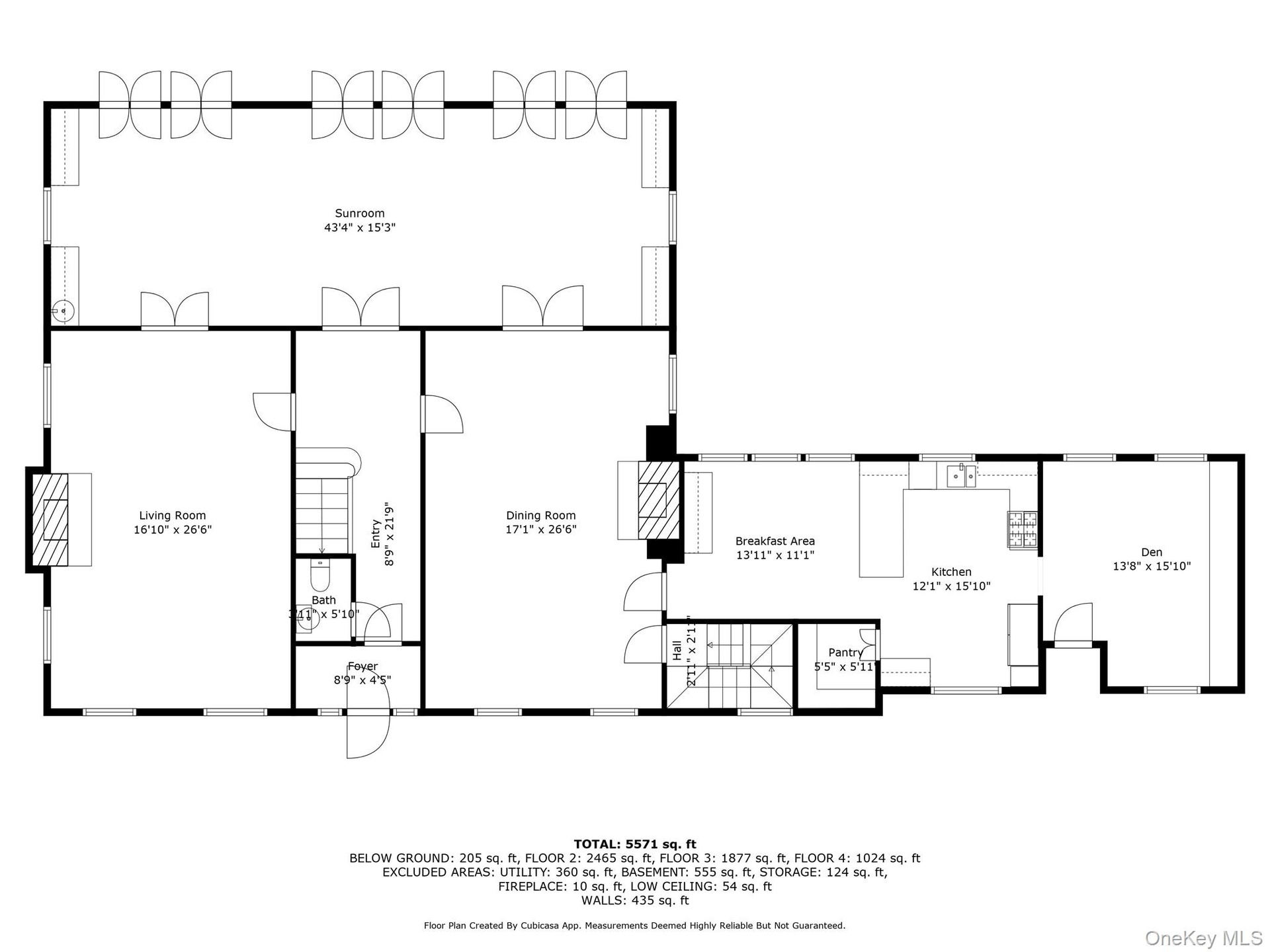
- View of floor plan / room layout
- View of property floor plan
- View of property floor plan
Description
Set back from the road in one of Bedford’s loveliest estate areas, down a tree-lined drive, sits 328 McLain Street. Designed and built in 1906 by the distinguished firm of Delano & Aldrich as the country retreat of Judge Learned Hand, this gracious Colonial residence is nestled on 5.5 acres, with specimen trees, sweeping lawns, and perennial gardens that create a setting of rare serenity. The unmatched privacy and acreage within minutes of trains/schools/shops all just an hour from the city are perfect as a full-time or country house. Its timeless style makes it as appealing now as when it was first built.
The house offers all the hallmarks of Bedford country living: swimming pool and chic cabana, charming guest cottage (think Brooklyn meets Paris), greenhouse, caretaker’s cottage, detached garage, and a maintenance barn.
Inside, the airy sunlit living room and the ample dining room, both with fireplaces, have French doors that open to an open plan sun-filled solarium, creating an easy flow. Outside the sunroom, a bluestone terrace overlooks an English garden that frames the additional acreage beyond. The chef’s kitchen and adjoining sitting room provide a warm, informal gathering space.
Upstairs, the primary suite offers a spacious, tranquil retreat, complete with a fireplace and an ensuite bath. Former sleeping porches have been reimagined as a playroom and guest quarters, while additional bedrooms, each with their own distinctive fireplace, enjoy garden views through large casement windows. The third floor adds further versatility with two generous bedrooms, a classic bath, and a sun-filled skylit artist’s studio with adjoining atelier.
This rare gem truly combines architectural pedigree, gracious proportions, and enduring charm.
More land available
Amenities
- Bedroom
- Dishwasher
- Dryer
- Eat-in Kitchen
- Electricity Connected
- Electric Oven
- Formal Dining
- Gas Range
- High ceiling
- Living Room
- Oil Water Heater
- Original Details
- Oven
- Refrigerator
- Washer

All information furnished regarding property for sale, rental or financing is from sources deemed reliable, but no warranty or representation is made as to the accuracy thereof and same is submitted subject to errors, omissions, change of price, rental or other conditions, prior sale, lease or financing or withdrawal without notice. International currency conversions where shown are estimates based on recent exchange rates and are not official asking prices.
All dimensions are approximate. For exact dimensions, you must hire your own architect or engineer.