Property
| Ownership: | Multi-Family |
|---|---|
| Rooms: | 14 |
| Bedrooms: | Studio |
| Pets: | Unknown |
Financials
697 Jefferson Avenue Semi Detached Four Family Victorian Brownstone in Prime Bed Stuy Set on one of Bedford Stuyvesant's most picturesque tree lined blocks between Malcolm X Boulevard and Stuyvesant ...
Description
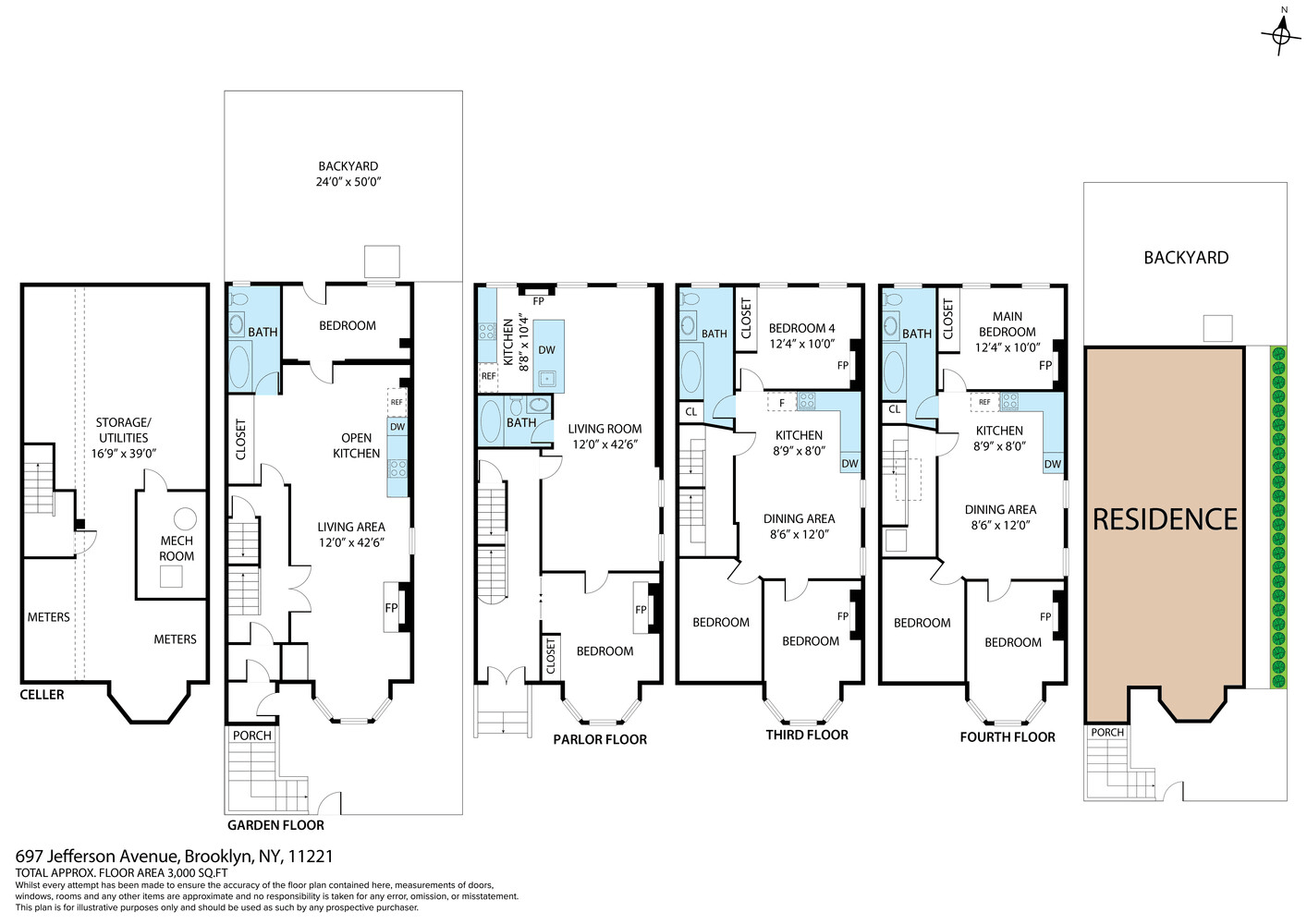
697 Jefferson Avenue - Semi-Detached Four-Family Victorian Brownstone in Prime Bed-Stuy
Set on one of Bedford-Stuyvesant's most picturesque tree-lined blocks between Malcolm X Boulevard and Stuyvesant Avenue, 697 Jefferson Avenue is that rare find: a semi-detached four-family brownstone where late-19th-century craftsmanship meets thoughtful modern upgrades. With an 18' 42' footprint and the added light and air that come from being semi-detached, the home reveals its pedigree the moment you step inside-seven original mantles and fireplaces, raised-panel wainscoting, pocket doors, soaring ceilings, a grand central staircase, and impeccably preserved millwork. Even the side walkway and backyard retain their original cobblestone, an authentic detail that anchors the property's Victorian character.
The residence is as practical as it is beautiful. The parlor floor-the most recently renovated and most elegant apartment-will be delivered vacant at closing, creating an ideal end-user scenario: live luxuriously on the parlor level while generating strong income from the remaining three units. Above, the third and fourth floors each offer a three-bedroom, one-bath layout, while the garden level presents an open-concept one-bedroom, one-bath with a seamless connection to the cobblestone yard. A finished basement provides flexible bonus space for storage, recreation, or work, further enhancing the home's versatility.
Beyond its immediate livability, the property offers meaningful upside. Zoning is R6B with approximately 2,000 square feet of unused FAR for future potential (buyer to verify), a rare combination in this location and condition. Throughout, the building has been meticulously maintained with recent renovations, preserving the romance of the past while supporting the demands of modern life.
Positioned amid Bed-Stuy's vibrant cafés, restaurants, and boutique destinations, the address enjoys excellent connectivity: the A/C trains at Utica Avenue and Kingston-Throop, the J/Z at Gates Avenue, and the B46 bus place Downtown Brooklyn and Manhattan comfortably within reach.
697 Jefferson Avenue is a statement townhouse-historic, gracious, and income-producing-offering a rare alignment of architecture, lifestyle, and investment. Full Matterport 3D tour, rent roll, and expenses available upon request.
Disclaimer: Some photos have been virtually staged.
Amenities
- Garden
- Voice Intercom
Neighborhood

RLS Data display by Nest Seekers LLC.
All information furnished regarding property for sale, rental or financing is from sources deemed reliable, but no warranty or representation is made as to the accuracy thereof and same is submitted subject to errors, omissions, change of price, rental or other conditions, prior sale, lease or financing or withdrawal without notice. International currency conversions where shown are estimates based on recent exchange rates and are not official asking prices.
All dimensions are approximate. For exact dimensions, you must hire your own architect or engineer.