New York, NY 11364

Property

Ownership: For Sale
Type: Single Family
Rooms: 9
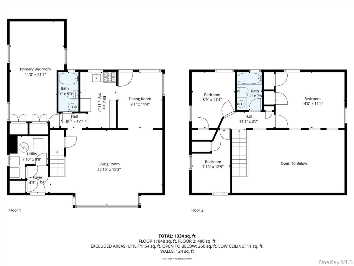
Bedrooms: 4 BR
Bathrooms: 2
Pets: Pets No
Lot Size: 0.11 Acres

Financials

Price:$1,180,000
Annual Taxes:$9,546.43
47-44 Vernon Blvd, Long Island City, NY 11101
Listing Courtesy of Tiffany Moves You Inc

Zoned R3X Lot Size 46. 66 100 ft Potential for Two Family Use.

View of front of property featuring a front yard and a chimney

Description

Zoned R3X – Lot Size 46.66 × 100 ft – Potential for Two-Family Use. Welcome to this well-maintained detached home situated on a 46.66 × 100 ft lot within R3X zoning, which may permit two-family development (buyer to verify with DOB and zoning specialist). The residence offers 4 bedrooms and 2 full bathrooms, featuring a bright, open living area, an updated kitchen with stainless-steel appliances, and a comfortable dining area. Additional highlights include a private backyard, detached garage, and a private driveway providing parking for multiple vehicles. Conveniently located near local shops, restaurants, schools, highway (I495, I295, and Cross Island Pkwy) and public transportation (Q27 & Q30 bus lines), the property offers both accessibility and a tranquil neighborhood setting. Property is selling AS-IS.

Amenities

  • Bay Window(s)
  • Cooktop
  • Dryer
  • Electricity Connected
  • First Floor Bedroom
  • Gas Oven
  • Microwave
  • Natural Gas Connected
  • Refrigerator
  • Sewer Connected
  • Stainless Steel Appliance(s)
  • Trash Collection Public
  • Washer
  • Washer/Dryer Hookup
  • Water Connected

Long Island MLS

All information furnished regarding property for sale, rental or financing is from sources deemed reliable, but no warranty or representation is made as to the accuracy thereof and same is submitted subject to errors, omissions, change of price, rental or other conditions, prior sale, lease or financing or withdrawal without notice. International currency conversions where shown are estimates based on recent exchange rates and are not official asking prices.

All dimensions are approximate. For exact dimensions, you must hire your own architect or engineer.