37-14 34th Street Apt: S3E
Queens, NY 11101
Cross street:37th Avenue

Building

Type:Low-rise
Era:Pre-war
Floors:7

Property

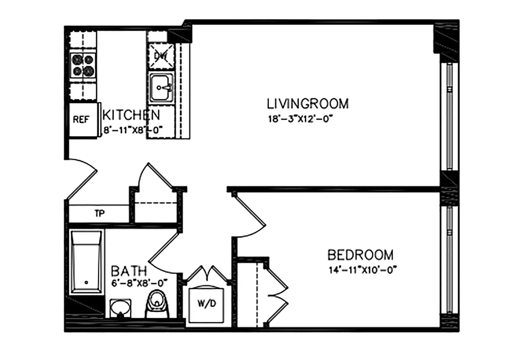
Rooms: 3
Bedrooms: 1 BR
Bathrooms: 1
Pets: Pets No

Financials

Rent:$3,850
24-20 Jackson Ave Floor 3 Long Island City, NY 11101, USA
Listing Courtesy of Sotheby's International Realty, Inc.

Apartment S3E is flooded with sunlight from the south eastern exposure.

Description

Apartment S3E is flooded with sunlight from the south-eastern exposure. The custom kitchen designed by Paris Forino features custom cabinetry, top-of-line appliances including a fully paneled refrigerator, a Blomberg dishwasher, a stainless-steel Bosch range, a vented cooktop hood, white slab marble countertops and backsplash, an island with a waterfall edge, and an under-mount deep sink. The well-proportioned bedroom fits a queen or king-size bed and has sunny south-eastern exposure. The bathroom features stone floors and walls, a custom stone and teak vanity, and a Duravit deep-soaking tub with chrome fixtures. Additional apartment features floor-to-ceiling windows, wide plank white oak floors, and an LG washer/dryer. Additionally, the apartment comes with blackout shades. Neighborly with great amenities including a 24-hour doorman, landscaped courtyard entrance, a lush Zen garden, a state-of-the-art fitness center, private study and lounge spaces, a children’s playroom, multiple furnished rooftop decks with grilling stations, a bicycle room. Fees listed below: Moving fee of $250 (Non-Refundable) Processing Fee $300 ( (Non-Refundable) Moving Deposit $1,000 (Refundable) Tenant hereby agrees that if the Keys need to be replaced during the Lease term Tenant will pay a fee of $100.00 for each key and $250.00 for each fob reissued by Landlord. 1st month Rent: $3,850 Security Deposit $3,850 Late Fee: $50.00 per month

Amenities

Bike Room; Garage; Garden; Fitness Room; Laundry Room; Nursery; Lounge; Cabanas; Roof Deck; Private Storage;
  • Washer / Dryer
  • Air Conditioning
  • Concierge
  • Elevator
  • Fitness Facility
  • Garage
  • Garden
  • Laundry Room
  • Roof Deck

Neighborhood

More listings:

OLR IDX

RLS Data display by Nest Seekers LLC.

All information furnished regarding property for sale, rental or financing is from sources deemed reliable, but no warranty or representation is made as to the accuracy thereof and same is submitted subject to errors, omissions, change of price, rental or other conditions, prior sale, lease or financing or withdrawal without notice. International currency conversions where shown are estimates based on recent exchange rates and are not official asking prices.

All dimensions are approximate. For exact dimensions, you must hire your own architect or engineer.