54 Butler Street
Cobble Hill | Townhouse Triplex | 3 Beds, 2.5 Baths | Four Private Outdoor Spaces
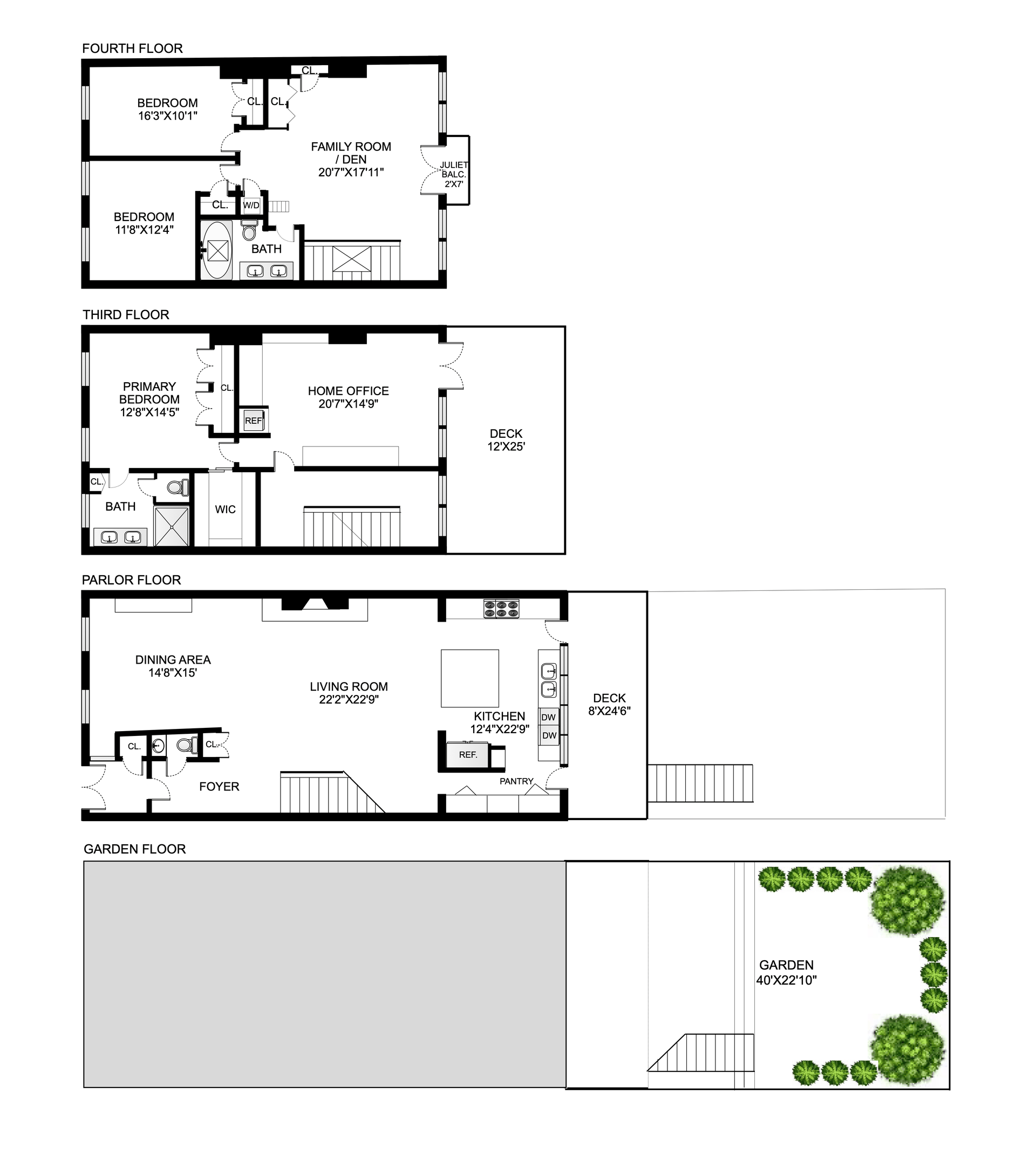
A rare 25-foot-wide townhome set on one of Cobble Hill’s most beautiful tree-lined blocks, 54 Butler Street is a masterfully rebuilt triplex offering 2,852 SF of interior living space and 1,514 SF of private outdoor space, combining the scale, light, and sophistication of a private residence in pristine condition. Reconstructed from the ground up in 2009 and reimagined into its current triplex form in 2021, this home blends timeless architectural character with contemporary craftsmanship and design precision.
On the parlor level, soaring ceilings set an impressive tone for grand-scale entertaining. A south-facing kitchen, bathed in natural light, features a separate butler’s pantry and dual access to a spacious terrace with stairs leading to a private garden below. The living room is anchored by a stately wood-burning fireplace, while the adjacent dining area is adorned with imported European lighting—creating a seamless balance of warmth and elegance. A powder room completes this floor.
The entire second level is devoted to the primary suite, designed as a tranquil retreat. A sunlit sitting room or office opens onto an expansive south-facing terrace. The suite continues through a generous walk-in closet and custom built-in wardrobe to the bedroom, complete with a serene en-suite bath featuring a private water closet and glass-enclosed shower.
The top floor offers a flexible layout ideal for family or guests, with two spacious bedrooms, a den with custom built-ins and a Juliet balcony, and a full bath. A central skylight illuminates the upper level, drawing natural light through the home’s core.
With four private outdoor spaces—all south-facing—and every modern comfort, this residence stands apart for its scale, light, and refined design. Ideally located in the heart of prime Cobble Hill, 54 Butler Street offers an elevated townhouse lifestyle on one of Brooklyn’s most coveted streets.
ALL SHOWINGS BY APPOINTMENT ONLY