285A Kingsland Avenue Apt: 2
Brooklyn, NY 11222
Cross street:Nassau Avenue

Building

Type:Townhouse
Era:Post-war
Floors:3

Property

Ownership: Multi-Family
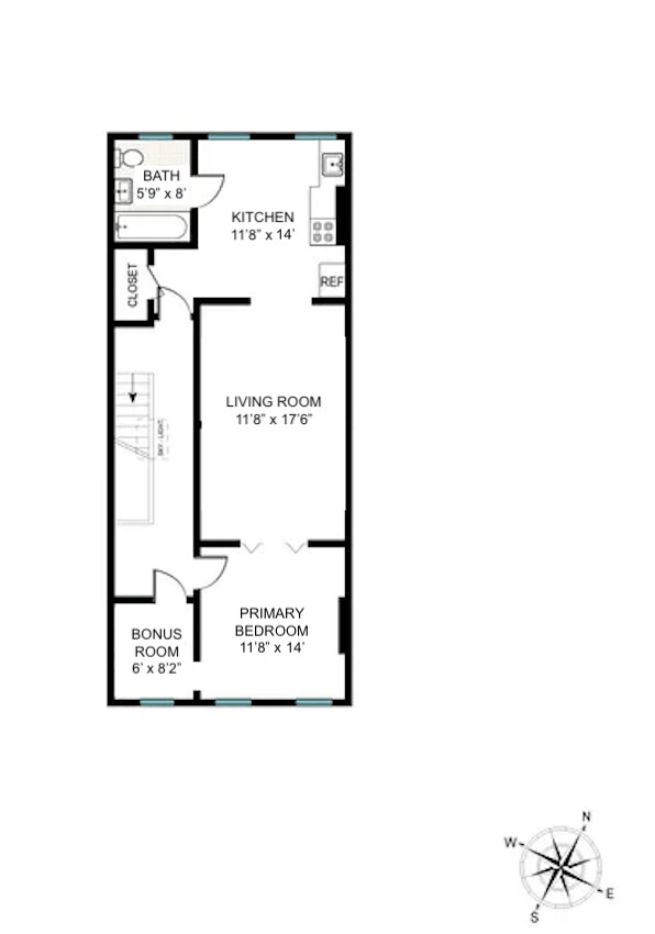
Rooms: 5
Bedrooms: 1 BR
Bathrooms: 1
Pets: Pets No

Financials

Price:$1,000,000
Real estate tax:$183
578 Driggs Avenue Brooklyn, NY 11211
Listing Courtesy of Serhant LLC

NOTE this unique opportunity can only be structured through either seller financing or a cash purchase.

Description

NOTE: this unique opportunity can only be structured through either seller financing or a cash purchase. Please inquire for details.

The building has 2 units. Monthly expenses are split with the downstairs unit owner and total approximately $450 per month, including property taxes, home insurance, garbage fees etc.

A rare Brooklyn industrial-chic loft. Meticulously renovated in 2024, this bright and airy third-floor unit pairs sleek upgrades with raw, textured details including exposed brick and semi-finished plaster walls, creating an unmistakably edgy draw.

11 foot ceilings, reclaimed hardwood floors, and oversized windows all bring bright and warm character, while the clean white cabinetry and modern fixtures strike a polished contrast. The versatile layout easily converts to 1.5 bedrooms, as previously done, or can be enjoyed in its expansive open-loft style. The thoughtfully appointed bathroom boasts a deep, custom soaking tub, heated floors and a washer & dryer. The stylish dine-in kitchen features patinated plaster walls, a double-wide sink, an integrated Bosch dishwasher and French-door refrigerator.

Energy efficient split AC units and European double pane windows provide optimal sound and climate insulation, while also lessening your energy consumption. The extra tall south and north-facing windows feature customized electric blackout blinds. The radiators were retrofitted with hot water, to avoid the clanking and over-drying aspects of original forced air radiators.

Located on a quiet residential block of Eastern Greenpoint, an area that offers a charming blend of historic appeal and creative energy. The tree-lined blocks are dotted with century-old townhouses, cozy cafés, and artisan bakeries, all just moments from Greenpoint and Williamsburg's buzzing scenes. On the corner of the block, stroll McGolrick Park's weekend farmers market and dog-friendly green space. McCarren Park is also within quick reach down the road. Nearby, the Nassau G train stop and the BQE allow for easy access around the boroughs.

Architectural design highlights:

- Top floor unit with 11 foot ceilings

- Reclaimed hardwood floors

- Handmade Portuguese tiles

- Swedish light fixtures

- Separate, bonus area perfect for an office setup, nursery, or additional storage

- Roof rights, with private access from the loft

Energy-efficient upgrades:

- European double pane windows

- Electric black out blinds

- 2 zone AC split units

- Retrofitted hot water radiators

- Nest thermostats

Appliances and fixtures:

- LG Washer & Dryer

- Bosch dishwasher

- French double door refrigerator

- Deep custom bathtub

- Heated bathroom floors

- Double-wide kitchen sink

Amenities

  • Washer / Dryer
  • Voice Intercom

Neighborhood

More listings:

OLR IDX

RLS Data display by Nest Seekers LLC.

All information furnished regarding property for sale, rental or financing is from sources deemed reliable, but no warranty or representation is made as to the accuracy thereof and same is submitted subject to errors, omissions, change of price, rental or other conditions, prior sale, lease or financing or withdrawal without notice. International currency conversions where shown are estimates based on recent exchange rates and are not official asking prices.

All dimensions are approximate. For exact dimensions, you must hire your own architect or engineer.