Property
| Ownership: | Multi-Family |
|---|---|
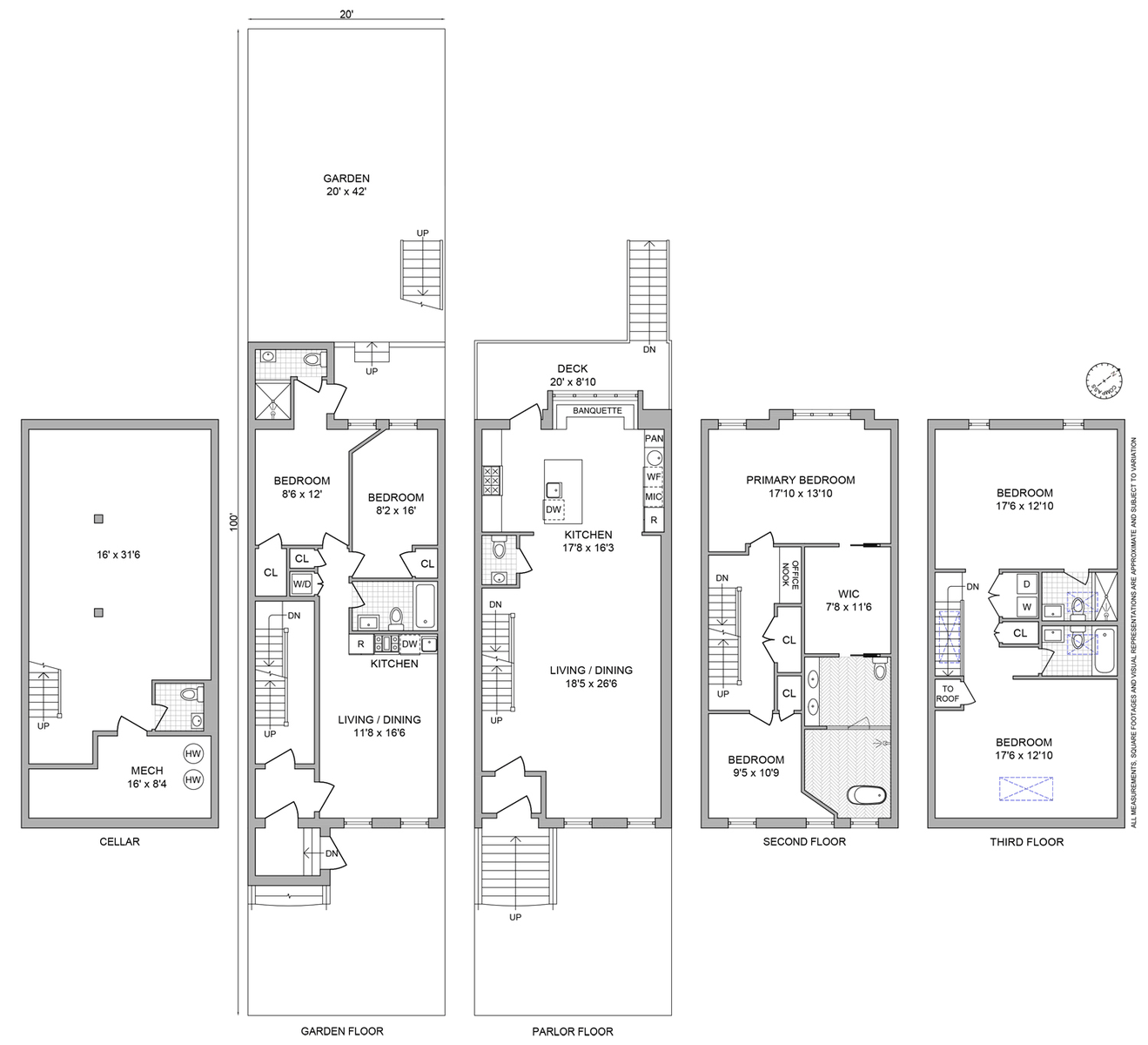
| Rooms: | 16 |
| Bedrooms: | Studio |
| Pets: | Unknown |
Financials
Price:$2,995,000
Real estate tax:$4,308
Listing Courtesy of Compass
Developed and designed by Bolt Equities.
Description
Developed and designed by Bolt Equities.
Indulge in elevated living at 757 Putnam, a stunningly reimagined townhouse in the heart of BedStuy. This exquisite, newly renovated 2-family residence seamlessly blends classic architectural charm with modern sophistication. Every detail has been thoughtfully curated to enchant and inspire, making this a truly rare gem in one of Brooklyn’s most coveted enclaves.
Enter through the entry foyer into a grand, light-filled living room that radiates warmth and sophistication, where soaring ceilings and expansive proportions create an immediate sense of home. Sunlight dances across the exquisite herringbone oak floors, drawing attention to the meticulous craftsmanship and refined details throughout. This impressive space with a working woodburning fireplace flows into a show-stopping chef’s kitchen—an entertainer’s dream—featuring bespoke white oak cabinetry, integrated appliances including a French door Fisher-Paykel refrigerator, six burner Wolf stove, a built-in microwave, a built-in wine cooler together with a striking marble center island. A charming and intimate velvet banquette dining nook adds a thoughtful touch. A beautiful, sleek glass door opens onto a generous 160 sq ft private terrace, unveiling sweeping vistas of verdant neighboring gardens and effortlessly blending refined indoor comfort with the tranquil beauty of the outdoors.
Ascending to the second level, you are welcomed into the serene sleeping quarters—thoughtfully designed to embody both comfort and sophistication. The primary suite is a true sanctuary of elegance, boasting a glamorous walk-in dressing area and a breathtaking en-suite bathroom adorned with premium fixtures and beautiful Zeleg tiles. This spa-inspired sanctuary boasts dual marble-topped vanities with custom Arabescato floating sinks, a luxurious rain shower, and an elegant soaking tub—offering a daily escape into pure indulgence and sophistication. Also on this floor is a spacious secondary bedroom, complemented by two oversized hallway closets that provide ample, beautifully integrated storage. And the enchantment continues to the third level where two additional sun-kissed bedrooms await, including one graced with a captivating skylight that bathes the space in natural light. This floor also offers two beautifully appointed bathrooms—one with its own skylight—alongside the convenience of a vented washer and dryer.
The garden level two-bedroom, two-bath residence is a private haven of comfort and style, featuring a generously proportioned living room and a sleek, full kitchen adorned with brand-new stainless steel appliances. A beautifully renovated bathroom showcases a deep-soaking tub, perfect for unwinding. With ample closet space, an in-unit washer and dryer, and direct access to a lush backyard oasis, this inviting space offers exceptional versatility—ideal as an income-generating rental or an elegant private guest retreat.
No expense was spared in the meticulous renovation of this elegant residence, where timeless sophistication meets cutting-edge innovation. Thoughtfully curated details include a state-of-the-art built-in speaker system, generous custom-fitted closets, zoned central air conditioning, exquisite herringbone oak floors, and sleek double-pane windows surrounded by their original moldings—each element contributing to a harmonious blend of luxury, comfort, and modern refinement.
Situated on a picturesque, tree-lined street in Bedford-Stuyvesant, this re-imagined townhouse is surrounded by local dining hotspots and parks. You are just moments away from popular dining spots such as Trad Room, Laziza, Saraghina’s, and Chez Oskar, as well as tennis courts, basketball courts and several playgrounds. Nearby public transportation options include the A/C trains and the Halsey B26, with JFK just a short 20-minute drive away
Amenities
Garden;
- Air Conditioning
- Garden
- Walk-up
Neighborhood
More listings:

RLS Data display by Nest Seekers LLC.
All information furnished regarding property for sale, rental or financing is from sources deemed reliable, but no warranty or representation is made as to the accuracy thereof and same is submitted subject to errors, omissions, change of price, rental or other conditions, prior sale, lease or financing or withdrawal without notice. International currency conversions where shown are estimates based on recent exchange rates and are not official asking prices.
All dimensions are approximate. For exact dimensions, you must hire your own architect or engineer.