Peekskill, NY 10566

Property

Ownership: For Sale
Type: Single Family
Rooms: 7
Bedrooms: 4 BR
Bathrooms: 2
Pets: Pets No
Lot Size: 0.17 Acres

Financials

Price:$784,222
Annual Taxes:$19,800
505 Park Ave, New York, NY 10022
Listing Courtesy of Mark Seiden Real Estate Team

To Be Built Your Dream Home Awaits !

Description

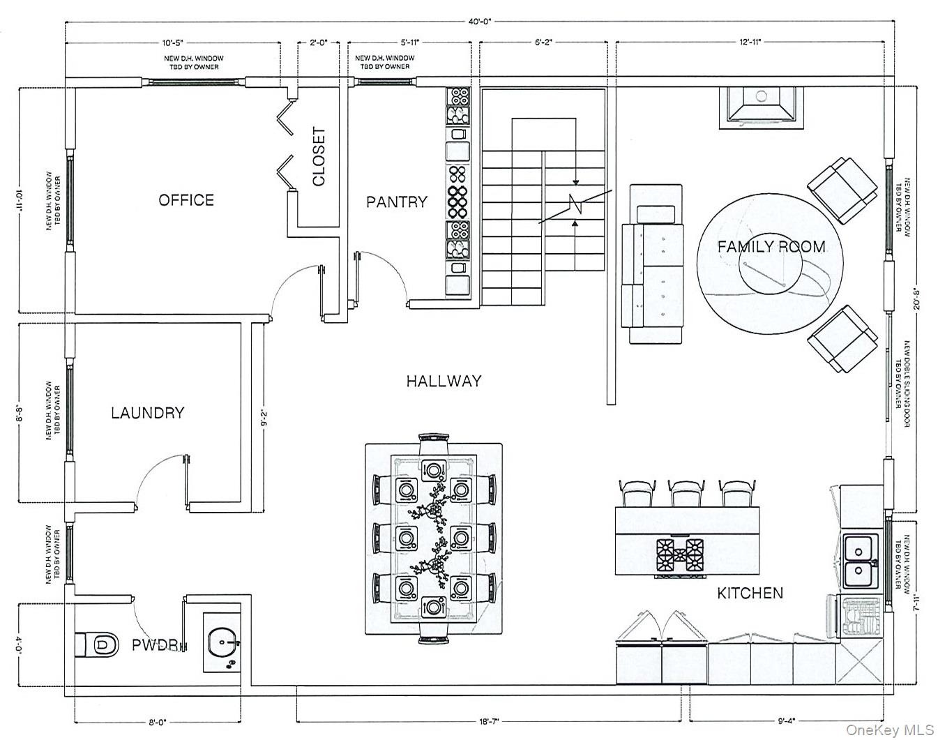
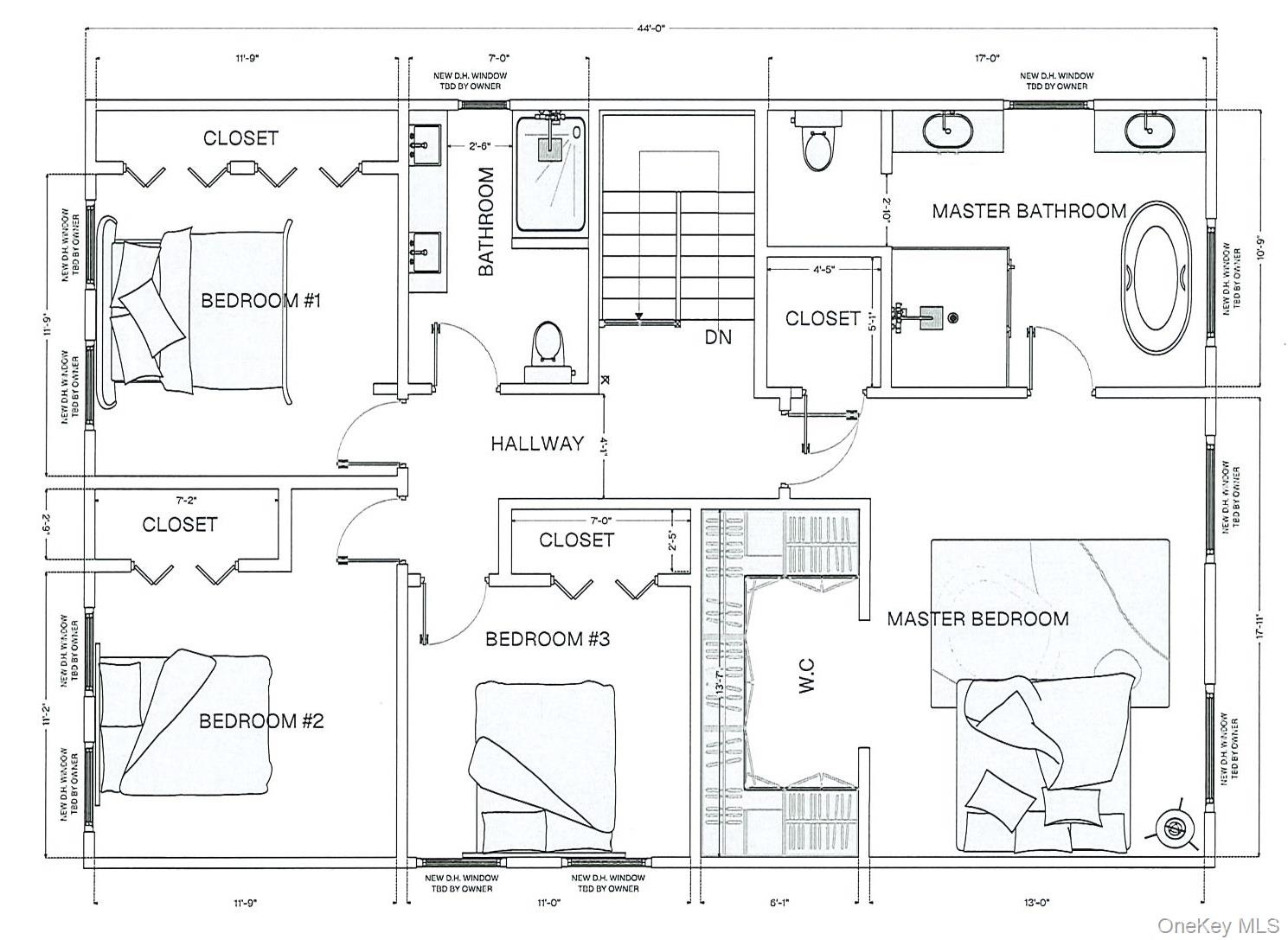
To Be Built – Your Dream Home Awaits! Imagine moving into a brand new home with all the bells and whistles, perfectly situated on a beautiful parcel of land abutting Depew Park! This is your chance to personalize your future home by selecting colors and finishes before construction is complete. The open floor plan is ideal for entertaining. The main level is comprised of a state of the art kitchen with stylish stainless steel appliances, spacious walk in pantry, center island with seating and quartz or granite counters. There is also a family room with cozy fireplace, a dedicated office/den for remote work or play time, a dining area, and a powder room. Hardwood floors or flooring of your choice, as well as LED and recessed lighting will complete the decor. The second floor has a primary suite with two walk in closets, a luxurious bathroom featuring a soaking tub, cultured marble countertops, and a walk-in shower. There are also three generously sized bedrooms, and a hall bathroom with double sinks and bathtub with shower for added comfort. Additional perks include a pull-down stair attic, partial basement, and a rear paver patio—perfect for outdoor relaxation and entertaining. Conveniently located near Metro North, the Hudson River waterfront, and all the shops, restaurants, and schools that vibrant Peekskill has to offer. Enjoy the best of suburban life with modern amenities and timeless style! There are no audio recording devices inside this property.

Amenities

  • Chandelier
  • Dishwasher
  • Double Pane Windows
  • Dryer
  • Electricity Connected
  • Family Room
  • Granite Counters
  • Kitchen Island
  • Near Public Transit
  • Near School
  • Near Shops
  • Open Floorplan
  • Open Kitchen
  • Oven
  • Pantry
  • Primary Bathroom
  • Quartz/Quartzite Counters
  • Range
  • Recessed Lighting
  • Refrigerator
  • Sewer Connected
  • Soaking Tub
  • Stainless Steel Appliance(s)
  • Underground Utilities
  • Walk-In Closet(s)
  • Washer
  • Water Connected

Long Island MLS

All information furnished regarding property for sale, rental or financing is from sources deemed reliable, but no warranty or representation is made as to the accuracy thereof and same is submitted subject to errors, omissions, change of price, rental or other conditions, prior sale, lease or financing or withdrawal without notice. International currency conversions where shown are estimates based on recent exchange rates and are not official asking prices.

All dimensions are approximate. For exact dimensions, you must hire your own architect or engineer.