New York, NY 11370

Property

Ownership: For Sale
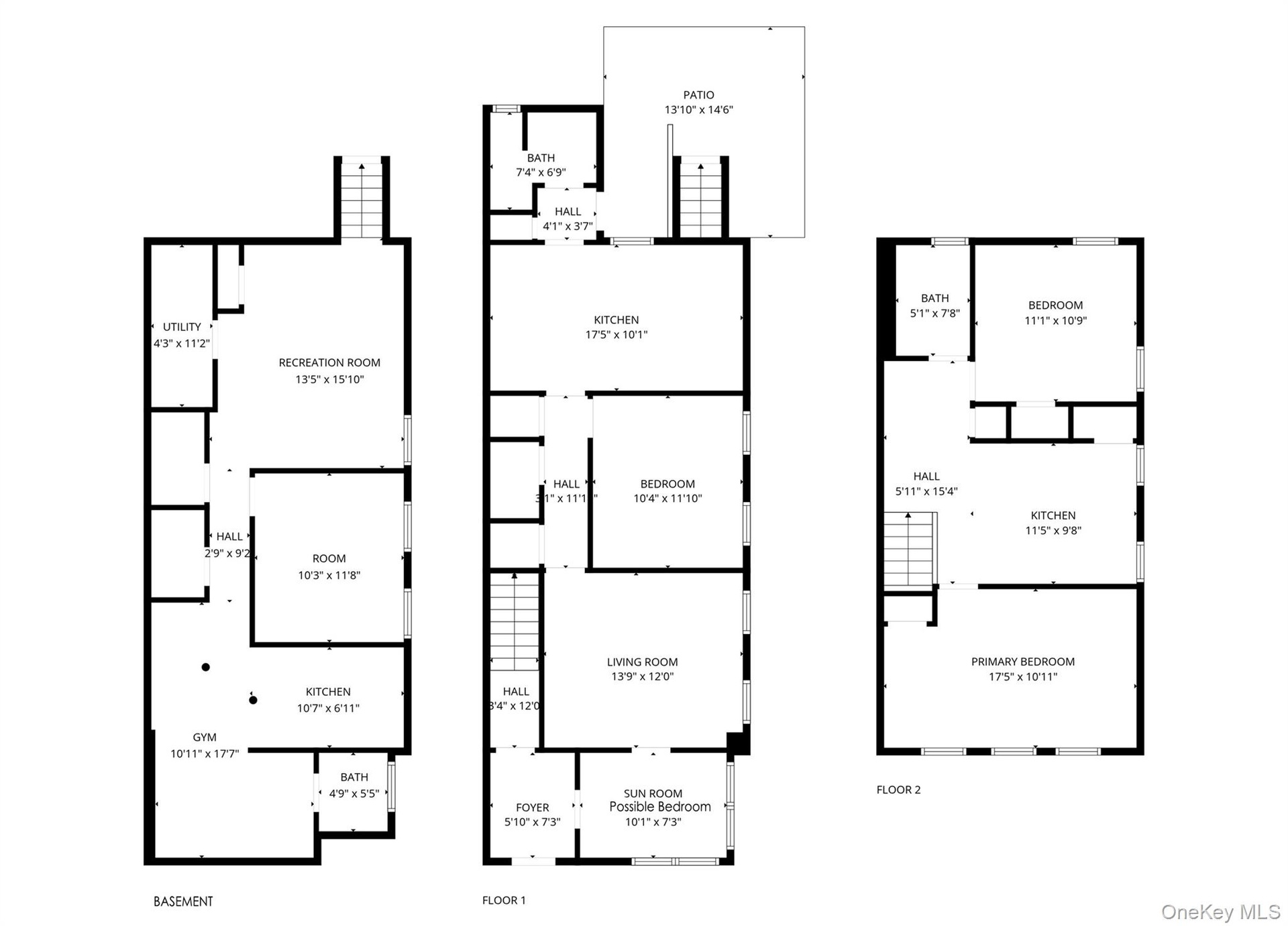
Type: Duplex
Bedrooms: 3 BR
Bathrooms: 3
Pets: No Pets Allowed
Lot Size: 0.05 Acres

Financials

Price:$1,098,000
Annual Taxes:$7,762
47-44 Vernon Blvd, Long Island City, NY 11101
Listing Courtesy of Prospes Real Estate Corp

Welcome to this charming 2 family semi detached home in the heart of Jackson Height !

View of front of home with brick siding and a tile roof

Description

Welcome to this charming 2-family semi-detached home in the heart of Jackson Height! The first floor features an eat-in kitchen, 1 bedroom, and 1 full bath. The second floor offers 2 comfortable bedrooms and 1 bath, perfect for additional living space or rental income. A full finished basement with walk-out access provides extra versatility for storage or recreation. Enjoy a shared driveway and a detached 2-car garage for convenient parking. Ideally located near Grand Central Pkwy and Astoria Blvd, with easy access to Q32, Q33, and Q66 buses. Just minutes to Northern Blvd’s shops, restaurants, and entertainment.

Amenities

  • Electricity Available
  • First Floor Bedroom
  • Natural Gas Available
  • Sewer Available
  • Trash Collection Public

Long Island MLS

All information furnished regarding property for sale, rental or financing is from sources deemed reliable, but no warranty or representation is made as to the accuracy thereof and same is submitted subject to errors, omissions, change of price, rental or other conditions, prior sale, lease or financing or withdrawal without notice. International currency conversions where shown are estimates based on recent exchange rates and are not official asking prices.

All dimensions are approximate. For exact dimensions, you must hire your own architect or engineer.