300 East 4th Street Apt: 5A
New York, NY 10009
Cross street:Avenue B

Building

Type:Loft
Era:Post-war
Floors:5

Property

Ownership: Co-op
Rooms: 3
Bedrooms: 1 BR
Bathrooms: 1
Pets: Pets Allowed

Financials

Price:$950,000
Maintenance:$2,400
Financing Allowed:80%
Minimum down:$190,000
505 Park Ave, New York, NY 10022
Listing Courtesy of Compass

This home is the ultimate East Village unicorn a brand new fully renovated pre war apartment with its own exceptional private rooftop garden giving panoramic views.

Description

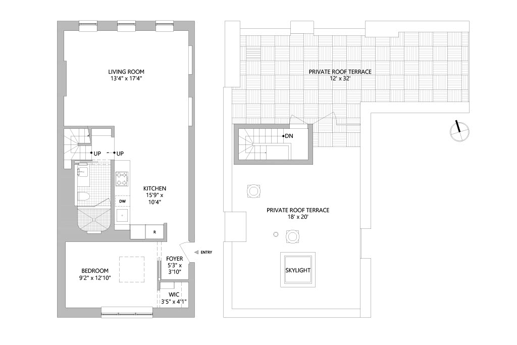
This home is the ultimate East Village unicorn: a brand new fully renovated pre-war apartment with its own exceptional private rooftop garden giving panoramic views. Be the first to live in this impeccably renovated 1b/1b prewar co-op designed by SYA Architects. High ceilings, a skylight in the king sized bedroom, light pouring in from the glass door to the roof deck and the open floor plan, this home is sun filled and airy. A combined square footage of 1600 SF, the indoor and outdoor spaces maximize your living and entertainment enjoyment. The thoughtful renovation includes new windows throughout, remote controlled mini-split systems for heating and cooling and new white oak flooring. The kitchen features walnut cabinets, high end appliances including a gas cooktop designed as a collaboration between Smeg and Renzo Piano’s Design Studio, a Kohler stainless steel sink, Leibherr refrigerator and maximized kitchen storage. Fireclay handmade tiles in the bathroom are laid out in an arched configuration which feels more like a spa than a shower. This is an inspired and relaxing space that could as easily be in Paris or Istanbul as in New York. Building residents enjoy a shared laundry room, a landscaped shared roof deck, bike storage, and a keyless video intercom system that connects to your phone. The building also features a superintendent and is pet-friendly. A Citi Bike station is conveniently located one block away on 5th Street. The co-op has a flexible subletting policy, allowing rentals after two years of ownership with a 1% flip tax on sales occurring on sales after five years of ownership. Originally built as a rectory in 1888, this historic building is situated at the corner of Avenue C and East 4th Street. This boutique elevator building offers a blend of East Village charm and modern amenities amidst a neighborhood known for its cultural richness and music scene.

Amenities

Bike Room; Laundry Room; Roof Deck;
  • Private Roof
  • Elevator
  • Laundry Room
  • Roof Deck
  • Video Intercom

Neighborhood

More listings:

OLR IDX

RLS Data display by Nest Seekers LLC.

All information furnished regarding property for sale, rental or financing is from sources deemed reliable, but no warranty or representation is made as to the accuracy thereof and same is submitted subject to errors, omissions, change of price, rental or other conditions, prior sale, lease or financing or withdrawal without notice. International currency conversions where shown are estimates based on recent exchange rates and are not official asking prices.

All dimensions are approximate. For exact dimensions, you must hire your own architect or engineer.