Property
| Ownership: | Co-op |
|---|---|
| Rooms: | 3 |
| Bedrooms: | 1 BR |
| Bathrooms: | 1 |
| Pets: | Pets Allowed |
Open Houses
Contact for details !
Financials
Price:$560,000
Maintenance:$864
Listing Courtesy of Brown Harris Stevens Residential Sales LLC
Welcome home to 130 Henry Street located in the finest and most charming neighborhood in Brooklyn !
Description
Welcome home to 130 Henry Street located in the finest and most charming neighborhood in Brooklyn! Flooded with natural light from two skylights and northwest-facing windows, 4R is a bright and welcoming home that perfectly balances charm and comfort. Enjoy sweeping views of leafy treetops, timeless Brooklyn Heights brownstones, and the glittering Manhattan skyline.
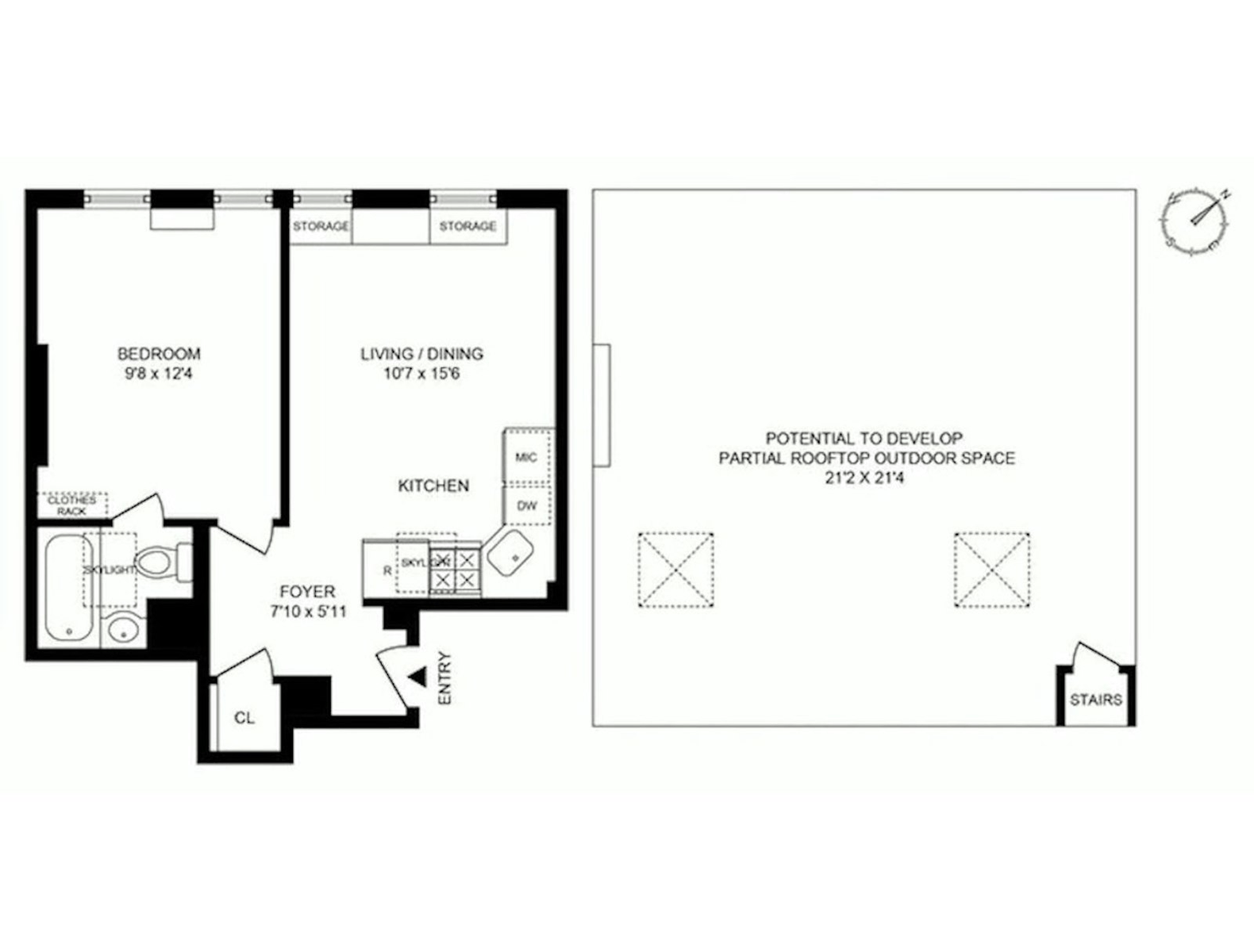
An inviting entry foyer opens to a sweet living area with exposed brick and hardwood flooring. The updated kitchen, brightened by a skylight, features quartz countertops, an under mount sink, and stainless steel appliances, including a gas range, microwave, dishwasher, and full-size refrigerator.
The bedroom, highlighted by a painted exposed brick wall, comfortably fits a queen-sized bed and additional furniture. The updated en-suite bath offers both style and functionality, with a shower and tub, classic subway tiles, mosaic tile flooring, shelving, and a third skylight bringing in natural light.
Subject to approval from the cooperative's board and the NYC Department of Buildings, the future owner of 4R can design an exclusive 21' by 21' rooftop retreat overlooking the Manhattan skyline. There is a Laundry and shared storage available in the building.
Ideally located in the heart of the Brooklyn Heights Historic District, 130 Henry is a landmarked 19th-century brownstone nestled along a peaceful, tree-lined street. Enjoy local favorites restaurants and cafes such as Clark's, Boutros Kogane Ramen, and Michelin-starred The River Café. With DUMBO nearby and embraced by green spaces, the building sits between the Brooklyn Bridge Park Promenade and the Brooklyn Greenway, offering breathtaking skyline views and convenient access to the 2, 3, A, C, and R trains.
An inviting entry foyer opens to a sweet living area with exposed brick and hardwood flooring. The updated kitchen, brightened by a skylight, features quartz countertops, an under mount sink, and stainless steel appliances, including a gas range, microwave, dishwasher, and full-size refrigerator.
The bedroom, highlighted by a painted exposed brick wall, comfortably fits a queen-sized bed and additional furniture. The updated en-suite bath offers both style and functionality, with a shower and tub, classic subway tiles, mosaic tile flooring, shelving, and a third skylight bringing in natural light.
Subject to approval from the cooperative's board and the NYC Department of Buildings, the future owner of 4R can design an exclusive 21' by 21' rooftop retreat overlooking the Manhattan skyline. There is a Laundry and shared storage available in the building.
Ideally located in the heart of the Brooklyn Heights Historic District, 130 Henry is a landmarked 19th-century brownstone nestled along a peaceful, tree-lined street. Enjoy local favorites restaurants and cafes such as Clark's, Boutros Kogane Ramen, and Michelin-starred The River Café. With DUMBO nearby and embraced by green spaces, the building sits between the Brooklyn Bridge Park Promenade and the Brooklyn Greenway, offering breathtaking skyline views and convenient access to the 2, 3, A, C, and R trains.
Amenities
Laundry Room; Common Storage;
- Laundry Room
- Voice Intercom
Neighborhood
More listings:

RLS Data display by Nest Seekers LLC.
All information furnished regarding property for sale, rental or financing is from sources deemed reliable, but no warranty or representation is made as to the accuracy thereof and same is submitted subject to errors, omissions, change of price, rental or other conditions, prior sale, lease or financing or withdrawal without notice. International currency conversions where shown are estimates based on recent exchange rates and are not official asking prices.
All dimensions are approximate. For exact dimensions, you must hire your own architect or engineer.