388 Bridge Street Apt: 41F
Brooklyn, NY 11201
Cross street:Willoughby Street

Building

Type:High-Rise
Era:Pre-war
Floors:53

Property

Ownership: Condo
Rooms: 3
Bedrooms: 1 BR
Bathrooms: 1
Pets: Pets Allowed

Financials

Price:$999,999
Common charges:$979
Real estate tax:$674
Financing Allowed:70%
Minimum down:$299,999.70
578 Driggs Avenue Brooklyn, NY 11211
Listing Courtesy of Krieger Real Estate LLC

INVESTOR UNIT Leased until October 31, 2026.

Description

INVESTOR UNIT - Leased until October 31, 2026. Contact agent for income/ expenses and net operating income.

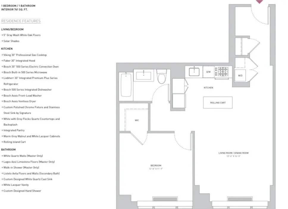
This spacious 1 bedroom condo features a flexible living space and large bedroom with a huge closet. The unit features large windows, wide-plank oak floors, and designer hardware and fixtures. The kitchen features a Liebherr refrigerator, Viking gas cooktop, and Bosch convection wall oven, microwave, and dishwasher. White quartz countertops and backsplashes, warm grey walnut cabinets, custom fixtures, a concealed pantry, and a large moveable island give residents the flexibility to alter the function of the kitchen for more space. The bathroom features white quartz counter tops and a full-height back splash; custom designed, rear-draining white quartz cast sink; a white lacquer vanity and a large shower. 388 Bridge is one of Brooklyns tallest residential towers, and offers panoramic views of many New York City landmarks. Providing the highest level of amenities, 388 Bridge offers a grand fully-attended lobby, sky lounge, and rooftop viewing terrace. Common spaces include a Lounge /Party Room, Media Room, and 5th Floor Outdoor Terrace with barbecue grilling deck and separate childrens play area. Positioned in the heart of downtown Brooklyn, the area is a nexus of culture, commerce and recreation. Adjacent neighborhoods including Boerum Hill, Cobble Hill, Fort Greene and Dumbo await exploration. Easy access to A, C, B, Q, R, F, G, 2, 3, & 4, 5 trains.





Amenities

Bike Room; Garage; Courtyard; Health Club; Laundry Room; Nursery; Playground; Lounge; Party Room; Roof Deck; Common Storage; Cinema Room;
  • Private Roof
  • Washer / Dryer
  • Courtyard
  • Elevator
  • Full service
  • Garage
  • Health Club
  • Laundry Room
  • Roof Deck

Neighborhood

More listings:

OLR IDX

RLS Data display by Nest Seekers LLC.

All information furnished regarding property for sale, rental or financing is from sources deemed reliable, but no warranty or representation is made as to the accuracy thereof and same is submitted subject to errors, omissions, change of price, rental or other conditions, prior sale, lease or financing or withdrawal without notice. International currency conversions where shown are estimates based on recent exchange rates and are not official asking prices.

All dimensions are approximate. For exact dimensions, you must hire your own architect or engineer.