50 East Road Apt: 6e
Delray Beach, FL 33483

Property

Ownership: Condo
Type: Condo
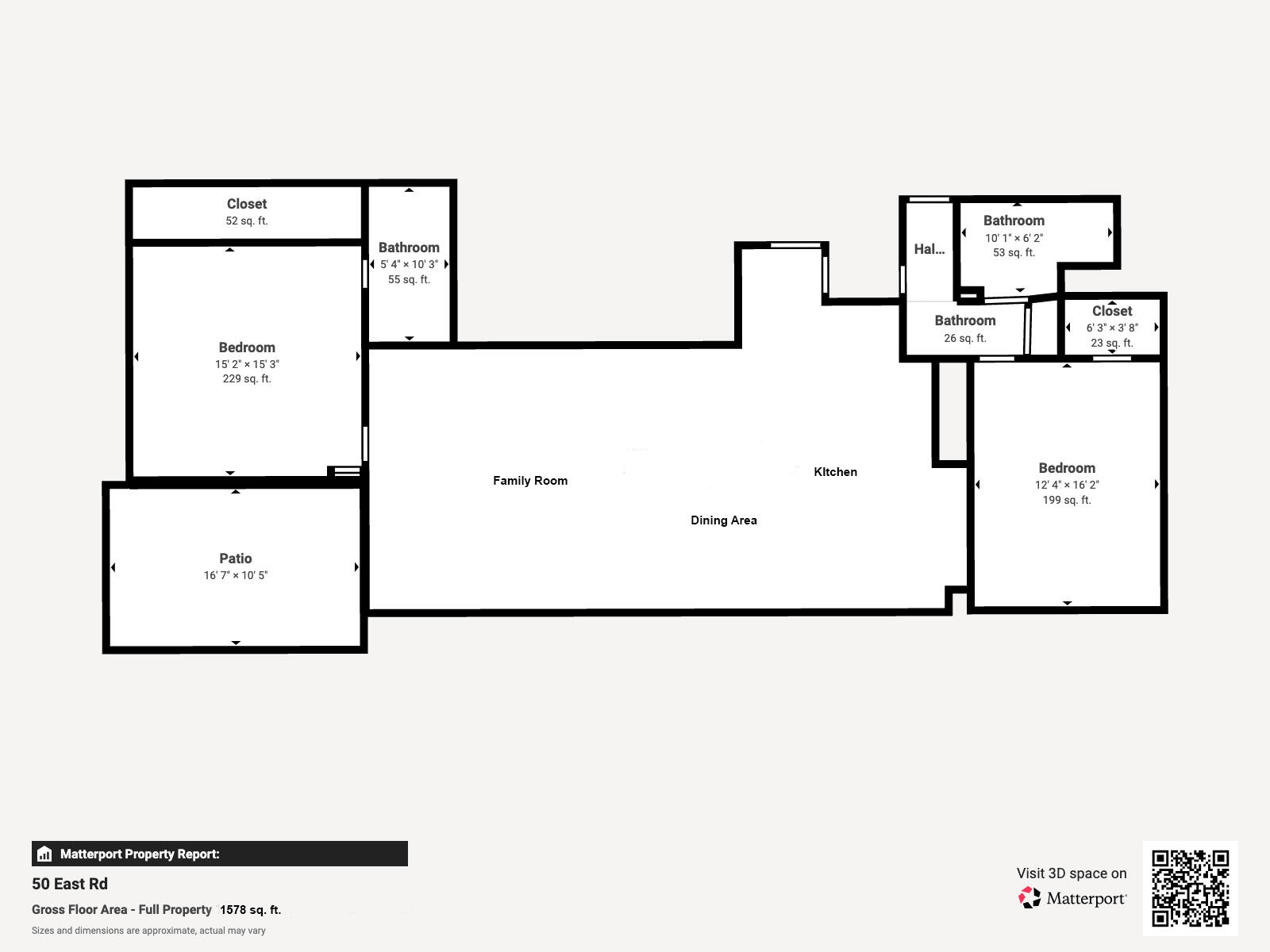
Bedrooms: 2 BR
Bathrooms: 2
Pets: Pets Case By Case
Area: 4140 sq ft

Financials

Price:$899,000
Deborah L. Ginsburg
150 Worth Ave, Palm Beach, FL 33480
Listing Courtesy of REDFIN CORPORATION

Spacious 2 bedroom, 2 bath corner unit is one of the largest units available in this full service building in desirable Delray Beach.

Description

Spacious 2-bedroom, 2-bath corner unit is one of the largest units available in this full-service building in desirable Delray Beach. This southeast-facing condo enjoys bright morning light and city views from an oversized, fully enclosed 19' x 11' balcony overlooking the water. This unit features hurricane-impact windows, in-unit washer and dryer, and a brand-new A/C system. The open layout includes a formal dining area and a modern eat-in kitchen with recessed lighting, custom wood cabinetry, stainless steel appliances, and granite countertops. The split-bedroom floor plan provides privacy, with the primary suite and second bath both offering walk-in showers.

Unbranded Virtual Tour: https://my.matterport.com/show/?m=5E8uoEhmuQ7

Amenities

  • Blinds
  • Cable
  • ceiling fan
  • Central
  • Clubhouse
  • Common Areas
  • Common R.E. Tax
  • Community Room
  • Cooktop
  • Corner
  • Directly on Sand
  • Dishwasher
  • Doorman
  • Dryer
  • Electric
  • Elevator
  • Fire Alarm
  • Fitness Center
  • Insurance-Bldg
  • Interior Hallway
  • Janitor
  • Laundry-Inside
  • Lawn Care
  • Lobby
  • Manager
  • Microwave
  • Ocean
  • Oceanfront
  • Picnic Area
  • Pool
  • Pool Service
  • Public Sewer
  • Public Water
  • Recrtnal Facility
  • Refrigerator
  • Reserve Funds
  • Roof Maintenance
  • Security
  • Security Patrol
  • Sewer
  • Sliding
  • Smoke Detector
  • Storage
  • Street Lights
  • Wall Oven
  • Washer
  • Washer/Dryer Hookup
  • Water

All information furnished regarding property for sale, rental or financing is from sources deemed reliable, but no warranty or representation is made as to the accuracy thereof and same is submitted subject to errors, omissions, change of price, rental or other conditions, prior sale, lease or financing or withdrawal without notice. International currency conversions where shown are estimates based on recent exchange rates and are not official asking prices.

All dimensions are approximate. For exact dimensions, you must hire your own architect or engineer.