25 East 21st Street Apt: 3-FLR
New York, NY 10010
Cross street:Broadway

Building

Type:Loft
Era:Post-war
Floors:11

Property

Ownership: Condo
Rooms: 10
Bedrooms: 4 BR
Bathrooms:
Pets: Pets Allowed

Financials

Price:$3,700,000
Common charges:$3,681
Real estate tax:$2,879
Financing Allowed:90%
Minimum down:$370,000
594 Broadway, New York, NY 10012, USA
Listing Courtesy of Prime Manhattan Residential

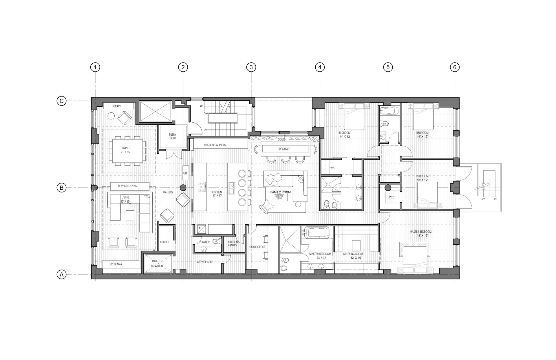
This exceptional 3rd floor open loft is an expansive canvas, stretching over 40' wide and extending 82' deep.

Description

This exceptional 3rd-floor open loft is an expansive canvas, stretching over 40' wide and extending 82' deep. Boasting soaring ceiling heights of over 12.5', this remarkable space presents a perfect opportunity to craft a dream-like 3500sq ft loft home. The potential is vast, allowing for a generous 4-bedroom residence with 4-5 bathrooms, extraordinary entertaining areas, well-proportioned bedrooms, ample closets & storage, and a media room. A flood of natural light enhances the ambiance, creating an inviting atmosphere.
The existing floor plan is thoughtfully provided, along with an illustrative example of a 4-bedroom layout. However, the possibilities are limitless, thanks to just 2 small columns within the entire expanse. Renderings further inspire the creative process, offering glimpses of the loft's boundless potential. Collaborate with your architect and unleash your imagination in this exclusive boutique condo building comprised of 11 full-floor units, complete with a doorman. This building's seamless conversion from commercial to residential condo grants the as-of-right privilege to build out for residential use.
Tucked away on a tranquil, charming block in the heart of Flatiron, this unparalleled offering is a must-see, providing a rare opportunity to shape a truly exceptional living space.

Amenities

  • Is New Development
  • Washer / Dryer
  • Concierge
  • Elevator
  • New Development

Neighborhood

More listings:

OLR IDX

RLS Data display by Nest Seekers LLC.

All information furnished regarding property for sale, rental or financing is from sources deemed reliable, but no warranty or representation is made as to the accuracy thereof and same is submitted subject to errors, omissions, change of price, rental or other conditions, prior sale, lease or financing or withdrawal without notice. International currency conversions where shown are estimates based on recent exchange rates and are not official asking prices.

All dimensions are approximate. For exact dimensions, you must hire your own architect or engineer.