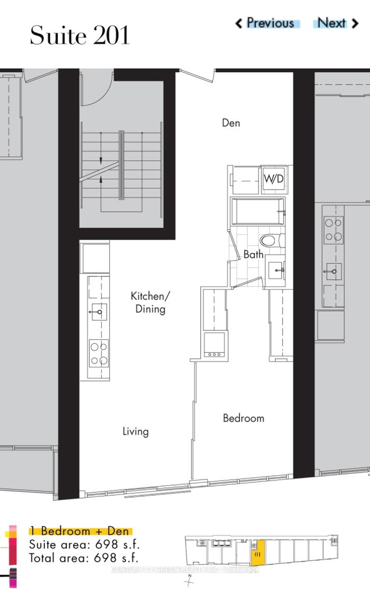
Apt: 201
Toronto C01 M5V 0J9
Canada

Property

Furnished: YES
Ownership: For Sale
Type: Unknown
Bedrooms: 2 BR
Bathrooms: 1
Pets: Pets Allowed

Financials

Price:C2,650
($1,927)
(€1,639)
505 Park Ave, New York, NY 10022

Large Move In Ready 1 BEDROOM DEN Unit !

Description

Large Move In Ready 1 BEDROOM + DEN Unit! AVAILABLE FURNISHED (as Seen in Photos) or Unfurnished. Spectra Condo At Concord City Place! Walking Distance to everything - Financial District, Waterfront, King West Entertainment district, Grocery stores, LCBO, community center etc. Access to private amenities building (full Weight and Cardio gym, yoga studio, basketball court, lap pool, hot tub, pet spa, theater, BBQ terraces (2), bike room, guest rooms for rent, etc). Next to on / off ramp to Qew & Dvp. Includes both Parking and Locker.

Amenities

  • Primary Bedroom - Main Floor

All information furnished regarding property for sale, rental or financing is from sources deemed reliable, but no warranty or representation is made as to the accuracy thereof and same is submitted subject to errors, omissions, change of price, rental or other conditions, prior sale, lease or financing or withdrawal without notice. International currency conversions where shown are estimates based on recent exchange rates and are not official asking prices.

All dimensions are approximate. For exact dimensions, you must hire your own architect or engineer.