Property
| Ownership: | For Sale |
|---|---|
| Type: | Unknown |
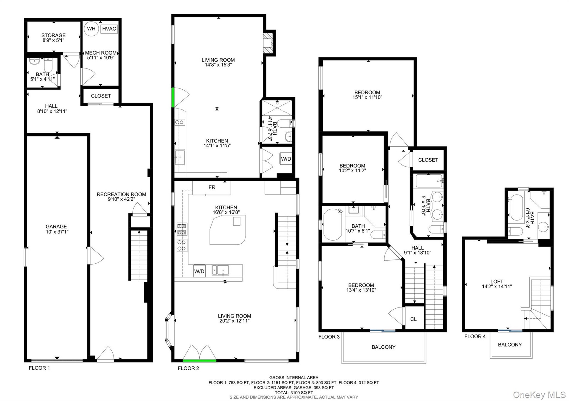
| Bedrooms: | 4 BR |
| Bathrooms: | 5 |
| Pets: | No Pets Allowed |
| Lot Size: | 0.06 Acres |
Financials
Listing Courtesy of EXP Realty
Exceptional Corner Property Solid Brick 2 Family Home in Prime Middle Village Welcome to this standout corner 2 family solid brick home in the heart of Middle Village perfect for ...
Description
Exceptional Corner Property – Solid Brick 2-Family Home in Prime Middle Village
Welcome to this standout corner 2-family solid brick home in the heart of Middle Village—perfect for multi-generational living or as a smart investment property. Step inside the sun-drenched triplex and experience a modern open floor plan designed for everyday luxury. The expansive living and dining area flows effortlessly into a chef’s dream kitchen—outfitted with top-tier Subzero refrigerator, Miele oven, dual electric/gas stoves, beverage fridge, commercial-grade exhaust, and custom cabinetry offering plenty of sleek, hidden storage with clean, minimalistic lines. The main residence boasts 4 bedrooms and 4 spa-like bathrooms, two balconies, a full walk-in basement with soaring ceilings, and an attached 2-car tandem garage. Think luxury living with all the functional bells and whistles: central air and heat, designer bathrooms with digital shower systems, double vanities, jacuzzi tubs, recessed lighting, and custom solid doors throughout.
Need more space or looking for income potential? A private side entrance leads to a fully outfitted studio suite, perfect for in-laws, a live-in Au Pair, or a high-end rental. It features its own kitchen with premium appliances, laundry, and a timeless subway tile bathroom with a digital shower system. Built with precision and pride, this home includes clay tile roofing for ultimate durability, new pavers, remote-controlled blinds, custom-made interior/exterior doors, a high-efficiency tankless water heater, and upgraded electrical and plumbing systems throughout.
Located in a sought-after Middle Village pocket—just minutes from Juniper Valley Park, local shops, restaurants, and convenient access to Manhattan and major highways. A rare corner gem offering space, style, and flexibility—ready for the next chapter.
Amenities
- Balcony
- High ceiling
- Near Public Transit
- Near School
- Near Shops
- Other

All information furnished regarding property for sale, rental or financing is from sources deemed reliable, but no warranty or representation is made as to the accuracy thereof and same is submitted subject to errors, omissions, change of price, rental or other conditions, prior sale, lease or financing or withdrawal without notice. International currency conversions where shown are estimates based on recent exchange rates and are not official asking prices.
All dimensions are approximate. For exact dimensions, you must hire your own architect or engineer.