Warwick (Town), NY 10990

Property

Ownership: For Sale
Type: Single Family
Rooms: 8
Bedrooms: 3 BR
Bathrooms:
Pets: Pets No
Lot Size: 56.80 Acres

Financials

Price:$1,370,000
Annual Taxes:$28,018.07
44 W 24th St, New York, NY 10010, USA
Phone:
Listing Courtesy of Tuxedo Hudson Realty Corp

If you ve ever driven up County Route 1, you know this iconic antique farmhouse proudly presiding over rolling green fields, a timeless landmark in Warwick.

View of front facade featuring an attached garage, a chimney, a porch, and driveway

Description

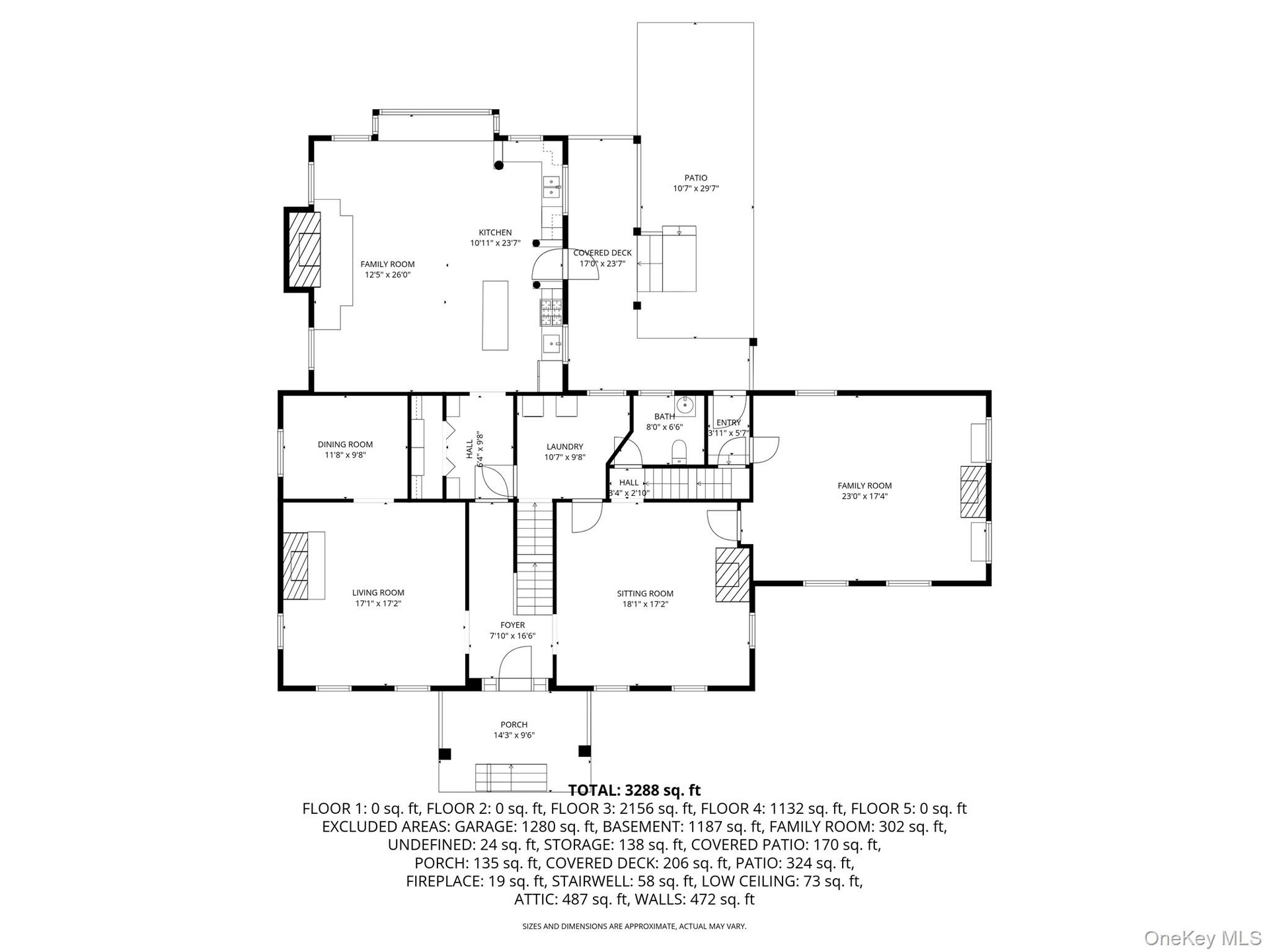
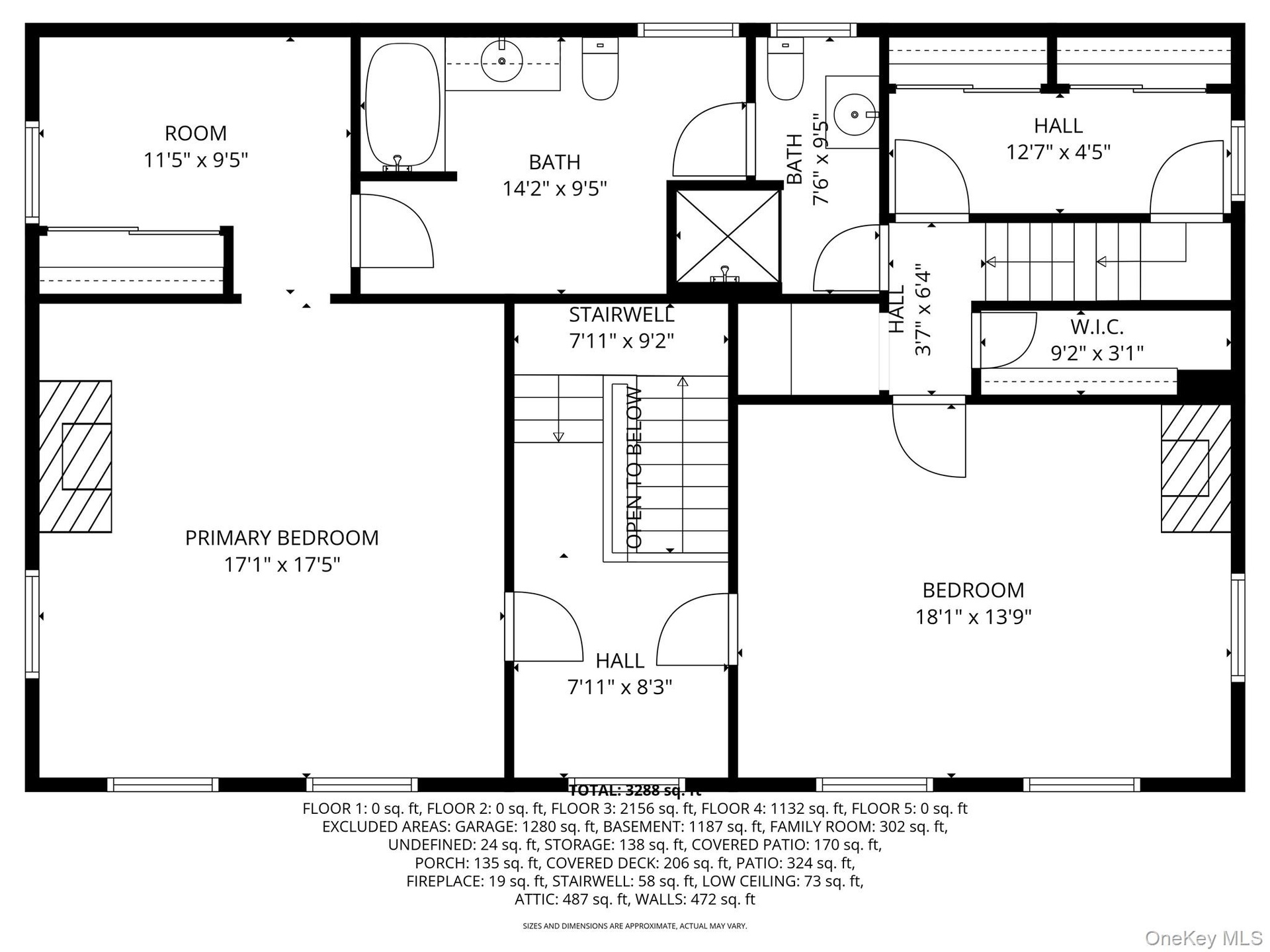
If you’ve ever driven up County Route 1, you know this iconic antique farmhouse — proudly presiding over rolling green fields, a timeless landmark in Warwick. Built circa 1880 and set on an expansive 56.8 acres, this storied property is rich with history, character, and boundless potential. Positioned to face the southwest, the home is bathed in beautiful natural light throughout the day. The spacious kitchen enjoys golden morning light — the perfect place to begin your day — while the gracious living rooms glow in dramatic afternoon light, creating a luminous and inviting atmosphere. Original architectural details anchor the home in its era: wide-plank floors, detailed plaster moldings, coffered ceilings, and elegant period millwork. The generously sized kitchen is centered around an oversized brick fireplace, offering an inspiring canvas for a showpiece chef’s kitchen. Large living rooms, a first-floor powder room and laundry, and a versatile upstairs layout with two additional bathrooms provide an excellent foundation for modern living. The walk-out lower level includes another striking brick fireplace and opens directly to the driveway, ideal for creating a cozy lounge, studio, or guest quarters. Outdoors, an in-ground pool awaits restoration — ready to become a private summer sanctuary overlooking sweeping acreage. A detached two-car garage is crowned by a charming copper cupola, adding to the property’s historic agrarian appeal. The land itself is exceptional — thoughtfully sectioned into fields, offering an ideal layout for those who wish to farm, keep animals, plant orchards, or cultivate gardens. A small pond enhances the pastoral setting and offers a serene natural focal point on the property. With over 1,900 feet of road frontage, there is also flexibility for future subdivision potential. This home is ready for someone with vision to breathe life back into it and restore its grandeur. With thoughtful renovation, this beloved Warwick landmark will once again shine among the region’s most admired properties. Located within the Warwick Valley School District and minutes from the charming historic village, as well as wineries, breweries, orchards, farm stands, and scenic outdoor recreation. A rare opportunity to revive a truly iconic Hudson Valley estate — and create a generational homestead with beauty, history, land, and light.

Amenities

  • Eat-in Kitchen
  • Electricity Connected
  • Entrance Foyer
  • Formal Dining
  • Open Kitchen
  • Original Details
  • Pantry

Long Island MLS

All information furnished regarding property for sale, rental or financing is from sources deemed reliable, but no warranty or representation is made as to the accuracy thereof and same is submitted subject to errors, omissions, change of price, rental or other conditions, prior sale, lease or financing or withdrawal without notice. International currency conversions where shown are estimates based on recent exchange rates and are not official asking prices.

All dimensions are approximate. For exact dimensions, you must hire your own architect or engineer.