Mamaroneck, NY 10538

Property

Ownership: For Sale
Type: Condo
Rooms: 5
Bedrooms: 2 BR
Bathrooms:
Pets: Pets Allowed
Lot Size: 0.13 Acres

Financials

Price:$898,000
Annual Taxes:$9,100.03
Common charges:$1,346
505 Park Ave, New York, NY 10022
Listing Courtesy of eXp Realty

Discover the potential of this spacious 2 bedroom, 2.

Entrance to the Pine Ridge Condominiums

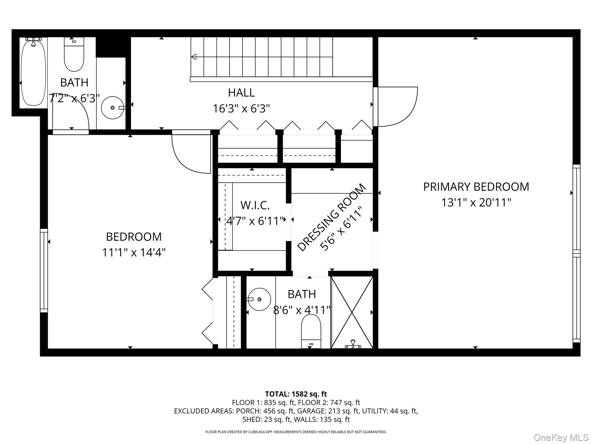
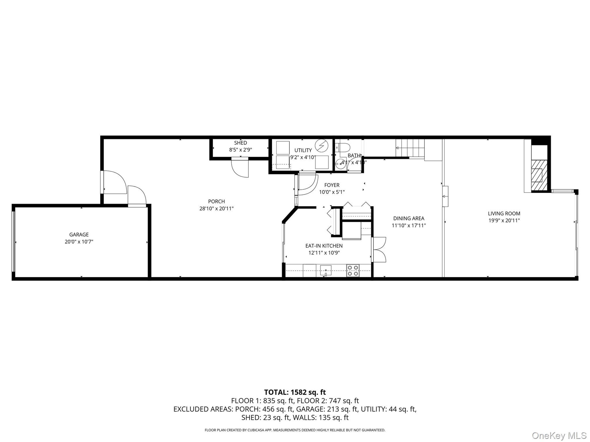
Description

Discover the potential of this spacious 2-bedroom, 2.5-bathroom condominium at 40 Pine Ridge Road in Larchmont. This rare opportunity allows you to renovate and customize your home to your own taste and lifestyle. Both bedrooms feature en suite bathrooms, providing comfort and privacy, while the detached garage and attic offer convenience and additional storage. Step outside to your private patio and enjoy a peaceful setting surrounded by beautifully landscaped grounds. The Pine Ridge Condominium community offers wonderful amenities, including a tennis court, in-ground pool, and lush garden areas with a fire pit and vegetable garden—perfect for relaxing, entertaining, or staying active right at home. Located in a highly sought-after area for commuters, this home is just 1.3 miles from the Larchmont Metro-North train station, offering an easy 40-minute ride to Grand Central Terminal. The upcoming Metro-North New Haven Line connection to Penn Station will provide even greater access and commuting flexibility in the near future. Enjoy all that Larchmont and the surrounding area have to offer—charming village shops, restaurants, and waterfront parks along the Long Island Sound, just about 1.3 miles away. Whether you’re seeking a convenient location, excellent amenities, or an opportunity to design your perfect home, this condominium presents an exciting opportunity!

Amenities

  • beamed ceilings
  • Dishwasher
  • Dryer
  • Eat-in Kitchen
  • Electric Range
  • Formal Dining
  • Garden
  • Gas Water Heater
  • Landscaping
  • Living Room
  • Maintenance Grounds
  • Natural Gas Connected
  • Neighborhood
  • Open Floorplan
  • Outdoor Space
  • Pantry
  • Parking
  • Pool
  • Pool/Spa
  • Primary Bathroom
  • Private Entrance
  • Refrigerator
  • Snow Removal
  • Storage
  • Tennis Court(s)
  • Trees/Woods
  • Walk-In Closet(s)
  • Walk Through Kitchen
  • Washer
  • Washer/Dryer Hookup

Long Island MLS

All information furnished regarding property for sale, rental or financing is from sources deemed reliable, but no warranty or representation is made as to the accuracy thereof and same is submitted subject to errors, omissions, change of price, rental or other conditions, prior sale, lease or financing or withdrawal without notice. International currency conversions where shown are estimates based on recent exchange rates and are not official asking prices.

All dimensions are approximate. For exact dimensions, you must hire your own architect or engineer.