Kent, NY 10512

Property

Ownership: For Sale
Type: Single Family
Rooms: 7
Bedrooms: 3 BR
Bathrooms:
Pets: No Pets Allowed
Lot Size: 0.18 Acres

Financials

Price:$455,000
Annual Taxes:$8,427
44 W 24th St, New York, NY 10010, USA
Phone:
Listing Courtesy of Briante Realty Group, LLC

Welcome to 20 Heathcote Road a charming 3 bedroom Cape with den office, 1.

20 Heathcote Road is a charming 3 bedroom, 1.5 Bath Cape w/BONUS Den/Office

Description

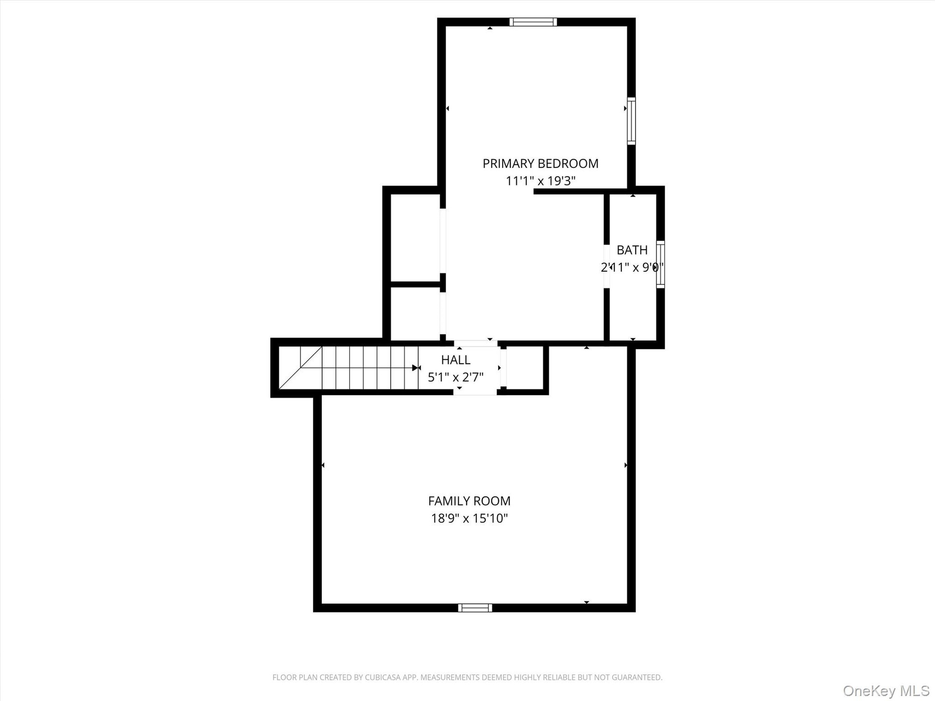
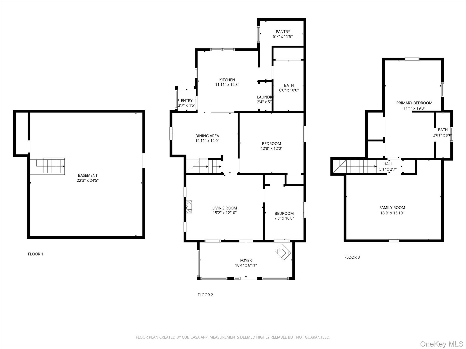
Welcome to 20 Heathcote Road – a charming 3-bedroom Cape with den/office, 1.5 baths, great curb appeal, and a prime Lake Carmel location! Enjoy the home’s overall layout, recent updates, and detached one-car garage w/workshop. Relax on your front porch overlooking the fenced yard adorned with cherry, magnolia, maple, and peach trees, along with seasonal views. The main level features a large sunroom/entryway, a cozy living room w/pellet stove (perfect for the winter months), primary bedroom, second bedroom, updated bath, kitchen, dining area, laundry area and pantry! The spacious kitchen features easy access from driveway (convenient for bringing in the groceries), new butcher block countertops, new backsplash & large walk-in pantry closet w/radiant floor heating & shelving! The renovated bath is also complete w/radiant floor heating, large closet, sandstone counter tops & sandstone shower stall. The main-level laundry area adds to the home’s overall comfort and functionality. Upstairs you will find a large bedroom w/2 closets, half bath & Bonus den/office. Brand-new flooring extends through the kitchen, pantry, dining area, sunroom, and entire second level! Some additional updates/features include newly black topped driveway, new back steps/railing, newer roof on main home/garage, ABG oil tank, boiler, electric panel, well pump, septic lid. Refrigerator & dryer approx. 2 years old (other appliances approx. 4 years old). Home has whole house water filter, generator hook-up, outside cameras w/flood lights & motion/sound detection, many windows on main level w/in 10 years. Great location - walking distance to Lake Carmel to enjoy 7 beaches, fishing, non-motorized boating, playground, basketball, swimming. Close to parks, schools, library, shopping, golf, skiing. Perfect for commuters, w/quick access to Metro-North, I-84, and convenient routes to Danbury, White Plains, and NYC.

Amenities

  • Back Yard
  • Beach Access
  • Cable Connected
  • Dishwasher
  • Dryer
  • Electricity Connected
  • First Floor Bedroom
  • First Floor Full Bath
  • Front Yard
  • Lake Privileges
  • Level
  • Lighting
  • Living Room
  • Master Downstairs
  • Near Golf Course
  • Near Public Transit
  • Near School
  • Near Shops
  • Oven
  • Pantry
  • Pellet Stove
  • Propane
  • Refrigerator
  • Security Lights
  • Stainless Steel Appliance(s)
  • Trash Collection Public
  • Washer
  • Water Access
  • Water Connected

Long Island MLS

All information furnished regarding property for sale, rental or financing is from sources deemed reliable, but no warranty or representation is made as to the accuracy thereof and same is submitted subject to errors, omissions, change of price, rental or other conditions, prior sale, lease or financing or withdrawal without notice. International currency conversions where shown are estimates based on recent exchange rates and are not official asking prices.

All dimensions are approximate. For exact dimensions, you must hire your own architect or engineer.