Warwick (Town), NY 10990

Property

Ownership: For Sale
Type: Single Family
Rooms: 12
Bedrooms: 4 BR
Bathrooms:
Pets: No Pets Allowed
Lot Size: 3.20 Acres

Financials

Price:$900,000
Annual Taxes:$16,735
44 W 24th St, New York, NY 10010, USA
Phone:
Listing Courtesy of Howard Hanna Rand Realty

Welcome to this stunning colonial home featuring 4 bedrooms and 2.

View of front of house with a porch, a front lawn, and roof with shingles

Description

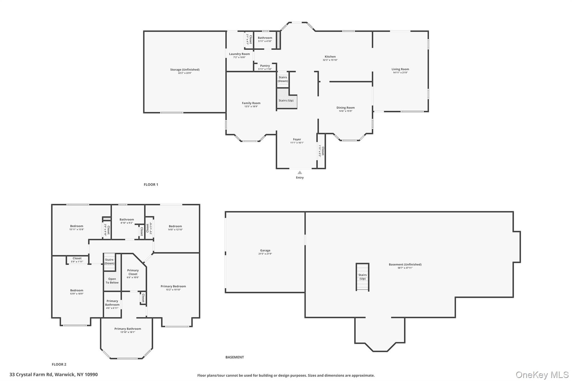
Welcome to this stunning colonial home featuring 4 bedrooms and 2.5 baths, beautifully situated on 3.2 acres of private, scenic land in one of the area's most prestigious neighborhoods, Deer Crossing. Set back from the road and embraced by mature trees and expansive green lawns, this residence provides an ideal blend of tranquility and elegance. Relax on the inviting wrap-around front porch—perfect for savoring your morning coffee and taking in breathtaking sunrise. Step inside to find spacious, sun-drenched rooms with all new hardwood flooring throughout the main floor. The foyer welcomes you with a spacious feel. A vaulted ceiling, sunken family room with wood-burning fireplace and tons of windows is the ideal spot for informal gatherings. The generously sized dining room and living room are perfect for more formal gatherings. The chef's kitchen boasts quartz countertops, a large waterfall island for food preparation, all-new stainless steel high-end appliances, and a breakfast nook area. Large windows frame the gorgeous mountain views. Whether you are cooking a family meal or entertaining guests, this space is sure to impress. The generous, open floor plan ensures easy movement throughout the space, perfect for both comfortable daily living and hosting guests. There is an unfinished bonus area on the first floor above the garage. This space can be used for an in-law/au pair suite or can be flex space with endless possibilities. The second level boasts a stunning ensuite primary bedroom with a sitting area and ample closet space. The primary bath with vaulted ceilings, free-standing tub, large shower, and trough sink is truly a retreat. There are three additional charming bedrooms and a shared hall bath. The second floor also boasts hardwood floors throughout. The expansive deck is perfect for entertaining in the warmer months while marveling at the sunsets. Its desirable location offers both tranquility and convenient access to Warwick's historic village. Enjoy everything the area has to offer, from the wineries to apple picking, horseback riding, skiing, and hiking.

Amenities

  • Balcony
  • Cable - Available
  • Cathedral Ceiling(s)
  • Ceiling Fan(s)
  • Chandelier
  • Chefs Kitchen
  • Cooktop
  • Dishwasher
  • Double Vanity
  • Dryer
  • Eat-in Kitchen
  • Electricity Connected
  • Entrance Foyer
  • Family Room
  • Formal Dining
  • High ceiling
  • Kitchen Island
  • Open Floorplan
  • Open Kitchen
  • Pantry
  • Phone Available
  • Primary Bathroom
  • Propane
  • Quartz/Quartzite Counters
  • Recessed Lighting
  • Refrigerator
  • Soaking Tub
  • Trash Collection Private
  • Tray Ceiling(s)
  • Walk-In Closet(s)
  • Washer
  • Washer/Dryer Hookup
  • Water Connected
  • Wood Burning

Long Island MLS

All information furnished regarding property for sale, rental or financing is from sources deemed reliable, but no warranty or representation is made as to the accuracy thereof and same is submitted subject to errors, omissions, change of price, rental or other conditions, prior sale, lease or financing or withdrawal without notice. International currency conversions where shown are estimates based on recent exchange rates and are not official asking prices.

All dimensions are approximate. For exact dimensions, you must hire your own architect or engineer.