Property
| Ownership: | Mixed Use |
|---|---|
| Rooms: | 8 |
| Bedrooms: | Studio |
Financials
Price:$1,399,000
Real estate tax:$6,996
Listing Courtesy of Brown Harris Stevens Brooklyn LLC
Mixed use Opportunity in Manhattan Beach !
Description
Mixed use Opportunity in Manhattan Beach!
Discover a rare chance to own a mixed-use property in the heart of Manhattan Beach.
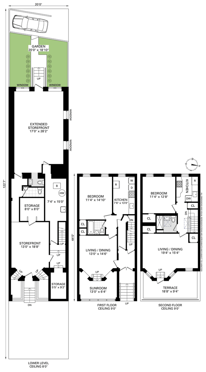
This solid brick two-family home with a vacant storefront sits on a 20 x 122 ft. lot along the highly sought-after West End Avenue.
Zoned R6 with 3,629 sq. ft. of unused FAR, this property offers incredible potential to expand up to 6,000 sq. ft. of usable space-perfect for investors, end-users, or developers looking to customize and maximize value.
The home currently features two spacious and charming one-bedroom apartments with hardwood floors, abundant natural light, and a private balcony on the second floor-positioned above a vacant commercial space ideal for your choice of business or as a rental opportunity.
Additional highlights include:
Private parking in the rear via community driveway
Private rear garden for outdoor enjoyment
Very close to the beach and boardwalk, offering a fantastic lifestyle and rental appeal
Close to Emmons Avenue's vibrant dining scene, including Randazzo's, Opera, Baku, and more. Convenient access to B and Q trains (approx. 0.36 miles away)
Discover a rare chance to own a mixed-use property in the heart of Manhattan Beach.
This solid brick two-family home with a vacant storefront sits on a 20 x 122 ft. lot along the highly sought-after West End Avenue.
Zoned R6 with 3,629 sq. ft. of unused FAR, this property offers incredible potential to expand up to 6,000 sq. ft. of usable space-perfect for investors, end-users, or developers looking to customize and maximize value.
The home currently features two spacious and charming one-bedroom apartments with hardwood floors, abundant natural light, and a private balcony on the second floor-positioned above a vacant commercial space ideal for your choice of business or as a rental opportunity.
Additional highlights include:
Private parking in the rear via community driveway
Private rear garden for outdoor enjoyment
Very close to the beach and boardwalk, offering a fantastic lifestyle and rental appeal
Close to Emmons Avenue's vibrant dining scene, including Randazzo's, Opera, Baku, and more. Convenient access to B and Q trains (approx. 0.36 miles away)
Amenities
Driveway; Garden;
- Garden
Neighborhood
More listings:

RLS Data display by Nest Seekers LLC.
All information furnished regarding property for sale, rental or financing is from sources deemed reliable, but no warranty or representation is made as to the accuracy thereof and same is submitted subject to errors, omissions, change of price, rental or other conditions, prior sale, lease or financing or withdrawal without notice. International currency conversions where shown are estimates based on recent exchange rates and are not official asking prices.
All dimensions are approximate. For exact dimensions, you must hire your own architect or engineer.