429 Decatur Street
Brooklyn, NY 11233
Cross street:Malcolm X Boulevard

Building

Type:Townhouse
Era:Post-war
Floors:3

Property

Ownership: Multi-Family
Rooms: 11
Bedrooms: Studio
Pets: Unknown

Financials

Price:$2,595,000
Real estate tax:$5,016
Listing Courtesy of Compass

Discover 429 Decatur Street a beautifully reimagined 18 foot wide two family brownstone that seamlessly blends refined modern design with the enduring elegance of its 1910 origins.

Description

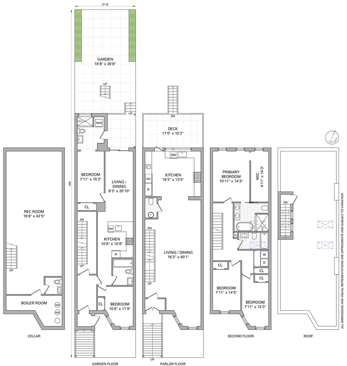
Discover 429 Decatur Street — a beautifully reimagined 18-foot-wide two-family brownstone that seamlessly blends refined modern design with the enduring elegance of its 1910 origins. Every inch of this Bedford-Stuyvesant townhouse has been thoughtfully restored to offer high-end finishes, contemporary comfort, and timeless character. This exceptional home spans approximately 3,380 square feet and features five bedrooms, four full bathrooms, two powder rooms, a spacious parlor deck, and a serene landscaped garden. The owner’s three-bedroom, two-and-a-half-bath duplex opens into a gracious foyer and leads to a sun-filled parlor level with soaring ceilings, wide-plank white oak floors, and an open, flowing layout ideal for modern living. The living and dining areas are anchored by a stunning chef’s kitchen outfitted with custom cabinetry, marble countertops, a Fisher & Paykel integrated refrigerator, a six-burner Wolf range, an integrated dishwasher, and a microwave drawer. Massive windows overlook the rear deck and lush backyard, creating a perfect indoor-outdoor connection. Upstairs, the primary suite overlooks the garden and includes a custom-fitted walk-in closet and a luxurious en-suite bathroom with marble finishes, skylight, a double vanity, and a spa-like glass shower and separate deep soaking tub. Two additional bedrooms share a full skylit bathroom with a bathtub, while a vented washer/dryer adds everyday convenience on this floor. The finished cellar, accessible from the owner’s unit, offers flexible space for a recreation room, studio, or home office, complete with a powder room. The garden-level two-bedroom, two-bath rental apartment with outdoor access provides excellent versatility as a guest suite or income-producing residence, complete with its own washer/dryer and extended layout. Situated on a picturesque tree-lined block in the heart of Bedford-Stuyvesant, 429 Decatur Street offers easy access to the best of the neighborhood. Enjoy nearby favorites such as Trad Room, Chez Oskar, Early Yves, Badaboom, and Laziza, or grab a coffee and pastry at Doc's Cake Shop. Convenient transportation via the A/C and J/M subway lines ensures quick access to Manhattan and beyond, while JFK Airport is just a short drive away. 429 Decatur Street is a perfect fusion of historic Brooklyn architecture and elevated modern living — an elegant, move-in-ready townhouse ready to call home.

Amenities

Garden;
  • Air Conditioning
  • Garden

Neighborhood

More listings:

OLR IDX

RLS Data display by Nest Seekers LLC.

All information furnished regarding property for sale, rental or financing is from sources deemed reliable, but no warranty or representation is made as to the accuracy thereof and same is submitted subject to errors, omissions, change of price, rental or other conditions, prior sale, lease or financing or withdrawal without notice. International currency conversions where shown are estimates based on recent exchange rates and are not official asking prices.

All dimensions are approximate. For exact dimensions, you must hire your own architect or engineer.