728 Westminster Road Apt: TWNHS
Brooklyn, NY 11230
Cross street:Park Avenue

Building

Type:House
Era:Post-war
Floors:3

Property

Ownership: Multi-Family
Rooms: 12
Bedrooms: 5 BR
Bathrooms:
Pets: No Pets Allowed

Financials

Price:$2,350,000
Real estate tax:$1,029
578 Driggs Avenue Brooklyn, NY 11211
Listing Courtesy of Compass

Originally constructed in 1905 on a picturesque, tree lined block in Ditmas Park, 728 Westminster Rd has been meticulously renovated to seamlessly blend historic charm with modern luxury.

Description

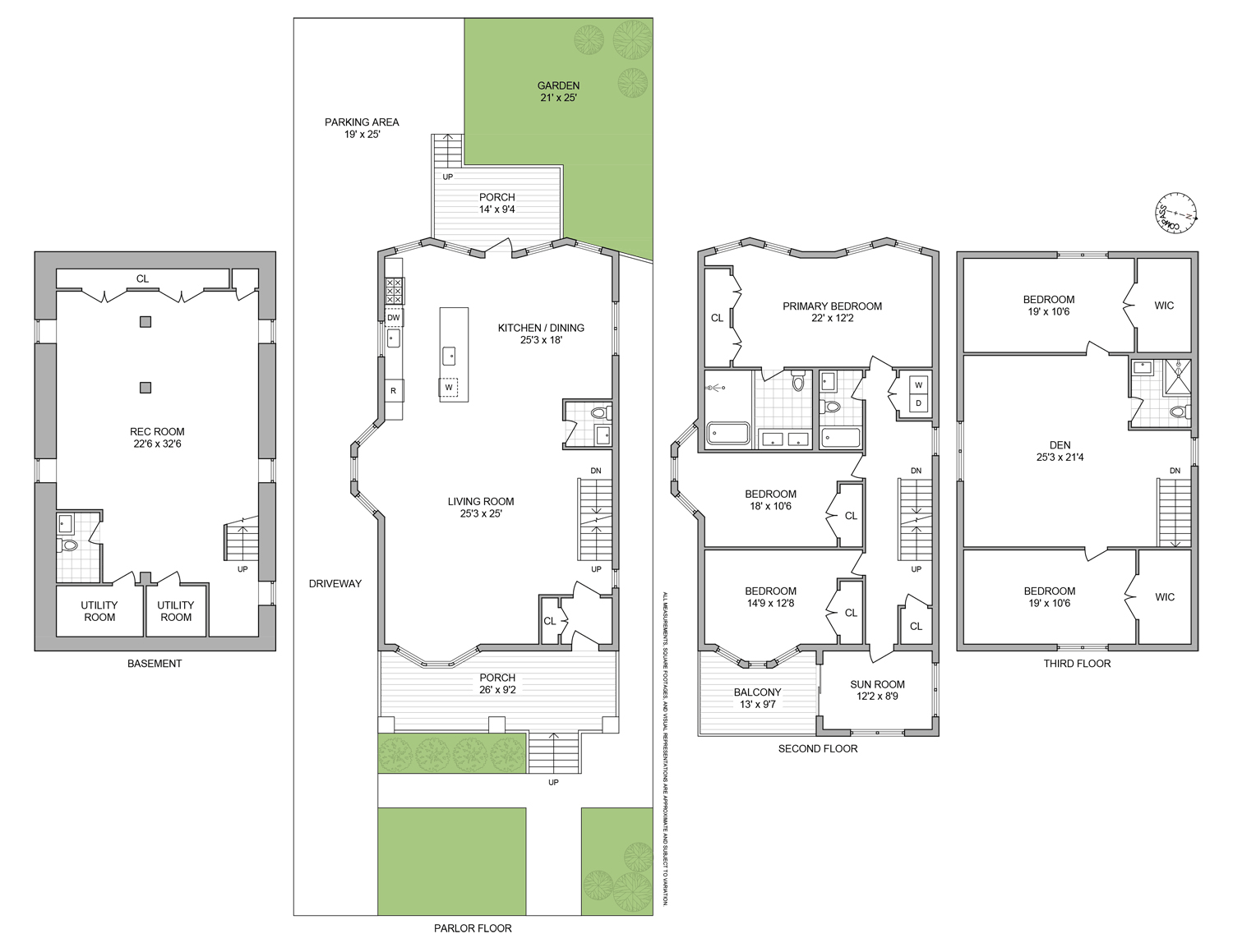
Originally constructed in 1905 on a picturesque, tree-lined block in Ditmas Park, 728 Westminster Rd has been meticulously renovated to seamlessly blend historic charm with modern luxury. This distinguished, detached single-family home features 5 bedrooms, 3 full bathrooms, and 2 powder rooms, all complemented by high-end finishes, original details, and state-of-the-art technology. As you arrive, a charming front deck warmly welcomes you into the expansive 1150sf parlor floor, designed to accommodate a grand living room and a central dining area with ease. At the rear, a gourmet kitchen awaits, featuring an island, custom cabinetry, and elegant quartz countertops, along with dual sinks for added convenience. This culinary haven is outfitted with top-of-the-line Thermador stainless steel appliances, including a six-burner stove with a pot filler, a French door refrigerator, a dishwasher, and a wine refrigerator. French doors extend from the kitchen to an outdoor deck, offering serene views of the garden and the newly paved parking area, perfect for entertaining or relaxation. The second floor unveils three generously sized bedrooms, including an impressive primary suite that comfortably accommodates a king-sized bed. This suite is enhanced by floor-to-ceiling closets and a lavish ensuite bath, featuring radiant floor heating, exquisite marble tile, a double vanity, a spacious glass-enclosed shower, and a freestanding soaking tub for ultimate relaxation. Towards the front of this floor, you will find two more queen-sized bedrooms, each offering ample space and comfort. Additionally, this floor offers a charming second full bathroom with radiant floor heating and a shower/tub combination. Completing this level is a stunning sunroom, office, or flex space that opens to a balcony, providing picturesque views of the tree-lined street below. The expansive third floor offers a versatile, sun-drenched second living room, bordered by two generously sized bedrooms. Each bedroom is equipped with large closets, offering ample storage space. This floor also includes a beautifully appointed full bathroom, featuring radiant floor heating and a sleek glass-enclosed shower. Downstairs, the spacious finished basement has tiled floors, several windows for natural light, ample closet space, and another half bathroom, and is ideal for a playroom, recreational room, or media den. Nestled on a classic, tree-lined street in Ditmas Park/Midwood, this masterfully reimagined townhouse is surrounded by local dining hotspots, Prospect Park, and Brooklyn College. Residents are just moments away from acclaimed dining establishments such as Milk & Honey Cafe, Lo Duca Pizza, The Castello Plan, and Di Fara. Convenient access to public transportation includes the B/Q trains and B68/B8 buses.

Amenities

Driveway; Garden; Laundry Room;
  • Balcony
  • Washer / Dryer
  • Air Conditioning
  • Garden
  • Laundry Room
  • Walk-up

Neighborhood

More listings:

OLR IDX

RLS Data display by Nest Seekers LLC.

All information furnished regarding property for sale, rental or financing is from sources deemed reliable, but no warranty or representation is made as to the accuracy thereof and same is submitted subject to errors, omissions, change of price, rental or other conditions, prior sale, lease or financing or withdrawal without notice. International currency conversions where shown are estimates based on recent exchange rates and are not official asking prices.

All dimensions are approximate. For exact dimensions, you must hire your own architect or engineer.