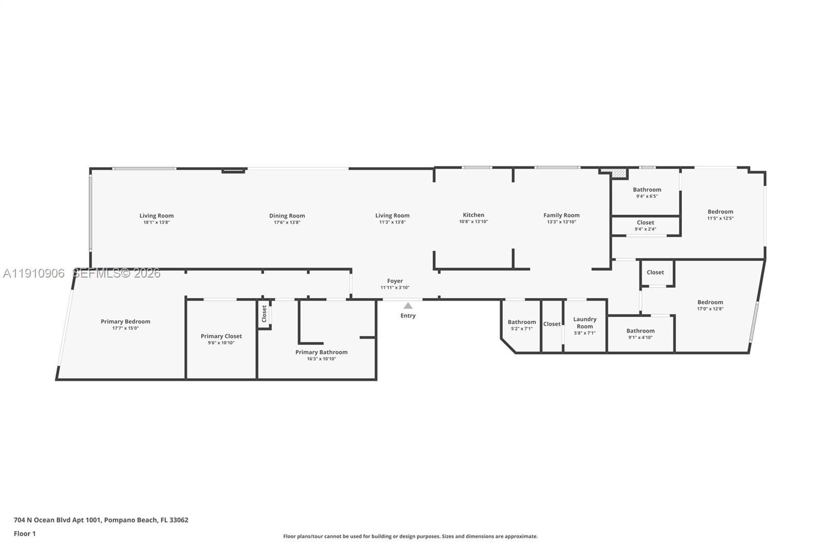
| Ownership: | For Sale |
|---|---|
| Type: | Condo |
| Bedrooms: | 3 BR |
| Bathrooms: | 4½ |
| Pets: | Pets Allowed |

All information furnished regarding property for sale, rental or financing is from sources deemed reliable, but no warranty or representation is made as to the accuracy thereof and same is submitted subject to errors, omissions, change of price, rental or other conditions, prior sale, lease or financing or withdrawal without notice. International currency conversions where shown are estimates based on recent exchange rates and are not official asking prices.
All dimensions are approximate. For exact dimensions, you must hire your own architect or engineer.