New York, NY 11414

Property

Ownership: For Sale
Type: Single Family
Rooms: 8
Bedrooms: 3 BR
Bathrooms:
Pets: No Pets Allowed

Financials

Price:$875,000
Annual Taxes:$9,492.37
24-20 Jackson Ave Floor 3 Long Island City, NY 11101, USA
Listing Courtesy of Century 21 Amiable Rlty Grp II

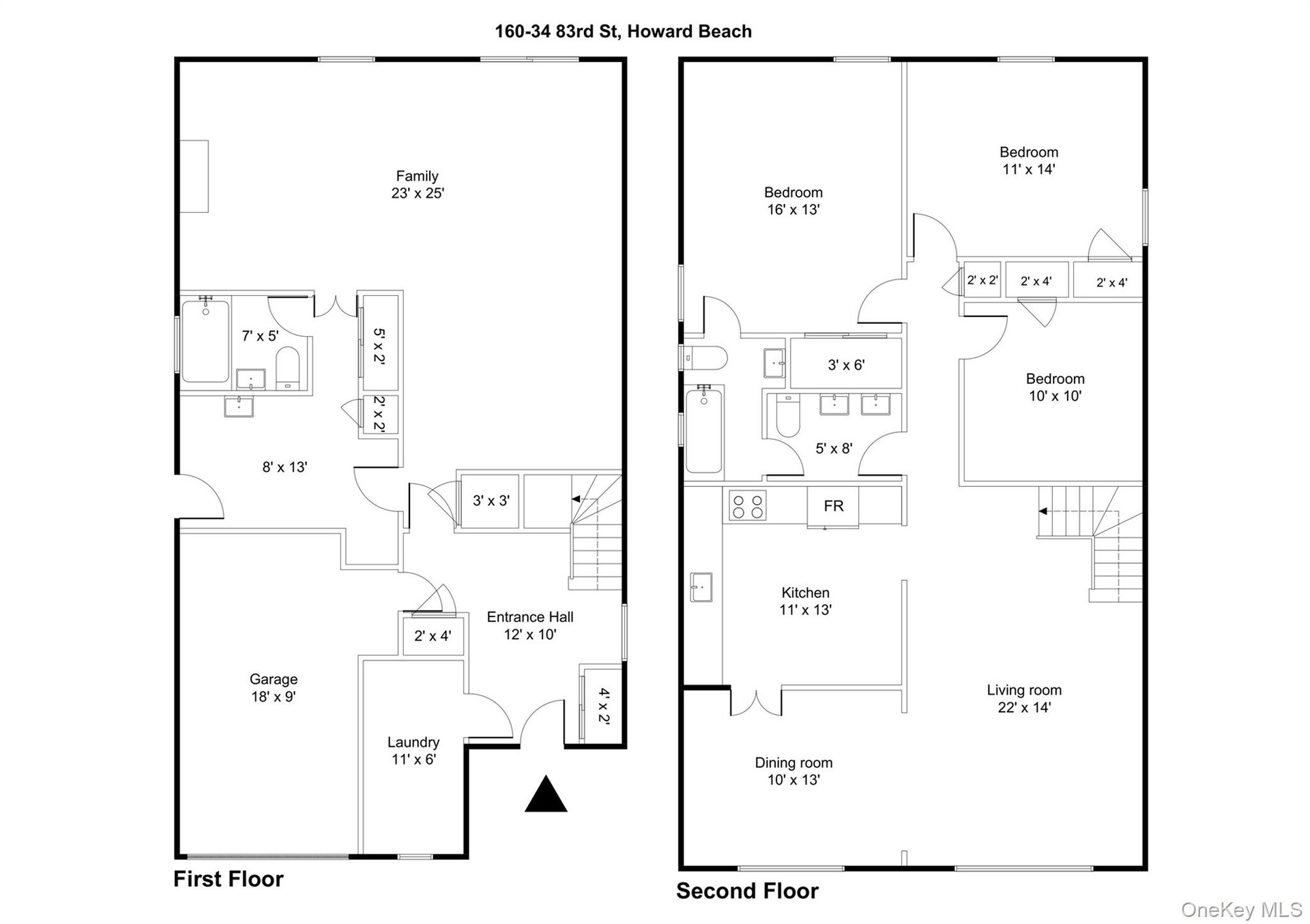
Welcome to this spacious Hi Ranch located in the New Howard Beach section on a 40x100 lot, offering just under 2, 500 square feet of living space.

View of front facade featuring brick siding and a garage

Description

Welcome to this spacious Hi-Ranch located in the New Howard Beach section on a 40x100 lot, offering just under 2,500 square feet of living space. Being sold "as-is". This home presents an excellent opportunity for someone looking to update and personalize. The main level features a formal living room, dining room, and a large eat-in kitchen with great potential to be opened for a more open and airy layout, along with three bedrooms including a generously sized primary bedroom (approx. 16' x 13'). The main bathroom is currently set up in a shared configuration connecting both the hallway and the primary bedroom, featuring two separate toilet areas that share one tub/shower, providing the option to reconfigure into a private en-suite and a separate hall bath if desired. The lower level offers flexible living space with a large L-shaped family room, full bath, and a work/prep area, with access from the front entry as well as a side entrance and rear sliding doors to the backyard. The fireplace on this level is decorative only, as the chimney was previously removed. Additional features include a one-car attached garage, large backyard, forced air heat and central air conditioning, new heater (2021), new roof (March 2025), gutters replaced in 2023, and a new sliding door to the yard (2024). This home offers space and potential to create a layout and style that suits your needs.

Amenities

  • Back Yard
  • Eat-in Kitchen
  • Electricity Available
  • Electricity Connected
  • Front Yard
  • Natural Gas Available
  • Natural Gas Connected
  • Near Public Transit
  • Near School
  • Near Shops
  • Range
  • Refrigerator
  • Sewer Connected
  • Smoke Detectors
  • Trash Collection Public
  • Water Available
  • Water Connected

Long Island MLS

All information furnished regarding property for sale, rental or financing is from sources deemed reliable, but no warranty or representation is made as to the accuracy thereof and same is submitted subject to errors, omissions, change of price, rental or other conditions, prior sale, lease or financing or withdrawal without notice. International currency conversions where shown are estimates based on recent exchange rates and are not official asking prices.

All dimensions are approximate. For exact dimensions, you must hire your own architect or engineer.