Oyster Bay, NY 11758

Property

Ownership: For Sale
Type: Single Family
Rooms: 8
Bedrooms: 4 BR
Bathrooms: 3
Pets: No Pets Allowed
Lot Size: 0.55 Acres

Financials

Price:$2,050,000
Annual Taxes:$19,554.98
6243 Northern Blvd
Phone:
Listing Courtesy of Signature Premier Properties

Biltmore Shores Waterfront New Construction Opportunity Being Sold As Is Partially Completed Discover a rare and expansive.

Aerial view of residential area with a nearby body of water

Description

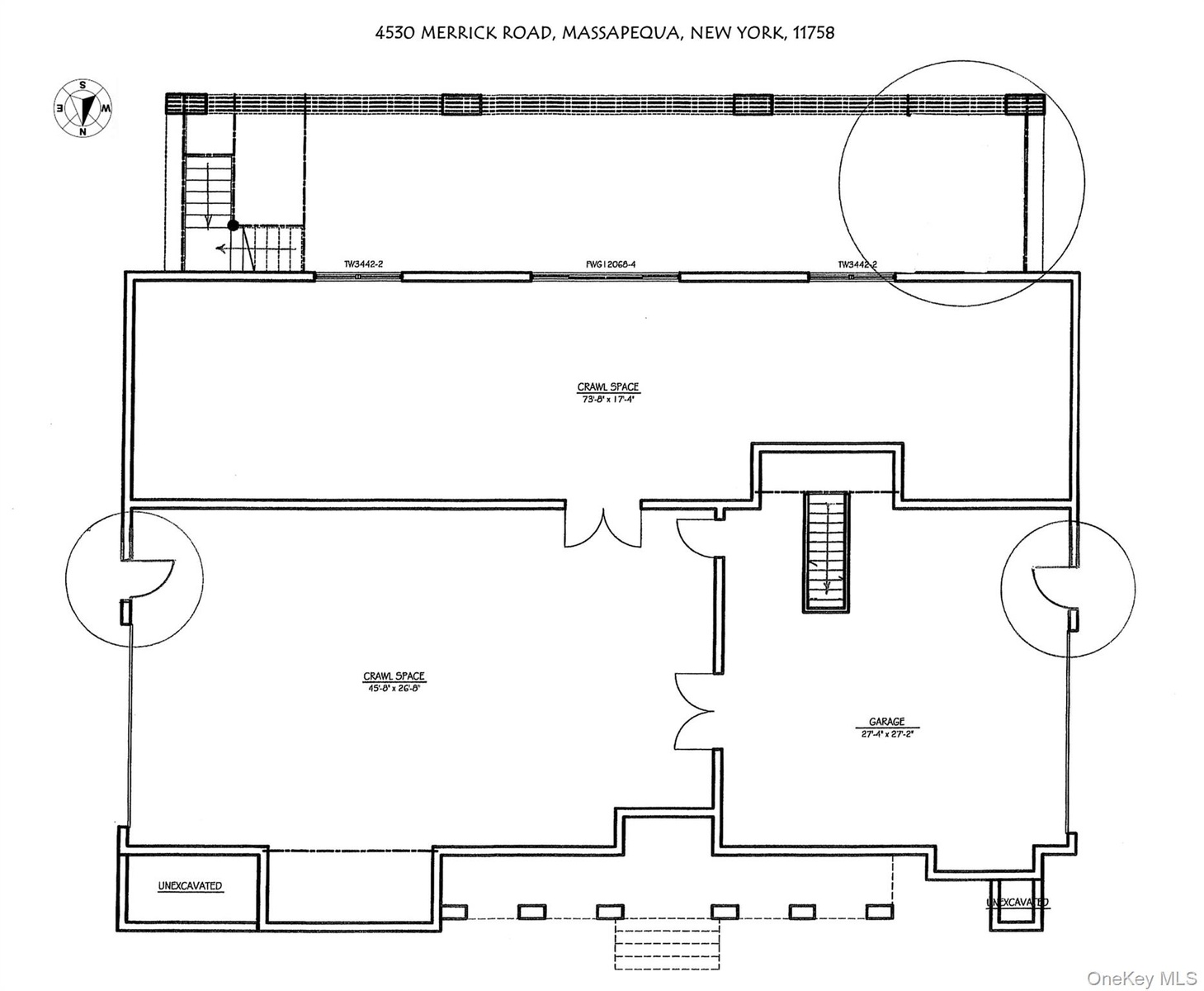
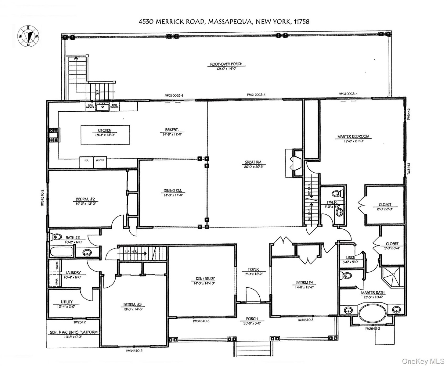
Biltmore Shores | Waterfront New Construction Opportunity | Being Sold As-Is / Partially Completed Discover a rare and expansive .55 acre waterfront offering in the desirable Biltmore Shores community. Located at 4530 Merrick Rd on the Grand Lagoon, this Sprawling Ranch boasts approximately 3500SF is custom-designed, with a 14.1’ elevation and FEMA Compliant. It presents a unique opportunity for a buyer to complete construction to their own specifications. The current build features a town approved, planned layout including: 9-foot ceiling height, hi-hats, 200-amp electric service, four bedrooms, three full bathrooms, an 18'x14' eat-in kitchen open to a 15'x12' breakfast room with 12' sliders to a 72'x14' covered rear deck, a 20'x27' great room, 14'x14' dining room, and a 14'x14' den/study. The primary suite layout provides for an 17’8”x21' bedroom with a 14'x10' luxury bath, three walk-in closets, with private deck access to maximize waterfront views. The existing three bedrooms offer six foot closet space and are 16’x12’, 13’8”x14’8”, and 14’x12’2” in size. See attached floor plan and other attachments. The full second level—approximately 1600sf offers significant future expansion potential, suitable for recreation, studio, office, or multigenerational living space. The lower level at approximately 3500SF includes a 2-car garage with an extended crawl-space workshop designed for 6-8+ additional vehicles, potentially indoor-outdoor dining area with an additional 72x14 covered patio all leading out to the 140' bulkhead and a 26'x54' boathouse that brings the total bulkhead to 238’. All over-looking Massapequa Lake and the Grand Lagoon. The lagoon features approximately 20' depth at center with direct boating access to the Grand Canal and the Great South Bay, placing Fire Island and Robert Moses just minutes away by water. IMPORTANT: This property is being sold in as-is, partially constructed condition. The Buyer is responsible for all costs to complete construction. Plans, permits, surveys, and existing materials on-site will be included in the sale where applicable. Live the sought-after Biltmore lifestyle, with membership eligibility to the private Biltmore Beach Club (pool, marina, courts, seasonal events), proximity to the Massapequa Preserve, Massapequa School District, Local dining favorites, and Easy commuter access to NYC and the Hamptons. A truly rare and customizable waterfront estate opportunity!

Amenities

  • Back Yard
  • Bulkhead
  • Canal Access
  • Canal Front
  • Cleared
  • Double Pane Windows
  • Electricity Available
  • Electricity Connected
  • ENERGY STAR Qualified Windows
  • Entrance Foyer
  • First Floor Bedroom
  • First Floor Full Bath
  • Front Yard
  • High ceiling
  • Level
  • Lighting
  • Near Golf Course
  • Near Public Transit
  • Near School
  • Near Shops
  • New Windows
  • Open Floorplan
  • Panoramic
  • Primary Bathroom
  • Recessed Lighting
  • Security Lights
  • Storage
  • Storm Doors
  • Walk-In Closet(s)
  • Washer/Dryer Hookup
  • Water
  • Water Access
  • Waterfront Property

Long Island MLS

All information furnished regarding property for sale, rental or financing is from sources deemed reliable, but no warranty or representation is made as to the accuracy thereof and same is submitted subject to errors, omissions, change of price, rental or other conditions, prior sale, lease or financing or withdrawal without notice. International currency conversions where shown are estimates based on recent exchange rates and are not official asking prices.

All dimensions are approximate. For exact dimensions, you must hire your own architect or engineer.