New York, NY 11385

Property

Ownership: For Sale
Type: Duplex
Bedrooms: 7 BR
Bathrooms: 2
Pets: No Pets Allowed
Lot Size: 0.04 Acres

Financials

Price:$1,500,000
Annual Taxes:$5,180.96
47-44 Vernon Blvd, Long Island City, NY 11101
Listing Courtesy of BLT Minimax Realty Inc

Two Family Home in Prime Ridgewood Location Discover this solid two family home ideally located on the border of Ridgewood and Bushwick, where Queens and Brooklyn meet for the best ...

Description

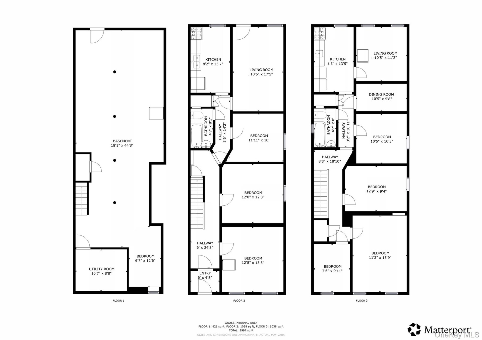
Two-Family Home in Prime Ridgewood Location Discover this solid two-family home ideally located on the border of Ridgewood and Bushwick, where Queens and Brooklyn meet for the best of both worlds. Built in 1930, this property offers classic charm with great investment potential. 1st Floor features a spacious 3-bedroom, 1-bath apartment and 2nd Floor Features 4-bedroom 1-Bath, providing comfortable layouts ideal for end-users or investors seeking strong rental income. The property sits on a 24 x 78 ft lot, with a total of 3,024 sq ft including the basement. There is plenty of room to reimagine or expand under its M1-4D zoning. Steps from the Halsey Street L train, you’ll enjoy an easy, 15-minute commute into Manhattan and quick access to Bushwick’s trendsetting coffee shops, restaurants, and art scene, along with Ridgewood’s charming streets and neighborhood feel. This is an excellent opportunity for buyers looking to invest, live, or develop in one of NYC’s most vibrant, fast-growing areas. Property Highlights: Two-family home (built 1930) Basement: Potential to Create Another Unit 1st Floor: 3 Bedroom 1 Bath Apartment 2nd Floor: 4 Bedroom 1 Bath Apartment Lot size: 24 x 78 ft Total Sq ft: 3,024 (includes basement) Zoning: M1-4D Taxes: $5,490.64 Steps from Halsey L train Quick 15-min commute to Manhattan Border of Ridgewood & Bushwick Perfect for investors or end-users: A must-see location combining convenience, character, and opportunity.

Amenities

  • Cable - Available
  • Electricity Connected
  • First Floor Bedroom
  • First Floor Full Bath
  • Natural Gas Connected
  • Sewer Connected
  • Trash Collection Public
  • Water Connected

Long Island MLS

All information furnished regarding property for sale, rental or financing is from sources deemed reliable, but no warranty or representation is made as to the accuracy thereof and same is submitted subject to errors, omissions, change of price, rental or other conditions, prior sale, lease or financing or withdrawal without notice. International currency conversions where shown are estimates based on recent exchange rates and are not official asking prices.

All dimensions are approximate. For exact dimensions, you must hire your own architect or engineer.