Property
| Ownership: | Condo |
|---|---|
| Rooms: | 3 |
| Bedrooms: | Studio |
| Bathrooms: | 1 |
| Pets: | Pets Allowed |
Open Houses
Contact for details !
Financials
Price:$555,000
Common charges:$450
Real estate tax:$754.83
Financing Allowed:90%
Minimum down:$55,500
Listing Courtesy of Compass
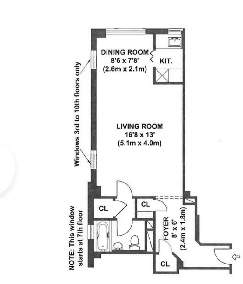
The corner unit is very private and has many windows throughout, including in the kitchen and bathroom.
Description
The corner unit is very private and has many windows throughout, including in the kitchen and bathroom.
Renovated with new hardwood floors, chandelier, and new kitchen appliances.
Great for investment. The tenant pays $3,600 per month until March 2026. The sale includes furniture.
The building has a rooftop deck with a nice river view and a clean laundry room.
Excellent location near the UN, shopping, restaurants, supermarkets, Grand Central subway, buses, and ferry.
Amenities
Garage; Laundry Room; Roof Deck;
- Elevator
- Full time doorman
- Garage
- Laundry Room
- Roof Deck
Neighborhood
More listings:

RLS Data display by Nest Seekers LLC.
All information furnished regarding property for sale, rental or financing is from sources deemed reliable, but no warranty or representation is made as to the accuracy thereof and same is submitted subject to errors, omissions, change of price, rental or other conditions, prior sale, lease or financing or withdrawal without notice. International currency conversions where shown are estimates based on recent exchange rates and are not official asking prices.
All dimensions are approximate. For exact dimensions, you must hire your own architect or engineer.