33 West 95th Street
New York, NY 10025
Cross street:Central Park West

Building

Type:Townhouse
Era:Post-war
Floors:4

Property

Ownership: Single Family
Rooms: 9
Bedrooms: Studio
Pets: Unknown

Financials

Price:$6,500,000
Real estate tax:$28,884
505 Park Ave, New York, NY 10022
Listing Courtesy of Sotheby's International Realty, Inc.

Welcome to 33 West 95th Street, a stunning pre war architectural brownstone nestled on one of the Upper West Side's finest tree lined blocks.

Description

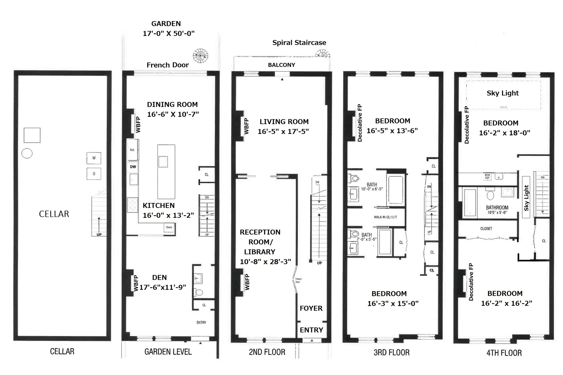
Welcome to 33 West 95th Street, a stunning pre-war architectural brownstone nestled on one of the Upper West Side's finest tree-lined blocks. Perfectly positioned between the bustling energy of Columbus Avenue and the tranquility of Central Park West, this location offers the very best of Manhattan living right at your doorstep. An Elegant and Thoughtfully Designed Interior This stylish classical home offers an incredible scale and layout designed for both grand entertaining and comfortable family life. Spanning multiple levels, the residence features a gracious entry that leads to the main living spaces. The home provides four generous bedrooms, plus a versatile den that can easily serve as a family room or home office. You'll find three full, beautifully maintained bathrooms and a convenient powder room on the garden level. The hallmark of a classical home is preserved here in charming details like the multiple wood-burning fireplaces, each mantle coming from a different classic 5th avenue mansion. They create the perfect warm, inviting atmosphere on a cool evening. The heart of the home, the expansive kitchen, is a chef's dream, beautifully appointed with all the modern conveniences you'd expect in a luxury townhouse. Culinary enthusiasts will appreciate the premium appliances, including a Sub-Zero refrigerator, dual warming drawers, and two professional-grade Viking ovens, making it perfect for hosting large gatherings or preparing everyday meals with ease. The bedroom levels are thoughtfully divided for privacy and comfort. The third floor features two magnificent bedroom suites, offering private retreats, each with ample closet space and luxurious en-suite bathroom access. Moving up to the fourth floor, you will find two additional spacious bedrooms and another bathroom. Throughout the home, you'll benefit from the modern convenience of a central AC system, ensuring year-round comfort. And for peace of mind, the property has also been updated with a new, state-of-the-art security and intercom system. Adding to the tremendous space is a vast finished basement, offering invaluable flexible space that could be transformed into a media room, a private gym, or a dedicated play area. A Private Oasis in the City One of the most coveted features is the newly re-landscaped private 50-foot-long garden, a true escape from the city hustle. This meticulously maintained space, featuring mature trees and plantings, is perfect for everything from elegant summer dinner parties to quiet morning coffee. This verdant retreat dramatically enhances the quality of life, offering a peaceful backdrop right outside your window. Unbeatable Upper West Side Lifestyle The convenience of 33 West 95th Street cannot be overstated. You are moments away from the neighborhood's premier shopping and dining destinations. Forget long grocery trips—you have immediate access to both Whole Foods and Trader Joe's, making daily errands effortless. Commuting too is a breeze. The B, C, 1, 2, and 3 subway lines, along with the crosstown bus, are all within a couple of blocks. This exceptional blend of pre-war grandeur, modern amenities, private outdoor space, and a world-class location makes this townhouse a truly rare and special offering.

Amenities

Alarm System; Garden; Laundry Room;
  • Balcony
  • Terrace
  • Air Conditioning
  • Garden
  • Laundry Room
  • Video Intercom

Neighborhood

More listings:

OLR IDX

RLS Data display by Nest Seekers LLC.

All information furnished regarding property for sale, rental or financing is from sources deemed reliable, but no warranty or representation is made as to the accuracy thereof and same is submitted subject to errors, omissions, change of price, rental or other conditions, prior sale, lease or financing or withdrawal without notice. International currency conversions where shown are estimates based on recent exchange rates and are not official asking prices.

All dimensions are approximate. For exact dimensions, you must hire your own architect or engineer.