659 Evergreen Avenue
Brooklyn, NY 11207
Cross street:Covert Street

Building

Type:Townhouse
Era:Pre-war
Floors:2

Property

Ownership: Multi-Family
Rooms: 13
Bedrooms: Studio
Pets: Unknown

Financials

Price:$1,650,000
Real estate tax:$7,488
578 Driggs Avenue Brooklyn, NY 11211
Listing Courtesy of Compass

Welcome to 659 Evergreen Avenue, a two family townhouse with private parking, right in the heart of Bushwick.

Description

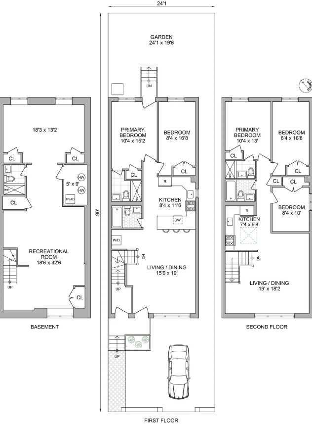
Welcome to 659 Evergreen Avenue, a two-family townhouse with private parking, right in the heart of Bushwick. This home offers 5 bedrooms, 5 full bathrooms, a large backyard patio, and plenty of space to spread out and enjoy. From the white oak floors to the stainless steel appliances and freshly tiled bathrooms, every detail was designed with care and style. Step inside the owner’s duplex, which features two bedrooms, three bathrooms, and a finished basement. The open living and dining area is bright and airy, with two large windows bringing in southern light. The windowed kitchen stands out with its dark blue cabinetry, marble tile backsplash, and full suite of stainless steel appliances — including a 36" French door fridge, 30" stove, dishwasher, and microwave. Across the hall, you’ll find a full bathroom and a laundry alcove with washer/dryer hookups. Down the hall are two roomy bedrooms with great closet space. The primary bedroom includes its own ensuite bathroom with a standing shower and direct access to the backyard patio, perfect for relaxing or entertaining. From the living room, stairs lead down to a finished basement with another full bathroom and space that can easily be used as a guest room, home office, or recreation area. The second apartment has its own private entrance and is perfect as a rental unit. It features a spacious living/dining area, a modern kitchen with stainless steel appliances, three bedrooms, and two full bathrooms, including one ensuite. This apartment can bring in around $4000 per month in rent — a great way to offset your mortgage or generate steady income. You’ll love the location — close to Bushwick’s lively cafes, bars, and restaurants like Little Skips East, The Evergreen, Father Knows Best, Money Cat, and General Irving. Getting around is easy with the L train at Wilson Avenue and the J/Z trains at Halsey Street just a few blocks away. With plenty of living space, solid rental income potential, and a prime Bushwick location, 659 Evergreen Avenue is a home that checks all the boxes — comfort, convenience, and character.

Amenities

Driveway; Garden;
  • Patio
  • Air Conditioning
  • Garden

Neighborhood

More listings:

OLR IDX

RLS Data display by Nest Seekers LLC.

All information furnished regarding property for sale, rental or financing is from sources deemed reliable, but no warranty or representation is made as to the accuracy thereof and same is submitted subject to errors, omissions, change of price, rental or other conditions, prior sale, lease or financing or withdrawal without notice. International currency conversions where shown are estimates based on recent exchange rates and are not official asking prices.

All dimensions are approximate. For exact dimensions, you must hire your own architect or engineer.