Property
| Ownership: | Condo |
|---|---|
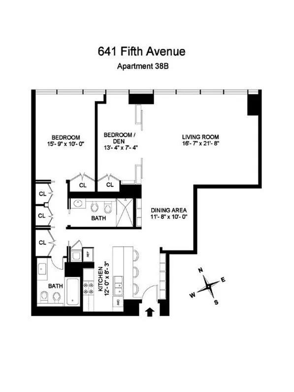
| Rooms: | 5 |
| Bedrooms: | 2 BR |
| Bathrooms: | 2 |
| Pets: | No Cats Allowed |
Open Houses
Financials
Spectacular Central Park and cityscape views define this meticulously renovated 2 bedroom, 2 bathroom residence on the 38th floor of Fifth Avenue's iconic Olympic Tower.
Description
Spectacular Central Park and cityscape views define this meticulously renovated 2-bedroom, 2-bathroom residence on the 38th floor of Fifth Avenue's iconic Olympic Tower.
Perched at the corner of Fifth Avenue and 51st Street, this exceptional home offers sweeping vistas of Central Park and the Manhattan skyline. The residence has been transformed through a complete renovation featuring bespoke Italian craftsmanship and the finest European finishes throughout.
Custom Zebrano wood flooring flows seamlessly across the living spaces, while the kitchen showcases Valcucine Artematica Vitrum cabinetry paired with top-tier appliances: Sub-Zero refrigerator, Miele microwave and oven, Smeg cooktop, and Bosch washer/dryer. Custom Rimadesio sliding glass partitions elegantly enclose the flexible second bedroom or den, framing dual built-in library walls that add both functionality and architectural interest.
The primary suite features an en-suite bathroom finished in Crema Marfil marble and custom Poliform built-in wardrobes, offering sophisticated storage and refined luxury.
Olympic Tower stands as one of Manhattan's most prestigious full-service residences. Developed by Aristotle Onassis and designed by the legendary firm Skidmore, Owings & Merrill, the 51-story tower features commercial space on its lower 21 floors, with white-glove residential service above. Building amenities include 24-hour concierge, white-gloved attendants, and unrivaled security.
Positioned directly north of Saint Patrick's Cathedral and nearby Rockefeller Center, residents enjoy unparalleled access to Manhattan's finest shopping along Fifth Avenue, world-class dining, and the city's most celebrated cultural institutions. This is an exceptional pied-à-terre for the discerning buyer seeking the pinnacle of Fifth Avenue living.
Current assessment: $161.03/month through June 2027
Amenities
- Washer / Dryer
- Attended Elevator
- Basement
- Elevator
- Fitness Facility
- Full service
- Laundry Room
Neighborhood

RLS Data display by Nest Seekers LLC.
All information furnished regarding property for sale, rental or financing is from sources deemed reliable, but no warranty or representation is made as to the accuracy thereof and same is submitted subject to errors, omissions, change of price, rental or other conditions, prior sale, lease or financing or withdrawal without notice. International currency conversions where shown are estimates based on recent exchange rates and are not official asking prices.
All dimensions are approximate. For exact dimensions, you must hire your own architect or engineer.