Property
| Ownership: | Condo |
|---|---|
| Rooms: | 8 |
| Bedrooms: | 4 BR |
| Bathrooms: | 4½ |
| Pets: | Pets Allowed |
Financials
Price:$44,950,000
Common charges:$13,919
Real estate tax:$16,851
Financing Allowed:90%
Minimum down:$4,495,000
Listing Courtesy of CORE Group Marketing, LLC
Private In Person amp ; Virtual Appointments Available Inspired by West Chelsea s historical architecture and rich heritage, The Cortland, located at 555 W 22nd Street, is striking a new ...
Description
Private In-Person & Virtual Appointments Available
Inspired by West Chelsea’s historical architecture and rich heritage, The Cortland, located at 555 W 22nd Street, is striking a new presence on the Hudson waterfront. Hand-crafted and American-made, The Cortland represents a unique collaboration between two architectural icons, Robert A.M. Stern Architects and Olson Kundig. Uniting elegant design and exceptional attention to detail, The Cortland is a building that will stand for generations to come.
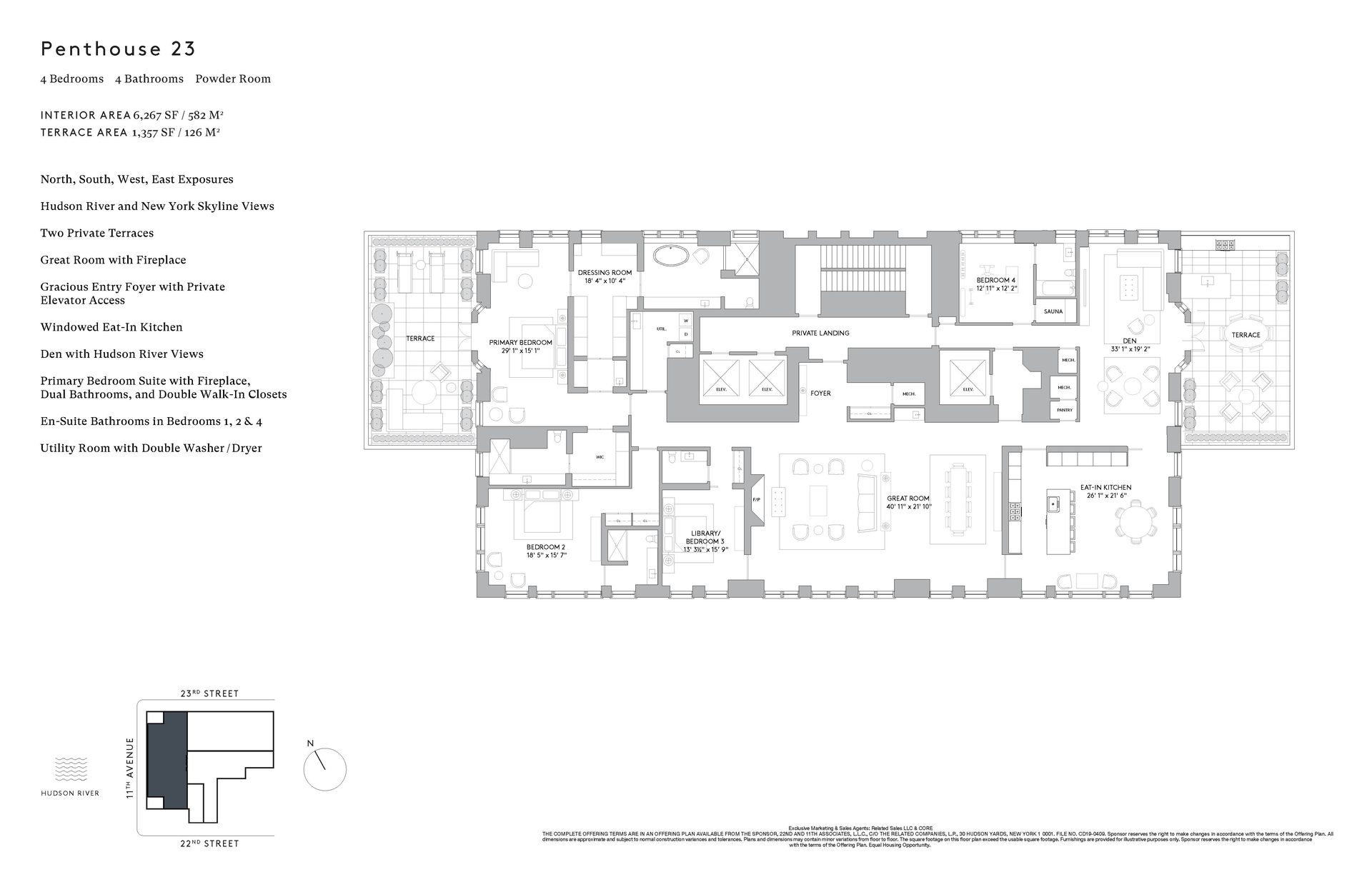
Residence Penthouse 23 is 6,267 square feet, featuring four bedrooms, four bathrooms, a powder room, and two private terraces totaling 1,357 square feet. The expansive, open-plan living and dining areas showcase sweeping views of the Hudson River and the New York City skyline through floor-to-ceiling windows, with north, south, east, and west exposures flooding the home with natural light. A statement fireplace and wet bar anchor the entertaining spaces, while the windowed eat-in kitchen, featuring a custom Olson Kundig–designed Jackbox, offers a warm, modern aesthetic with rich wood flooring throughout.
The amenity program is the heart of the residential experience at The Cortland. Designed by Olson Kundig and curated by Related Life, the 20,000 square feet of amenities have all the style and sophistication of a private members club in the city.
Developed by Related. The listing renderings are for illustrative purposes. The complete offering terms are in the offering plan available from Sponsor. File No. CD 19-0409.
Amenities
Bike Room; Garage; Wheelchair Access; Fitness Room; Basketball Court; Pool; Laundry Room; Nursery; Lounge; Roof Deck; Cold Storage; Private Storage; Business Center; Cinema Room;
- Terrace
- Washer / Dryer
- Concierge
- Elevator
- Fitness Facility
- Garage
- Laundry Room
- Pool
- Roof Deck
Neighborhood
More listings:

RLS Data display by Nest Seekers LLC.
All information furnished regarding property for sale, rental or financing is from sources deemed reliable, but no warranty or representation is made as to the accuracy thereof and same is submitted subject to errors, omissions, change of price, rental or other conditions, prior sale, lease or financing or withdrawal without notice. International currency conversions where shown are estimates based on recent exchange rates and are not official asking prices.
All dimensions are approximate. For exact dimensions, you must hire your own architect or engineer.