823 Union Street
Brooklyn, NY 11215
Cross street:6th Avenue

Building

Type:Townhouse
Era:Post-war
Floors:3

Property

Ownership: Multi-Family
Rooms: 11
Bedrooms: Studio
Pets: Unknown

Financials

Price:$2,995,000
Real estate tax:$8,520
578 Driggs Avenue Brooklyn, NY 11211
Listing Courtesy of Brown Harris Stevens Brooklyn LLC

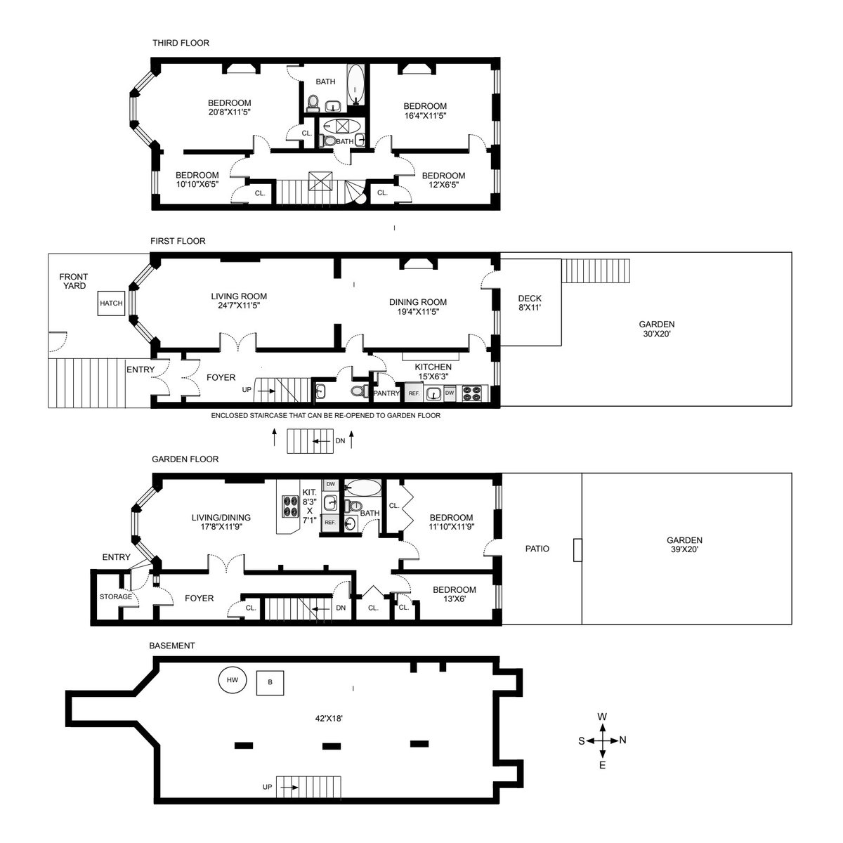
Two family, 3 story cellar brownstone on 20 x 90 foot lot.

Description

Two family, 3 story + cellar brownstone on 20 x 90 foot lot. Much original detail intact; plaster moldings, wood doors and window shutters. Garden level is a two bedroom, one bath unit with kitchen open to living room, and access to rear garden thru larger bedroom. Upper duplex has large living room with bay window, separate formal dining room and separate kitchen, powder room in hallway. Top floor has four bedrooms and two full baths; one ensuite to front bedroom. Metal deck off dining room on parlor floor. Rear garden. Large cellar contains gas boiler, water heater and meters.




Amenities

  • Basement

Neighborhood

More listings:

OLR IDX

RLS Data display by Nest Seekers LLC.

All information furnished regarding property for sale, rental or financing is from sources deemed reliable, but no warranty or representation is made as to the accuracy thereof and same is submitted subject to errors, omissions, change of price, rental or other conditions, prior sale, lease or financing or withdrawal without notice. International currency conversions where shown are estimates based on recent exchange rates and are not official asking prices.

All dimensions are approximate. For exact dimensions, you must hire your own architect or engineer.