Huntington, NY 11746

Property

Ownership: For Sale
Type: Single Family
Rooms: 6
Bedrooms: 3 BR
Bathrooms: 1
Pets: No Pets Allowed
Lot Size: 0.12 Acres

Financials

Price:$549,000
Annual Taxes:$9,617.66
25 Nugent Street, Southampton, NY 11968, USA
Listing Courtesy of BERKSHIRE HATHAWAY

Welcome to 50 East 9th Street in Huntington Station in the Huntington Schools.

View of front of Cape with brick siding, and a detached 2 car garage on 2nd structure

Description

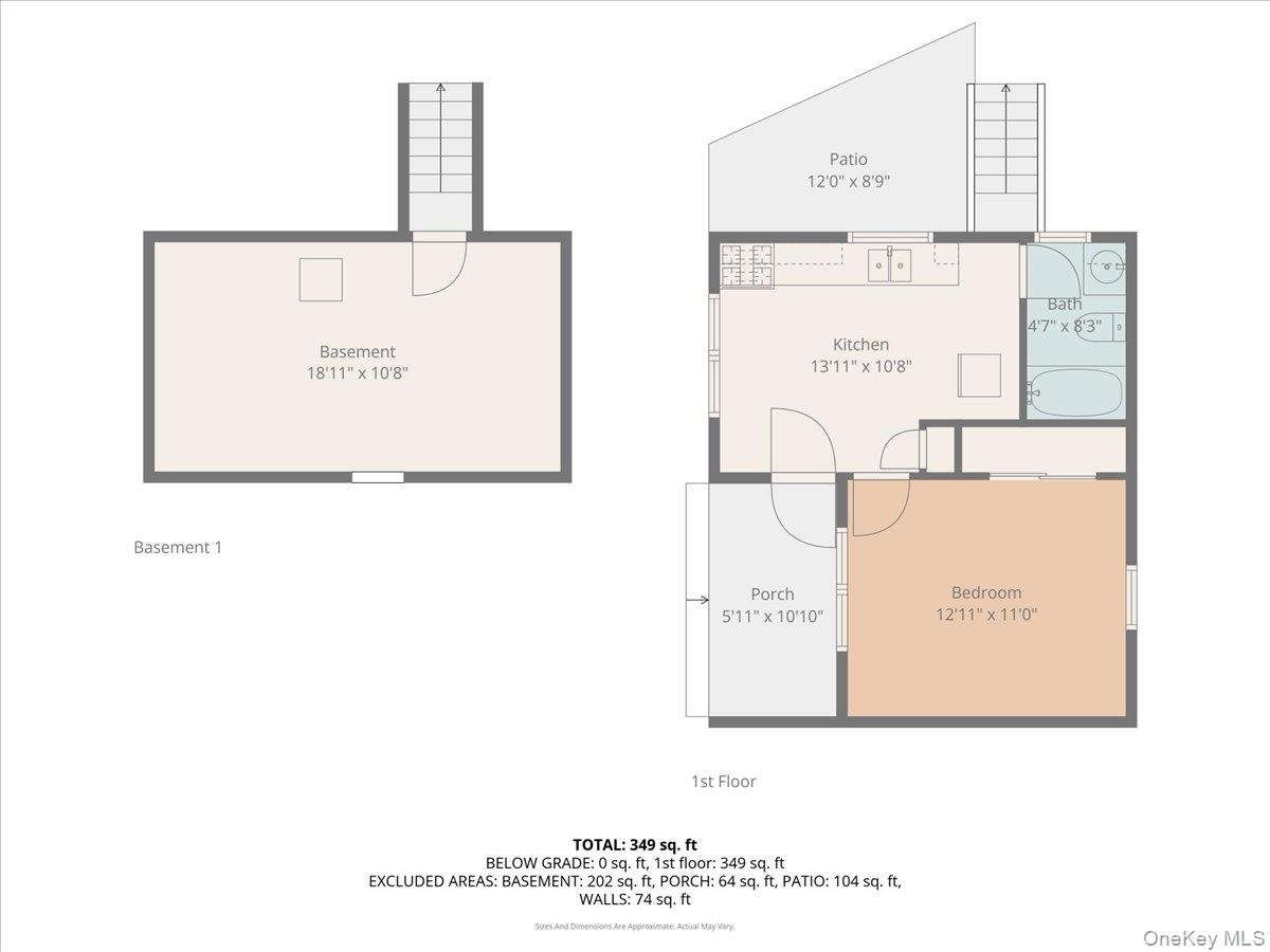
Welcome to 50 East 9th Street in Huntington Station in the Huntington Schools. This property is home to two structures: a brick Cape home & legal studio apartment with a 2-car attached garage. Discover this perfectly positioned Cape offering exceptional commuter convenience, strong income potential, and endless possibilities for future expansion. The charming 3-bedroom, 1-bath home sits in the heart of a high-demand area and is ideal for both homeowners and investors. The main home is in original condition and has the potential to expand the upper level, creating even more living space and long-term value. There is also a full basement with an outside entrance to both the main house and additional structure. This home has incredible bones & is clean as a whistle! The standout and unique feature of this property is the legal, fully separate studio apartment attached to the oversized 2-car garage. This rare setup provides incredible versatility to generate rental income to offset your mortgage, create a private home office, or host people in their own dedicated living space. Cape Estimated Int Sq Ft 1,084 and Additional Structure Estimated at 844 Int Sq Feet. Each Structure Has It's Own Oil Tank. The two-car garage offers ample storage with stairs up the second attic level, a workspace in the basement, and secure parking. The property is fenced on three sides and has plenty of room to enjoy outdoor activities with space for dining. This property is located .8 miles to the Huntington LIRR Station. Walt Whitman Shops, Rt.110/New York Avenue shopping & dining, parkways, Huntington Village & Huntington Hospital are near by as well. This unique property offers the perfect combination: a traditional single-family home plus a valuable legal accessory unit—an extremely rare opportunity in today’s market. Don’t miss your chance to secure a versatile property with strong rental appeal and long-term potential. This one won’t last!

Amenities

  • Back Yard
  • Cleared
  • Eat-in Kitchen
  • Electricity Connected
  • First Floor Bedroom
  • First Floor Full Bath
  • Formal Dining
  • Interior Lot
  • Landscaped
  • Level
  • Near Public Transit
  • Near Shops
  • Original Details
  • Other
  • Pantry
  • Refrigerator
  • Trash Collection Public
  • Water Connected

Long Island MLS

All information furnished regarding property for sale, rental or financing is from sources deemed reliable, but no warranty or representation is made as to the accuracy thereof and same is submitted subject to errors, omissions, change of price, rental or other conditions, prior sale, lease or financing or withdrawal without notice. International currency conversions where shown are estimates based on recent exchange rates and are not official asking prices.

All dimensions are approximate. For exact dimensions, you must hire your own architect or engineer.