Oyster Bay, NY 11801

Property

Ownership: For Sale
Type: Single Family
Rooms: 9
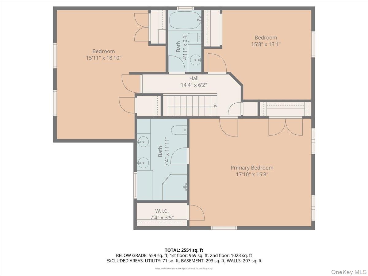
Bedrooms: 4 BR
Bathrooms: 4
Pets: No Pets Allowed
Lot Size: 0.17 Acres

Financials

Price:$1,175,000
Annual Taxes:$20,019.40
6243 Northern Blvd
Phone:
Listing Courtesy of Compass Greater NY LLC

Discover the charm and versatility of this 4 bedroom, 4 bathroom colonial home in Hicksville.

View of front of house

Description

Discover the charm and versatility of this 4- bedroom, 4- bathroom colonial home in Hicksville. The main level features all tile ceramic tile floor, a spacious living room and a large eat-in kitchen, equipped with granite countertops, an abundance of cabinets, a gas cooktop on an oversized island, double ovens, and stainless steel appliances. Sliding doors lead to a serene backyard. A flex room on this level can serve as a dining room, office, or additional bedroom, complemented by a half bathroom. Upstairs, you'll find a generously sized primary ensuite with vaulted ceilings, alongside 2-3 additional bedrooms and a full bathroom. One bedroom currently opens into a larger space but can easily be converted back to create a fourth bedroom. The basement, with with its own separate entrance, includes a large finished area with a full bathroom, a walk-in closet, plenty of storage space in utility area, and a laundry room with a new gas heating system. The outdoor area is a true oasis, featuring an in ground pool with solar heat, an outdoor cabana equipped with a kitchen, bar, and a full bathroom, as well as a built- in BBQ area and a custom- made awning. The fully paved space includes a shed for additional storage. Woodland elementary. This unique home has it all! Conveniently located near shops, restuarants, and all major highways for easy commuting!

Amenities

  • Awnings
  • Back Yard
  • Bay Window(s)
  • Built-in Features
  • Chefs Kitchen
  • Crown Molding
  • Dishwasher
  • Double Vanity
  • Dryer
  • Eat-in Kitchen
  • Electricity Available
  • Electricity Connected
  • Electric Oven
  • Entrance Foyer
  • Formal Dining
  • Gas Cooktop
  • Granite Counters
  • High ceiling
  • His and Hers Closets
  • Indirect Water Heater
  • Kitchen Island
  • Level
  • Natural Gas Connected
  • Near School
  • Open Kitchen
  • Paved
  • Primary Bathroom
  • Recessed Lighting
  • Refrigerator
  • Security System
  • Sewer Connected
  • Skylights
  • Stainless Steel Appliance(s)
  • Storage
  • Walk-In Closet(s)
  • Washer
  • Water Connected

Long Island MLS

All information furnished regarding property for sale, rental or financing is from sources deemed reliable, but no warranty or representation is made as to the accuracy thereof and same is submitted subject to errors, omissions, change of price, rental or other conditions, prior sale, lease or financing or withdrawal without notice. International currency conversions where shown are estimates based on recent exchange rates and are not official asking prices.

All dimensions are approximate. For exact dimensions, you must hire your own architect or engineer.