Property
| Ownership: | For Sale |
|---|---|
| Type: | Residential |
| Lot Size: | 6.9 Acres |
Financials
Price:$13,100,000
Annual Taxes:$21,898
Listing Courtesy of The Katsikos Group, Inc.
CDMP Zoning application ALREADY APPROVED FOR HIGH DENSITY APARTMENT HOUSING DISTRICT ; RU 4 MAXIMUM DENSITY PERMITTED 50 DU ACRE.
Description
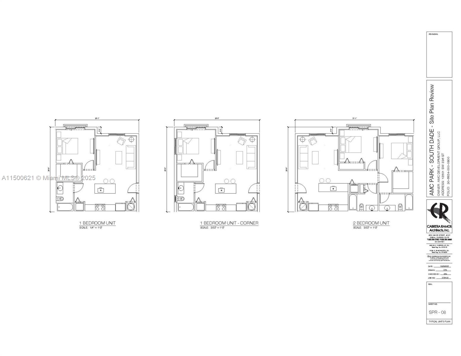
CDMP /Zoning application ALREADY APPROVED FOR HIGH DENSITY APARTMENT HOUSING DISTRICT; RU-4 MAXIMUM DENSITY PERMITTED (50 DU/ACRE). Site plan consists of six (6) multi-family apt blds, 84 UNITS (1BD)/164 UNITS (2BD), that are 3-story height, 248 workforce housing dwelling units arrayed around the periphery of the property, 370 surface parking spaces in the center, amenities such as a swimming pool, playground, pedestrian walking paths, mail kiosks, bicycle racks and landscaped common open areas. The site plan also depicts the dedication of SW 125 Ave and SW 236 Street which provide public access to the site. The development will have two ingress-egress vehicular and pedestrian access along SW 125 Avenue and SW 236 Street.
Virtual Tour: https://www.propertypanorama.com/instaview/mia/A11500621
Amenities
- Canal
- Canalfront
- FiveToTenAcres
- NotApplicable

All information furnished regarding property for sale, rental or financing is from sources deemed reliable, but no warranty or representation is made as to the accuracy thereof and same is submitted subject to errors, omissions, change of price, rental or other conditions, prior sale, lease or financing or withdrawal without notice. International currency conversions where shown are estimates based on recent exchange rates and are not official asking prices.
All dimensions are approximate. For exact dimensions, you must hire your own architect or engineer.