18-21 26th Road
Queens, NY 11102
Cross street:18th Street

Building

Type:House
Era:Post-war
Floors:3

Property

Ownership: Multi-Family
Rooms: 12
Bedrooms: Studio
Pets: Unknown

Financials

Price:$990,000
Real estate tax:$8,208
47-44 Vernon Blvd, Long Island City, NY 11101
Listing Courtesy of Brown Harris Stevens Queens LLC

This 2unit house have multiple DOB and ECB violations, must take the property strictly as is.

Description

This 2unit house have multiple DOB and ECB violations, must take the property strictly as is. Suitable for experienced buyers only.

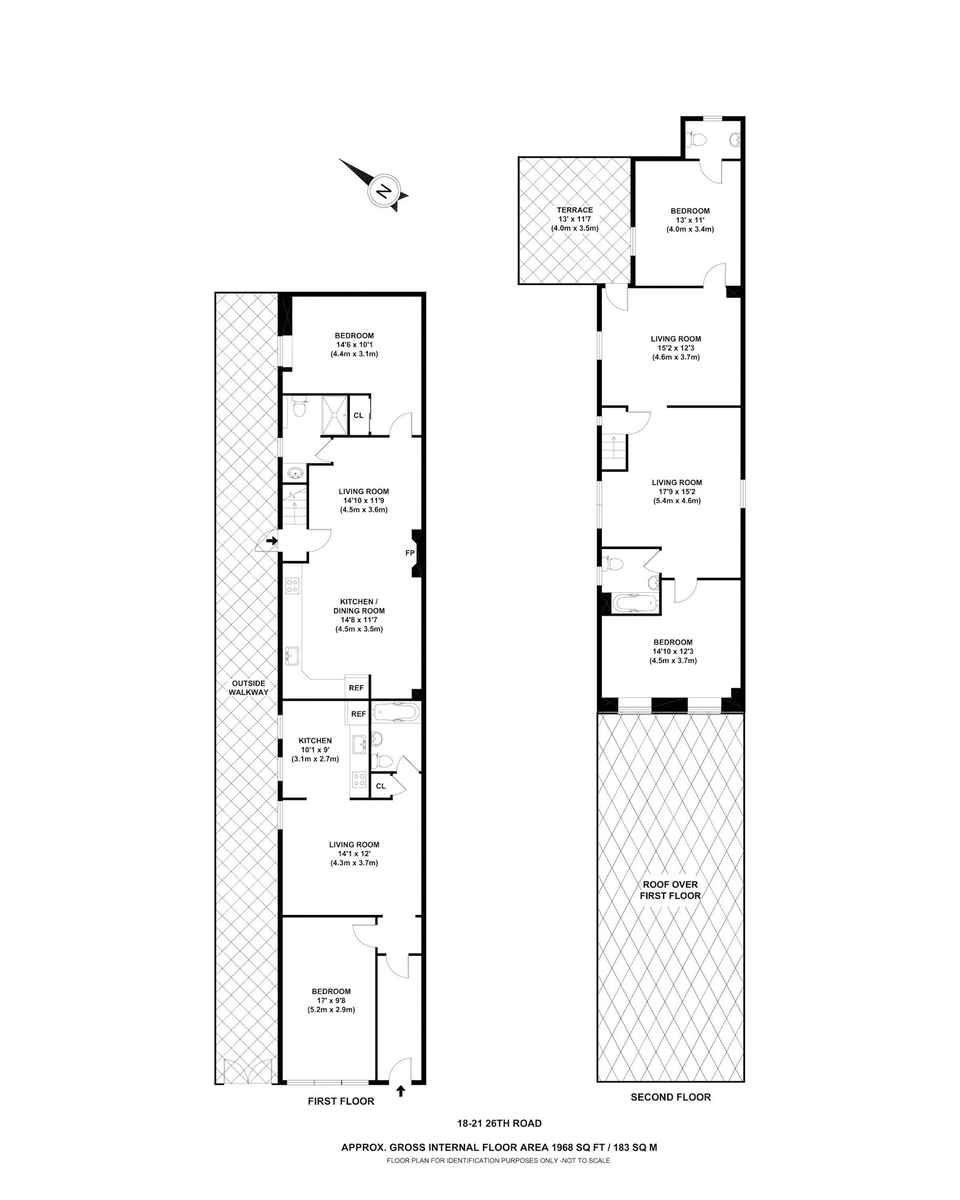
This pre-war townhouse is a rare opportunity in today's market. Full of potential, it offers tremendous value for the buyer who knows how to unlock it. Located in a lively and convenient neighborhood, this legal two-unit townhouse provides 1,876 sq ft of living space plus generous basement storage and utility areas.

The main unit features three bright and comfortable bedrooms, two full bathrooms, and one half bath. A spacious living room, and a well-laid-out kitchen and dining area complete the home.
The front unit, with its own private entrance, includes a cozy living room, a bedroom, kitchen, and full bathroom-perfect for guests, or rental income.

Enjoy the charm of a wood-burning fireplace, and the convenience of in-unit laundry, as washers and dryers are allowed. With low real estate taxes and flexible potential for upgrades, this home is ready for someone with vision who can restore it to its full glory.

The location is another standout feature-just two blocks from beautiful Astoria Park, surrounded by popular restaurants, local shops, cafés, and neighborhood businesses. Transportation is easy with nearby N/W subway lines and Q69, Q19, and Q100 buses, plus quick access to the Grand Central Parkway.

Opportunities like this don't come often. If you're an experienced buyer looking for a project with tremendous upside, contact us to schedule a viewing and explore everything this townhouse can become.

Neighborhood

More listings:

OLR IDX

RLS Data display by Nest Seekers LLC.

All information furnished regarding property for sale, rental or financing is from sources deemed reliable, but no warranty or representation is made as to the accuracy thereof and same is submitted subject to errors, omissions, change of price, rental or other conditions, prior sale, lease or financing or withdrawal without notice. International currency conversions where shown are estimates based on recent exchange rates and are not official asking prices.

All dimensions are approximate. For exact dimensions, you must hire your own architect or engineer.