Hempstead, NY 11510

Property

Ownership: For Sale
Type: Single Family
Rooms: 11
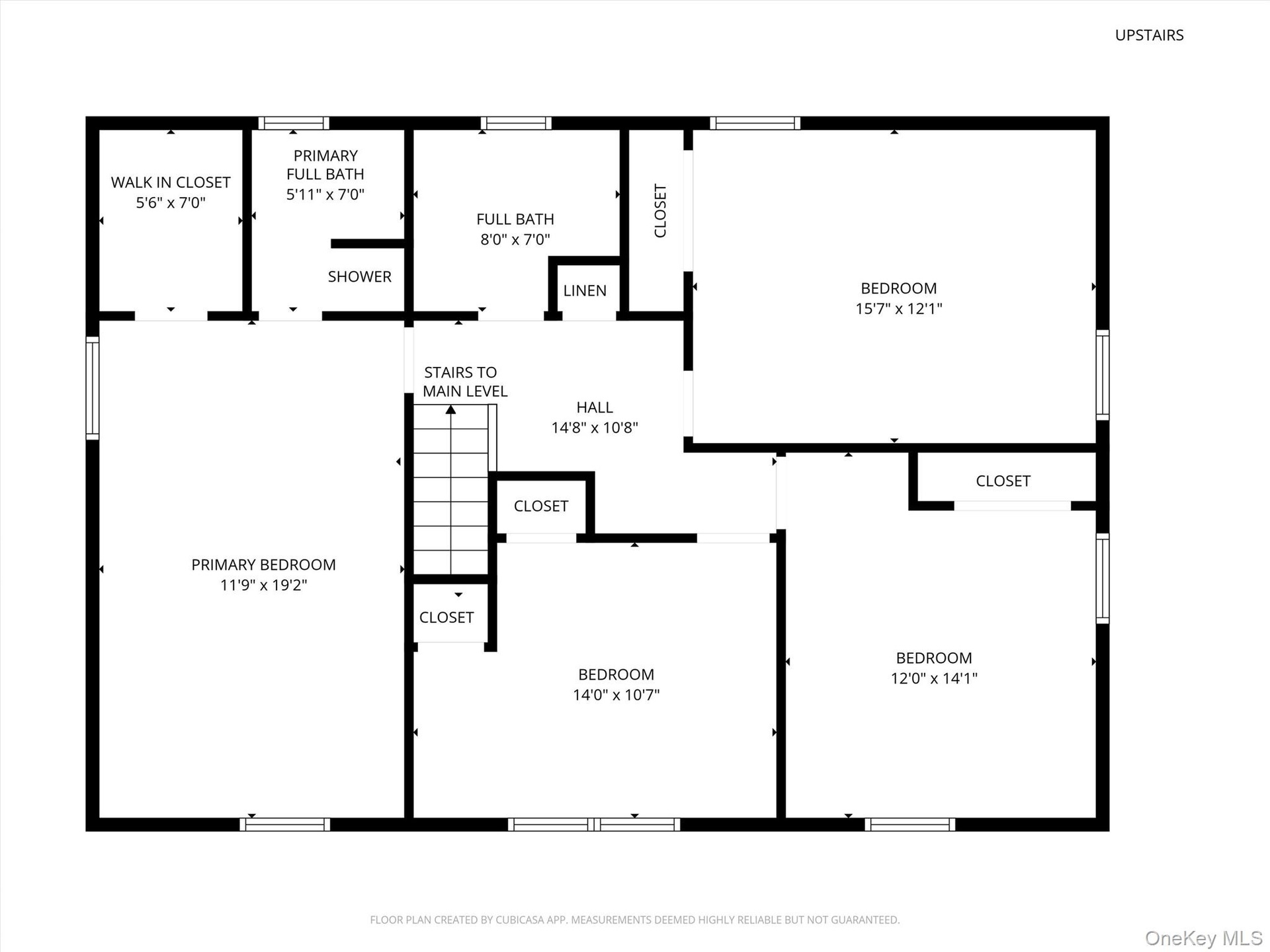
Bedrooms: 4 BR
Bathrooms:
Pets: No Pets Allowed
Lot Size: 0.15 Acres

Financials

Price:$750,000
Annual Taxes:$14,859.10
6243 Northern Blvd
Phone:
Listing Courtesy of Giner Real Estate Inc.

A warm, cozy house you ll love calling home.

Description

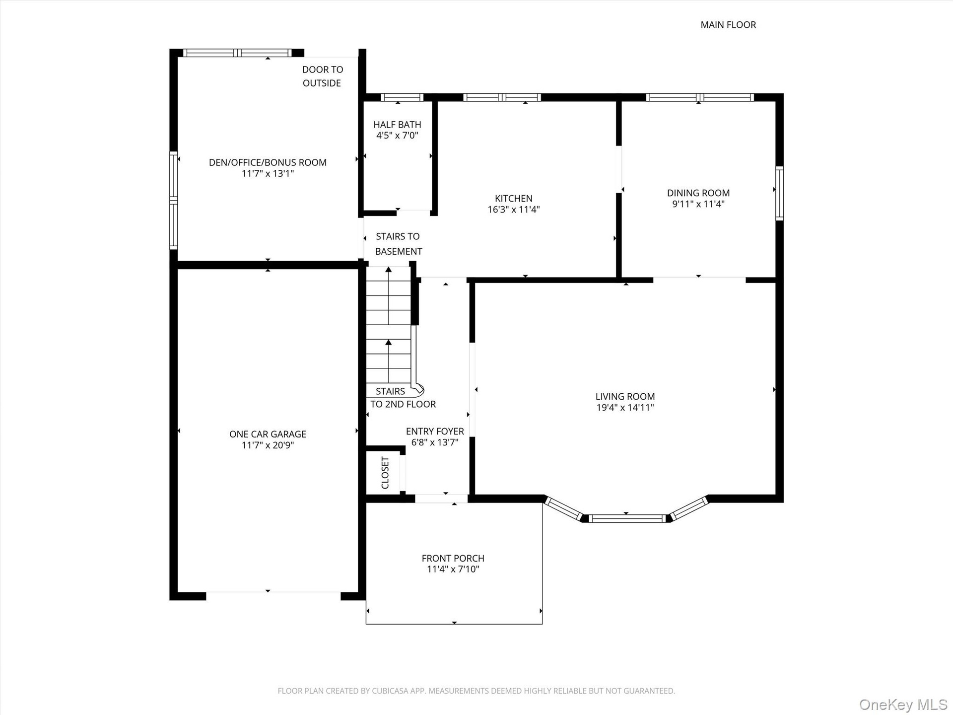
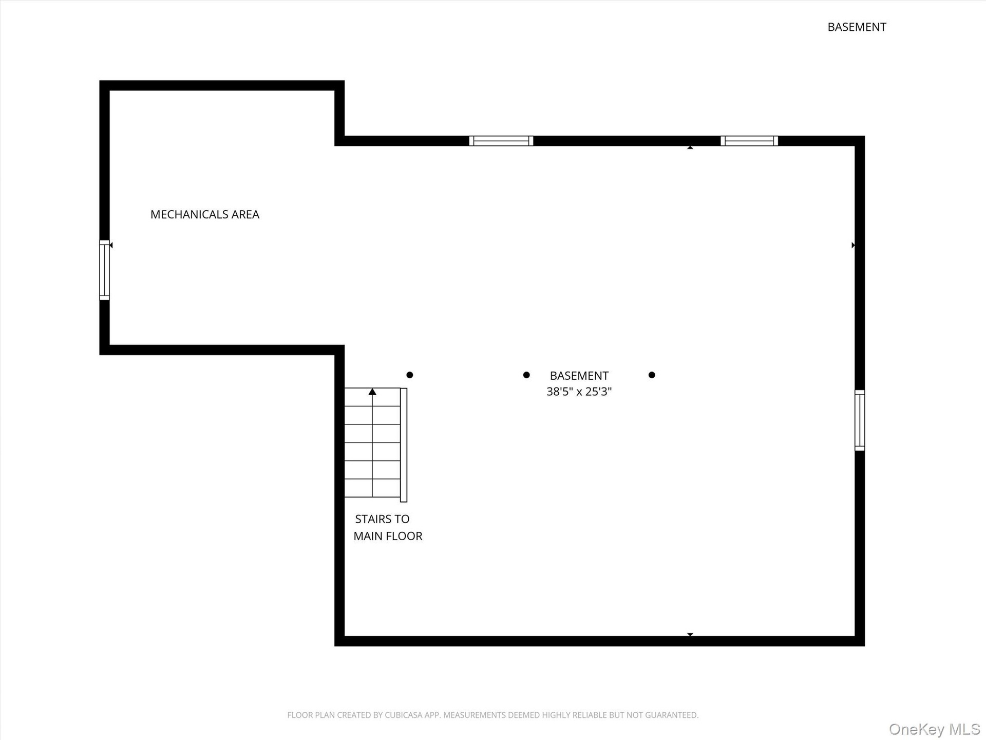
A warm, cozy house you’ll love calling home... Set on a wonderful corner lot in Baldwin’s Silver Lake area, this sun-drenched Colonial offers tremendous space, charm, and convenience in a location loved for its easy access to everything. Hardwood floors carry throughout the home, and the layout has a comfortable, natural flow that immediately feels welcoming. The eat-in kitchen has been updated with granite counters, new wood cabinetry, and a tasteful tile backsplash. The easy connection between the kitchen, dining room, and living room creates an ideal setting for entertaining or simply enjoying everyday time at home. A flexible room on this level can serve a variety of needs, and a powder room completes the first floor. Upstairs, the primary suite is impressive in both size and comfort, offering a walk-in closet and an en-suite bath. Three additional oversized bedrooms and a hall bath provide exceptional room to spread out. The lower level is another standout feature — an oversized basement with substantial storage and endless possibilities for future use. An attached one-car garage provides interior access for convenience. Outdoors, the property offers multiple sitting areas around the home, with fenced and landscaped sections that create privacy while still embracing the openness of the corner-lot setting. What’s more, the home offers newer windows and a brand-new roof with a transferable warranty — a significant upgrade providing peace of mind for years ahead. The location ties it all together: close to Silver Lake Park, Oceanside Schools, shopping, dining, public transportation, and the LIRR with easy access to New York City. A spacious, inviting home in a truly convenient setting — ready for you to come in and make it your own. Welcome home.

Amenities

  • Cable - Available
  • Chandelier
  • Corner Lot
  • Dishwasher
  • Double Pane Windows
  • Dryer
  • Eat-in Kitchen
  • Electricity Connected
  • Electric Range
  • Formal Dining
  • Granite Counters
  • Landscaped
  • Near Public Transit
  • Near School
  • Near Shops
  • Neighborhood
  • Phone Available
  • Primary Bathroom
  • Rain Gutters
  • Range
  • Refrigerator
  • Sewer Connected
  • Smoke Detectors
  • Stainless Steel Appliance(s)
  • Storage
  • Trash Collection Public
  • Walk-In Closet(s)
  • Washer
  • Washer/Dryer Hookup
  • Water Connected

Long Island MLS

All information furnished regarding property for sale, rental or financing is from sources deemed reliable, but no warranty or representation is made as to the accuracy thereof and same is submitted subject to errors, omissions, change of price, rental or other conditions, prior sale, lease or financing or withdrawal without notice. International currency conversions where shown are estimates based on recent exchange rates and are not official asking prices.

All dimensions are approximate. For exact dimensions, you must hire your own architect or engineer.