| Cross street: | Avenue of the Americas |
|---|
Property
| Ownership: | Condo |
|---|---|
| Rooms: | 4 |
| Bedrooms: | 2 BR |
| Bathrooms: | 2 |
| Pets: | Pets Allowed |
Financials
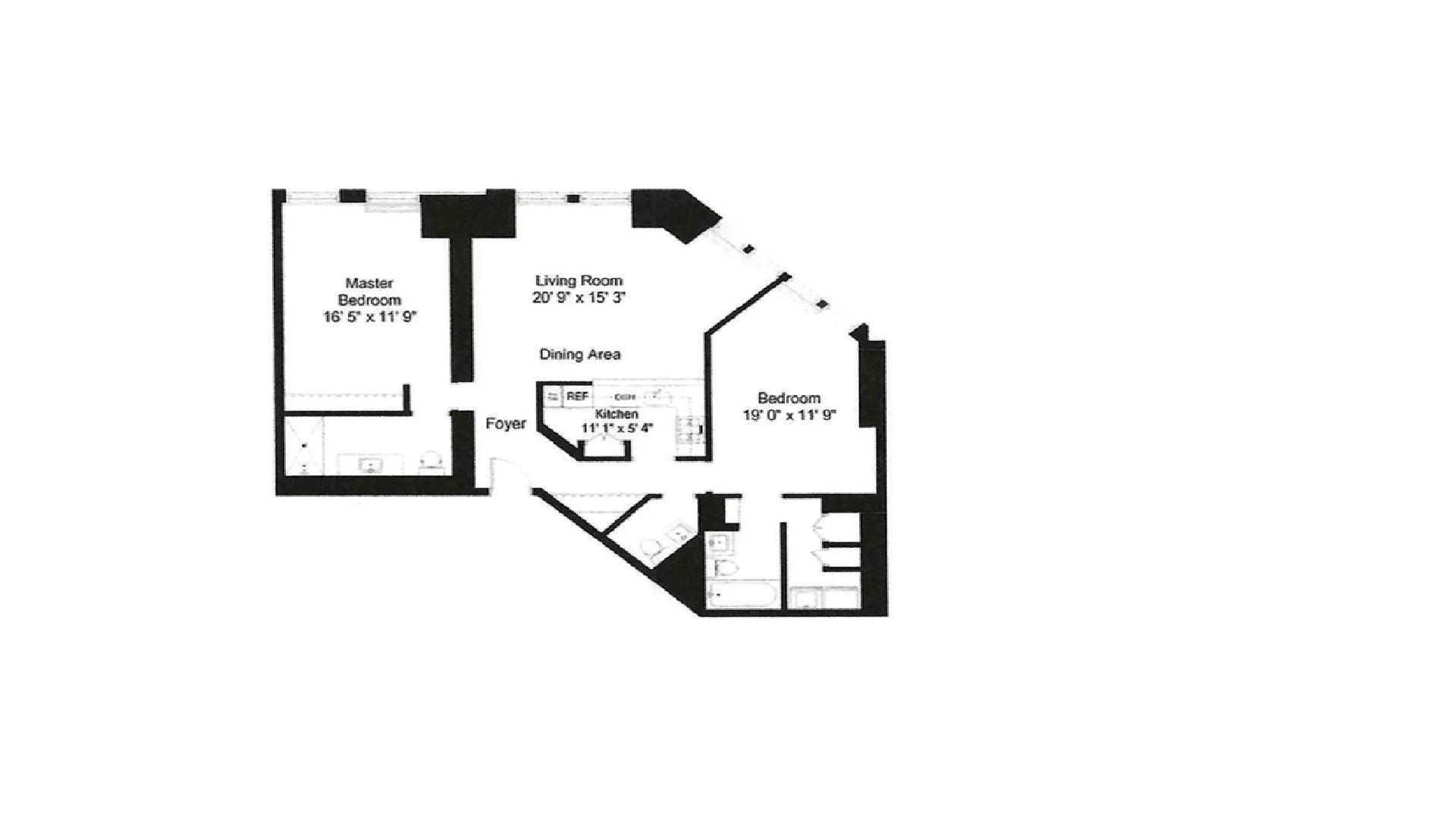
2 BEDROOMS 2. 5 BATHS on a high floor with open views Located in the famous Cityspire Condominium Building in Central Midtown Manhattan.
Description
2 BEDROOMS/2.5 BATHS on a high floor with open views Located in the famous Cityspire Condominium Building in Central Midtown Manhattan.
Welcome Home to this two bedroom 2.5 baths apartment located on a high floor with lots of natural light. North/East exposures to Midtown and famous buildings in the area right on Billionaires Row.
The apartment features original Cherry herringbone floors which gives the apartment a smooth look with lots of character. The living room and primary bedroom are extra large with wonderful closets.
The kitchen is open to the living room and equipped with stainless steel appliances and perfectly located to cook with an amazing view of the Manhattan skyline.
The primary bedroom is large with lots of closets with an adjacent primary bathroom suite which has a marble bathroom with a Jacuzzi tub and a separate walk-in Shower.
The second bedroom is also spacious and has great multiple uses such as a guest room, office, an actual second bedroom with its own private marble bathroom and a walk-in closet.
Cityspire is a Trophy and unique building with a 24 hour full service doorman/concierge. It also has an array of ameneties such as a newly renovated health club with pool, resident s lounge, playroom, sauna, steamroom, conference room and a garage. The Washer Dryer is on every floor.The building location is literally near everything, Broadway shows, City Center, Carnegie Hall, Central Park, steps from 5th avenue or Columbus Circle. Lincoln Center.Morton Williams, one of the best super markets is right there. Transportation to everywhere in City is easily accessable. ONLY FOR INVESTORS TENANT IN APT. UNTIL Jan 2026 PAYING 7k
Amenities
- Attended Elevator
- Elevator
- Full service
- Garage
- Laundry Room
- Pool
Neighborhood

RLS Data display by Nest Seekers LLC.
All information furnished regarding property for sale, rental or financing is from sources deemed reliable, but no warranty or representation is made as to the accuracy thereof and same is submitted subject to errors, omissions, change of price, rental or other conditions, prior sale, lease or financing or withdrawal without notice. International currency conversions where shown are estimates based on recent exchange rates and are not official asking prices.
All dimensions are approximate. For exact dimensions, you must hire your own architect or engineer.