Yorktown, NY 10562

Property

Ownership: For Sale
Type: Single Family
Rooms: 7
Bedrooms: 3 BR
Bathrooms:
Pets: No Pets Allowed
Lot Size: 2.47 Acres

Financials

Price:$929,000
Annual Taxes:$23,880.03
505 Park Ave, New York, NY 10022
Listing Courtesy of Douglas Elliman Real Estate

Picturesque Country Setting.

1364 Spring Valley Rd Ossining NY

Description

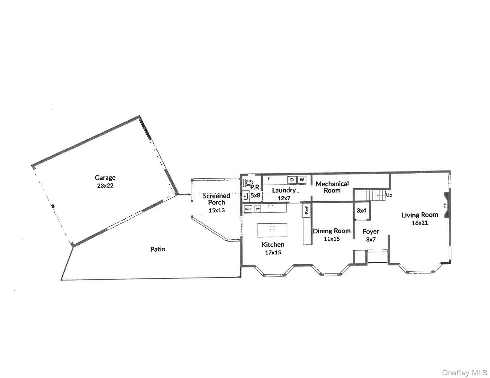
Picturesque Country Setting.. Colonial Farmhouse on 2.5 Beautiful Acres Adjacent to the 1,000 Acre Teatown Lake Reservation Preserve.. Light and Bright with Picture Windows Overlooking the Private Waterfront on Lincoln Pond with Boat Dock and Expansive Views.. Custom Kitchen with Island and Wolf Range, Plenty of Cabinetry with Underlighting, Granite Counters, Tile Backsplash and Tile Flooring, Recessed Lighting and Stainless Steel Appliances.. Sliding Glass Door to the Screened Sun Room and Front Patio.. Updated Powder and Laundry Rooms, Both with Quartz Counters, Additional Cabinetry and Mechanical's Room Access.. Formal Dining Room and Entry Foyer to a Spacious Living Room with Wood Burning Fireplace, Wood Flooring and Recessed Lighting Throughout.. Stairs Up to a Second Level Landing and Hallway with Pulldown Staircase to Attic Storage.. High Ceiling Primary Bedroom Suite with 3 Exposures and a Walk in Closet with Storage Built ins.. Large Primary Bathroom with Separate Glass Enclosed Shower, Twin Sinks, Extensive Tilework and Skylight.. 2 Additional Bedrooms and Updated Hall Bathroom with Quartz Counter, Glass Enclosed Shower, Decorative Tilework and Skylight.. Den - Home Office with a Wall of Windows, Skylight and a Door Out to the Backyard Patio.. Wood Flooring and Recessed Lighting Throughout the Second Level.. Updates - Upgrades Inclusive of the Kitchen and Bath's.. Plumbing and Electrical, Central Air Conditioning, Refinished Flooring, Hemp Wool Attic Insulation, Internal and External Painting.. 2 Car Garage with New Doors and Openers and Plenty of Parking for Residents and Guests.. Convenient to All in the Charming River Towns of Ossining and Croton.. Shopping Centers, Dining and Deli's, Schools and Libraries, Parks and Recreation, Train Stations.. All Close, with Quick Access to Major Highways and an Easy NYC Commute.

Amenities

  • Bay Window(s)
  • Casement
  • Dishwasher
  • Dock
  • Double Pane Windows
  • Dryer
  • Eat-in Kitchen
  • Entrance Foyer
  • Formal Dining
  • Gas Cooktop
  • Kitchen Island
  • Microwave
  • Oven
  • Part Wooded
  • Pond
  • Primary Bathroom
  • Quartz/Quartzite Counters
  • Recessed Lighting
  • Refrigerator
  • Stainless Steel Appliance(s)
  • Trees/Woods
  • Walk-In Closet(s)
  • Washer
  • Water
  • Waterfront Property
  • Wood Burning

Long Island MLS

All information furnished regarding property for sale, rental or financing is from sources deemed reliable, but no warranty or representation is made as to the accuracy thereof and same is submitted subject to errors, omissions, change of price, rental or other conditions, prior sale, lease or financing or withdrawal without notice. International currency conversions where shown are estimates based on recent exchange rates and are not official asking prices.

All dimensions are approximate. For exact dimensions, you must hire your own architect or engineer.